形成建筑对话,延续三里屯街景经过数十年的发展,三里屯区域已成为北京艺术与文化融合的中心地带。坐落与此的太古里西区,不仅拥有着周围众多办公区域带来的客流资源,同时也与太古里南区、北区互为呼应,共享着优质的商业资源。然而,基于这些资源优势的商业建筑更新却并非易事。互联网时代的商业建筑更需要吸引力,但对于一个商圈而言,过于突出的吸引力可能也是双刃剑。如果商业吸引力没有与空间、业态、客流等其他因素融为一体, 那它很可能成为区域中的孤点,甚至使那些吸引力较弱的地方成为消费者不愿造访的“角落”,反而削弱了商圈的整体商业价值。因此三里屯西区的改造不仅着眼于项目范围内的业态更新,更致力于形成三里屯区域范围内的建筑对话,促进整个商圈的价值提升。
2019年,ARQ建筑事务所完成了太古里南区的调整升级,对南区7座单体建筑进行了改造,完善其商业流线,提升其空间环境,并强化其街区特性。秉持着对商圈整体持续升级的设计理念,太古里西区进一步引导人流、向西探新:一方面通过主力店的调整,再次优化商圈的业态布局;另一方面,通过构造交通流线和视觉上的联系,使西区、南区形成对话与连接,从而激活新的商业空间。 由此改造的太古里西区,不仅与商圈内其他建筑融为一体,成为了三里屯街景的延续,也兼具了明显的辨识度,成为了象征商圈新发展阶段的地标。
重现退台造型,植入时尚基因回看过去的雅秀大厦,其建筑形象一直是一个尺度巨大的铁皮盒子,其外围由一层幕墙包裹, 而幕墙之内还隐藏着退台式的结构和传统的坡屋顶。为了削弱原建筑带来的压迫感,使其更好地融入城市景观,设计以“大道至简”的手法重现了其逐级退台的建筑原貌,并拆解了原来扁平而单一的立面,以互相错动、富有变化的立方体,为建筑外形植入了时尚的基因。
建筑外形的灵感来源于自然界晶体的生长。如同单晶体成长为繁复而美丽的晶体簇一样,设计也基于建筑现存的核心结构开始生长—— 众多的小立方体结附于原建筑金字塔状的退台结构中,堆叠出了错动平面的动态序列 。这些立方体分布于建筑的四周,打破了原建筑的大盒子形象,从而削弱了原建筑在视觉上的巨大的体量感,将整座建筑的尺度缩小到了人的尺度。 同时,看似随意的立方体分布也经过了设计精心的演练,以与其他元素相互平衡,共同构成和谐、优雅的建筑立面。
在材料上,建筑外立面主要采用了白色的铝板、半透明的 U 型玻璃以及普通透明玻璃,与太古里南区的设计语言保持了一致。这些光亮洁净的材料,增强了建筑外部纯净透明的质感,使其成为工体北路上明显的视觉焦点。不同材料之间通透感、色彩的差异,也使得每个立方体面都形态各异,进而形成 了一种独特的节奏与韵律。
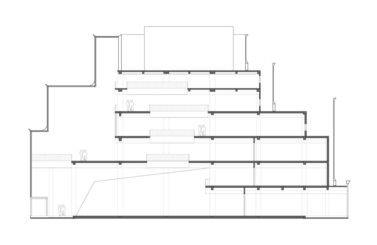
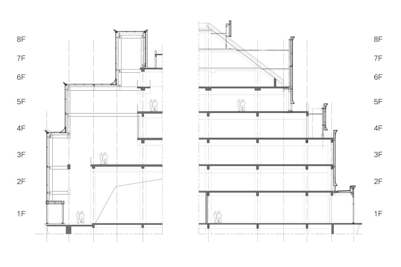
疏通室内流线,引入自然体验相较于外立面改造中拆解、分散的设计手法,内部的改造则以空间的整合和重新划分为主,旨在创造出自由流动的商业空间。其中最主要的改造即在建筑东侧增加了一处巨大的玻璃中庭。在外部,玻璃中庭面朝南区,不仅建立了西区与南区更直接的交通联系,更以其晶莹通透的外观,成为连通两区商业的视觉线索,吸引人们迈向西区、走进西区、探索西区。而在内部,玻璃中庭连通了地下二层至地上六层的空间,成为了东、南两个方向的人流汇聚点,打破了原有建筑内部阻塞的状态,并以自然、明亮的室内体验充分激活了商业氛围。在原来“大铁盒”式的建筑中,很少有自然光可以投进内部,建筑几乎处于完全封闭的状态。而玻璃中庭打开了盒子,提高了建筑的渗透性,使室内获得充足的自然采光,并使不同楼层之间产生视觉上的联系。
同时,借由中庭的玻璃盒子,建筑也形成了双向的开放视野——建筑内的顾客可以向外看到太古里南区的景观,从而提升购物体验;而在外行走的路人也可以瞥见建筑内部的活动,从而吸引他们走进其中一探究竟。围绕着中庭,设计还增加了扶手电梯以改善人流动线循环,为顾客提供更直观的体验流线。无论是南侧入口还是东侧入口的人流都被导向东侧的中庭。这里成为建筑内部新的交通枢纽,人们可以高效便捷地到达其他楼层,由此充分激发上部空间的商业价值。
区别于外立面干净纯粹的视觉特质,室内空间营造出亲和与惬意之感。暖色调的木纹铝板、混凝土、 石材等材料,结合着中庭天光与层间绿植,将自然氛围引入室内。室内与室外的视觉差异,也传递出一种创意的趣味。它巧妙地贴合了周围街区年轻、时尚、 充满艺术设计的商业氛围,创造出了一处高质量休闲、娱乐、生活体验空间。
项目图纸
△区位优势分析-周围地块功能
△西区-南区-北区_关系图
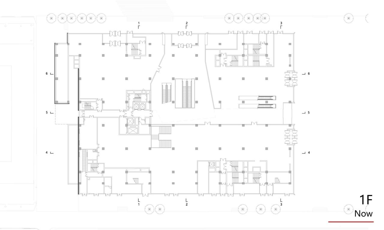
△一层平面图
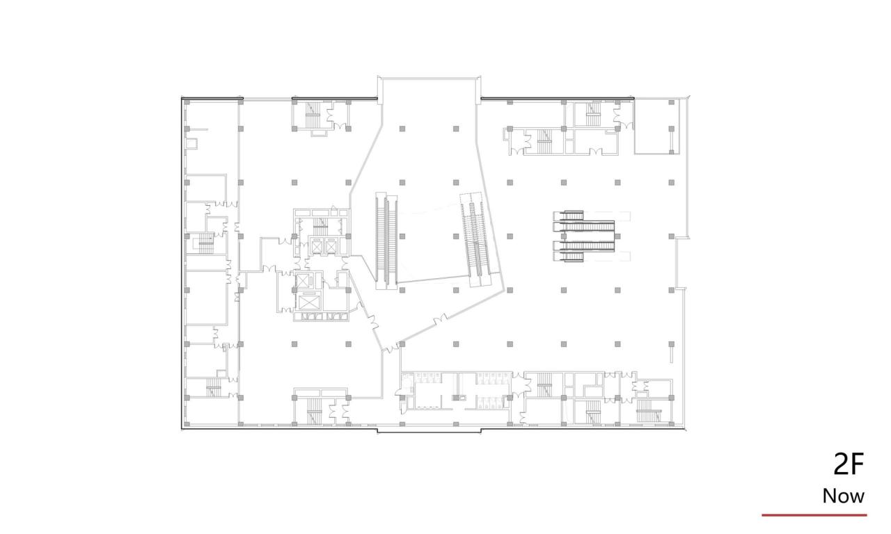
△二层平面图
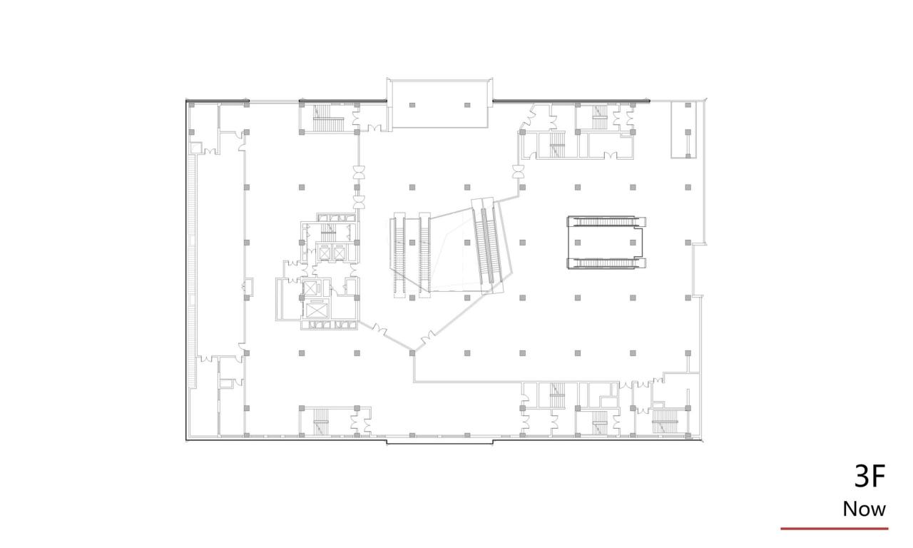
△三层平面图
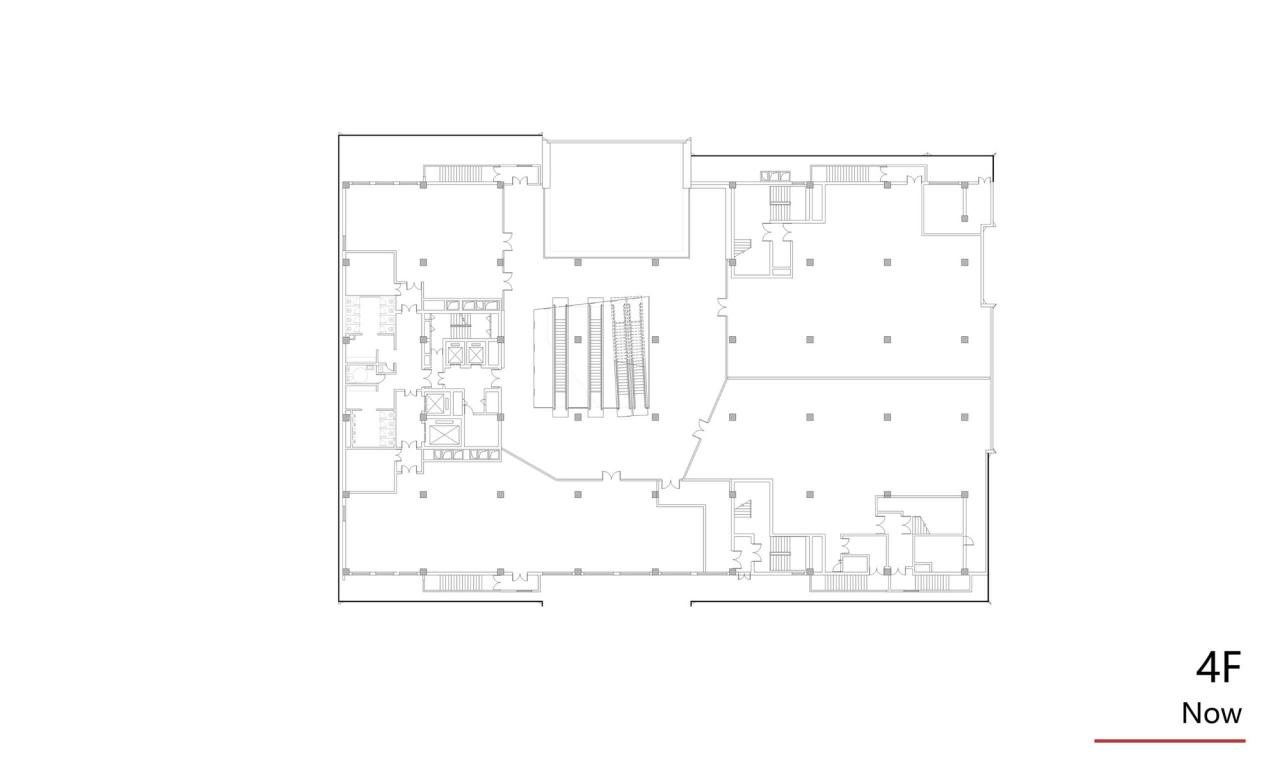
△四层平面图
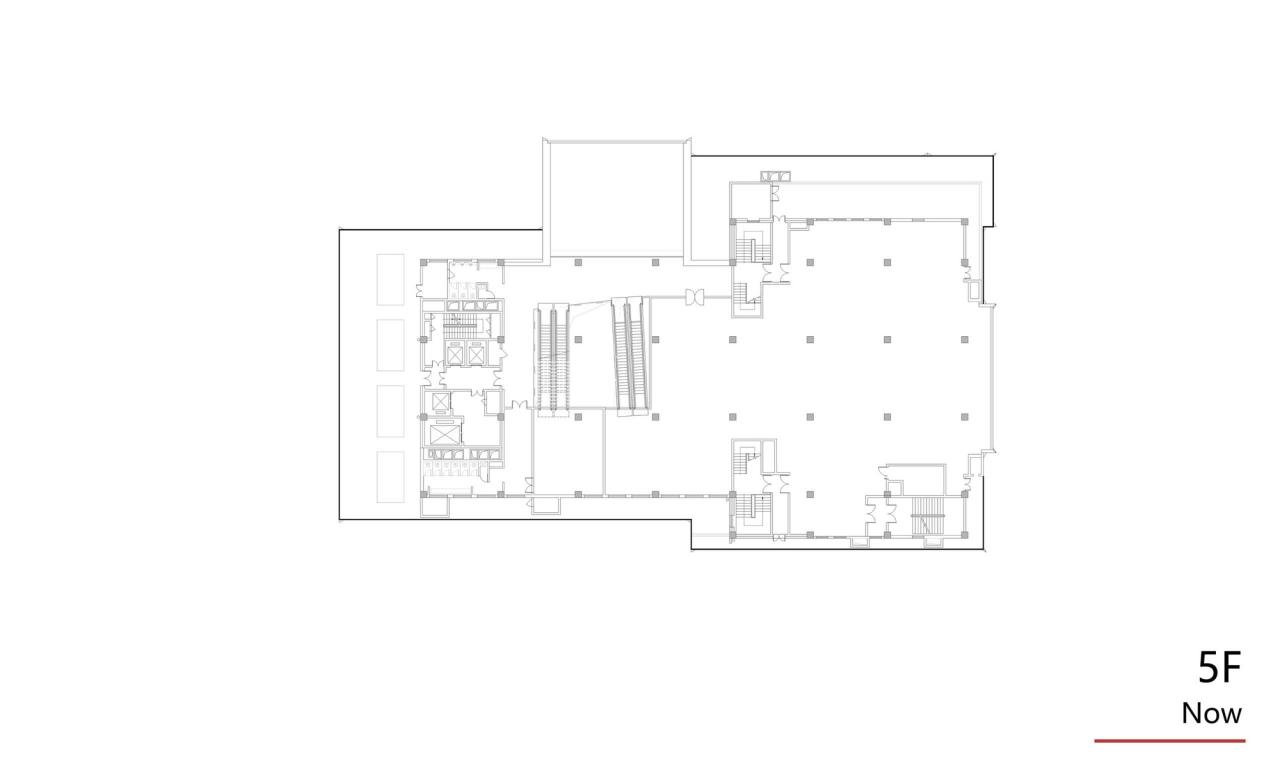
△五层平面图
△六层平面图
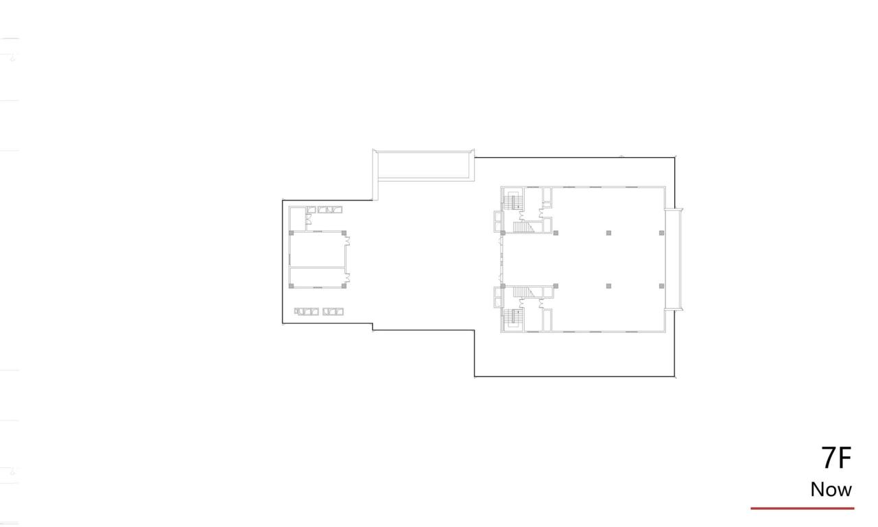
△七层平面图
△八层平面图
△南立面图
△北立面图
△东立面图
△西立面图
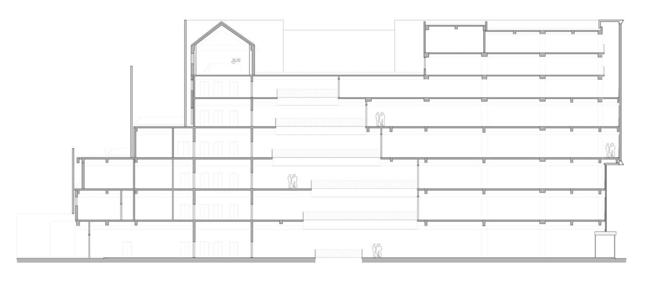
△剖面图
△剖面图
△东侧中庭-西侧墙身-剖面
△爆炸图
△立面形体变化
项目信息
建筑设计:Arquitectonica
面积 :27500m²
项目年份 :2021
地点:中国,北京
摄影师:雷坛坛,朱雨蒙

BIM建筑网










































