坐落于深圳南山新兴的大沙河创新走廊,南方大学科技园为科学探索和技术创新提供了优越的环境和平台。该项目毗邻深圳大学新校区,占地15.2公顷,其中包括IT孵化空间、研发办公、医疗仪器开发和创业服务空间。该项目的建筑和规划策略为企业家、研究人员和初创企业提供了孵化器和教育平台。
该项目的设计概念是自然——自然是宝贵的资源,是知识的宝库,也是灵感的来源,而新的科学和技术往往从自然中寻求灵感和答案。场地设计上,该项目在保留了原有地形特征(一个古老的坟丘山和现有的军事边界)的基础上引入了一个中央公共景观。其综合设计策略尊重场地现有的自然地形,并按照城市的框架进行组织——由各种功能区围住一块中央绿地。四个主要的功能区为:
灵感园区——企业孵化中心研究园区——医疗仪器中心知识园区——创业和服务中心实现园区——外包服务中心
这些园区在功能上和建筑上是不同的,但是它们共享同一个“城市”中心——中央景观公园。以建筑的角度,各园区都对场地做出了回应,它们以独特的体量方案为特色,包围了中心景观,塑造了外部空间,同时划分了特定区域。该项目的创新体现在对场地的设计上——减少对自然环境的改变,根据地形进行设计。
这些充满科技感的建筑内部提供了不同的空间类型,从而来满足多种功能的需求。从具有中央中庭的建筑到高层写字楼,每一座建筑都利用独特的形状在园区中创造出走廊,并且对外部环境作出回应。
在该项目中,主动和被动环境设计策略得到了结合,从而达到了降低运营成本、节约能源和节约材料的效果。同时,独特的、高灵活性的建筑规划方案满足了当今创新工作环境所需要的功能要求。整个科学园被设想为一座充满活力的城市——“发展、机遇和回报之城“。
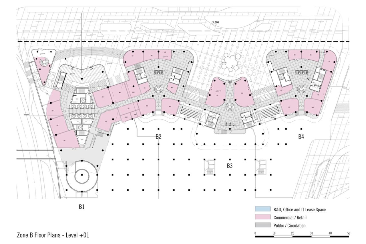
B1塔楼B区组作为企业孵化中心,被赋予了“灵感园区”之名,它鼓励IT专业人士、科学家、企业家和有远见的人进行探索与创新。园区内的建筑空间实现了了将研发、生产和教育三个平台统一的目标。B1塔楼极具建筑表现力,被认为是”灵感之塔”,它在科技园内占据了一个关键的位置。它作为园区内的焦点,在视觉上引出了从坟丘山顶到园区东端的一条轴线。
塔楼的设计方案对场地和功能需求作出了回应,创造出独特的天际线轮廓和视觉焦点。110米高的优雅塔楼外形并不突兀,与周围建筑和谐呼应。在顺应环境的同时,塔楼的形状和楼层规划也以提供高质量的工作空间为目标。一个高效的平面图将观景机会巧妙的引入了办公空间。
优雅蜿蜒的塔楼外形高达110米,成为科技园的焦点和该地区的标志性视觉“地标”。
项目图纸
△总平面图
△一层平面图
△二层平面图
△标准层平面图
△剖面图
项目信息
建筑设计: Saltans Architects
面积 : 528000 528000平方米
项目年份 : 2020年
摄影师:Guanhong Chen – ACF Vision, Ivo Semerdzhiev
厂家 : Xiamen Meijia, Xiang Stone, Xinyi Glass Holdings Limited
主持建筑师 : Janis Saltans, AIA
合作建筑师 : Jaeger Kahlen Partners Architects Ltd.
当地设计机构 : Shenzhen Architectural Design Research Institute (SADI), Shenzhen Zhonghui Architectural Design Office
立面系统 : Shenzhen Keyuan Construction Group Co., Ltd.
地点 : 中国,深圳市

BIM建筑网


































