改造缘起-从火车站到博物馆从类型学意义上来说,交通建筑与展览建筑的空间有着天然的共通性。火车站的高大候车室、站台空间适合改造为展览空间。废弃的火车站改造为其他功能,在国际上也早有先例,巴黎奥赛美术馆就是最成功的例子。
在黄(渤)海候鸟栖息地正式列入世界遗产名录后,盐城急需一个对外展示湿地文化的窗口。火车站毗邻新建的湿地公园,改造为湿地博物馆后,将成为展示盐城湿地文化的新地标。
改造策略-新老建筑传承对话原火车站采用空间桁架结构,局部层高较低,难以满足展览要求。改造设计保留下部混凝土结构,拆除现有网架,新增钢结构屋面满足使用需求。采用大跨度桁架加强网壳结构,在不动原有结构及基础的条件下实现屋顶造型。
△原火车站
空间关系上,设计延续了原有火车站的建筑尺度和空间关系,提炼原建筑语言,创造出新颖现代的建筑形象。博物馆公共大厅体量利用既有建筑结构,营造开放透明的城市公共客厅。
技术实现-设计体系确保高完成度为最大化建筑正立面的通透感,幕墙设计采用顶底承重的钢框架系统。高精度钢型材只在顶部和地面与主体结构相连接,中间无需其他结构支点。最高达24m的钢立柱外露,幕墙视觉效果与结构得到统一表达。
屋面造型以原建筑角点为出发点,用圆弧线的切线作为方向生成轮廓线,通过渐变手法形成富有韵律且整体统一的屋面造型。银白色的线性元素,也呼应盐城湿地保护动物——丹顶鹤羽毛意向。
在方案设计阶段,结构师提前介入,配合建筑师的造型设计。从一开始的折板方案,到网架方案,最终确定采用六边形桁架+联系桁架方案。各专业紧密配合,确保屋面造型与结构的一致性。
火车站站房改造的同时,原站前广场和候车站台也被保留利用。站前广场和进站匝道改造为城市广场,候车站台改造为室外展区。同时原有的铁轨作为城市轴线,将博物馆区域与高铁新城区域相连接,成为整个城市设计的最重要一环。
随着高铁时代的到来,城市老火车站逐步失去了原有的交通作用。如何改造火车站,使其发挥新的作用,是摆在不少城市面前的一个问题。盐城火车站案例,提供了一个全新的既有建筑改造模式。
项目图纸
△总平面图
△一层平面图
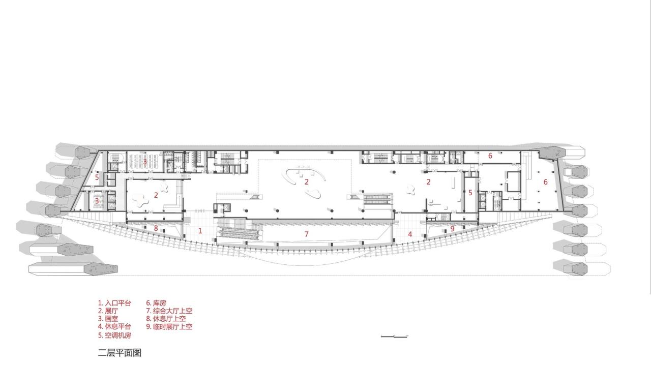
△二层平面图
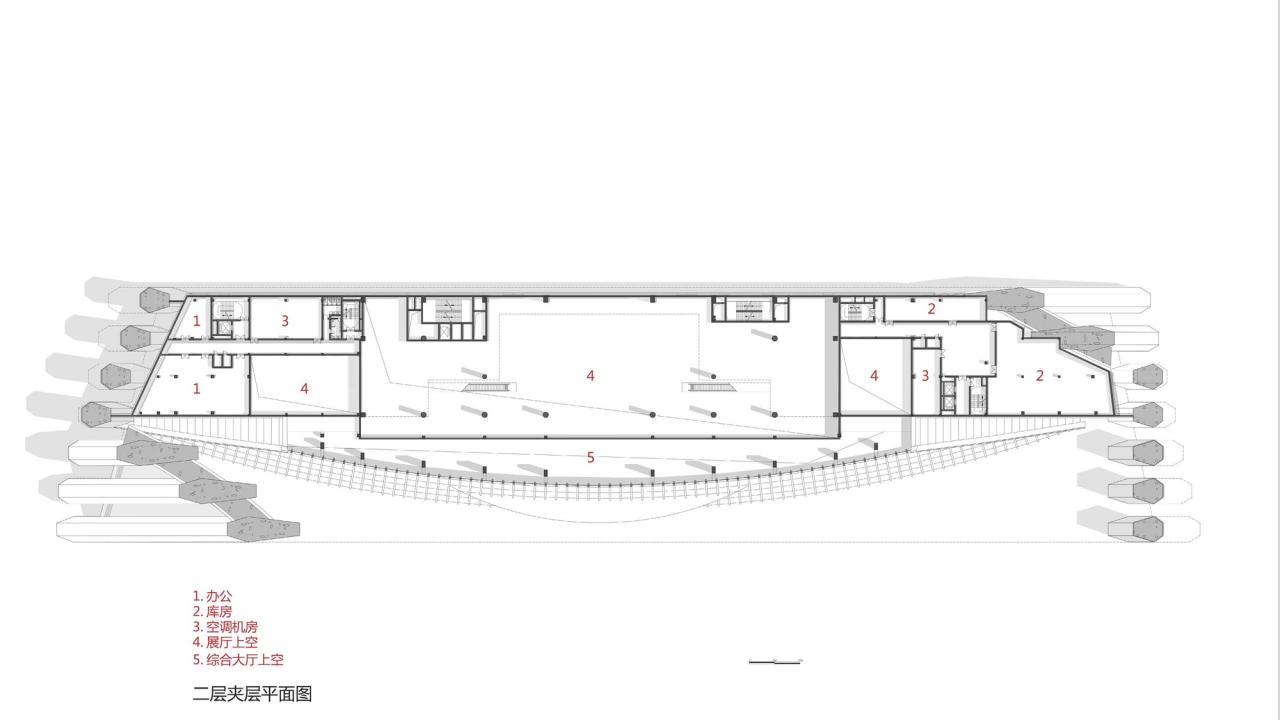
△二层夹层平面图
△三层平面图
△屋顶平面图
△主立面图
△剖透视图
△短向剖面图
△长向剖面图
△主立面斜幕墙标准段
△主立面斜幕墙标准段
△主入口双曲面雨蓬标准段
△金属双曲面屋面系统标准段
△表皮爆炸图
△功能分区图
项目信息
建筑设计: 上海都设营造建筑设计事务所
面积 : 18573 m²
项目年份 : 2021
摄影师 :章勇
主创建筑师 : 凌克戈
设计团队 : 王利民、孔君涛、刘文超、杨旺辉、谢欣准、王治国、张丁
室内设计 : 上海都设营造建筑设计事务所有限公司, 孔君涛、王倩岚、谢欣准
项目管理 : 徐燕宁、邹天辰
委托方 : 盐城市铁路投资发展有限公司
合作设计 : 上海建筑设计研究院有限公司
幕墙顾问 : 上海格锐照明设计有限公司
照明设计 : 澳颖设计咨询(上海)有限公司
标识设计 : 盐城市建筑设计研究院有限公司
人防设计 : 江苏汉筑节能技术有限公司
绿建顾问 : 上海睿柏建筑外墙设计有限公司
风洞试验 : 华东建筑设计研究院有限公司技术中心
施工方 : 中国建筑第八工程局有限公司
室内施工方 : 苏州金螳螂建筑装饰股份有限公司
景观施工方 : 杭州园林设计院股份有限公司
地点 : 中国,盐城市

BIM建筑网






































