目前BIM技术已在全球范围内的建筑业获得了广泛的认同和应用尝试,它被认为是将引发建筑业未来技术进步和管理革新的核心技术。2010年《中国商业地产BIM应用研究报告》对当前BIM应用于工程项目规划、设计、施工、运维各阶段的发展现状进行了相关调查,其中约30%的调查者认为在工程项目初期的规划设计阶段应用BIM技术将对项目总投资的控制有较积极作用;另约80%的调查者相信BIM在工程项目设计、施工过程的综合管线布置、施工进度模拟能很好地发现设计施工存在的隐患与风险;还有70%的调查者认为通过结合BIM与射频识别、手持设备等技术来开展工程现场监控和施工管理将有助于工程质量、进度、成本和风险的控制。
总之,BIM具有诸多重要的核心价值,主要表现在以下五个方面:
1、3D可视设计
采用二维CAD图纸来表达三维建筑实体是建筑业发展史上意义重大的一步,同时建筑业迈入了前所未有的繁荣。传统的建筑设计信息需要利用二维CAD图纸来记录、表达,通常由线、图、文本等形式组成。工程师对工程项目信息全面解读时常常需查阅、理解各专业的平面图纸,通过自己的想象力将多专业二维平面图还原成完整的三维建筑实体,在思维转换过程中,不可避免地出现构件忽视遗漏或理解有误进而造成工程信息的损失。然而,BIM的三维可视化表达带来了巨大的冲击,彻底改变了传统的二维抽象化表达方式,所有构件BIM模型完整地继承了建筑实体的真实属性,同时具有预设材质的构件间将拥有准确的关联属性,设计者透过实体模型能直观地了解设计成果,而无需进行信息的转换,减少设计错误的发生。如图1所示,三维可视化的BIM模型能模拟出真实的建筑效果,建筑师将更加注重方案的优化,同时给设计者提供了更广阔的发展空间。
图1 某住宅项目BIM模型室内效果展示
2、协调与沟通
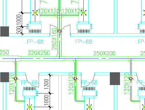
项目的顺利实施需要各相关参与方的密切合作,均应对工程方案进行全面、深入地了解。然而随着建设项目的体量不断扩大、建筑造型的独特性要求越来越高,若采用二维图纸来完成某些信息的描述可能需要绘制几十、上百张图纸,工作量巨大、费时费力。同时所绘专业图纸又是孤立、抽象且相互制约的,如图2所示,单一专业二维图纸是难以发觉多专业协调问题的,通过与其相应的立面、剖面、详图比较后,错误就显而易见了,如图3所示。在大体量建筑CAD图设计中这种状况时有发生,大大降低了设计者间沟通效率。通过BIM技术,设计者的意图可以在三维模型中直观地显示,减少了沟通障碍,使各专业成员密切合作、高效沟通,大大减少了专业间冲突的发生。
图2 空调设备CAD图
图3 空调设备对应BIM模型
3、模拟与优化
当建筑、结构、机电等各专业信息整合到BIM模型中后,可以采用数据的模拟分析来获取其内在价值。通过在BIM模型中附加时间信息,可以构成一个集成时间维的四维BIM模型,通过Navisworks等模拟工具来实现项目进度和工程实际施工过程的动态模拟;同时可对项目重要节点进行仿真和分析,来判断进度计划的合理性,提前发现其中隐患,对其进行合理修正,以期最优的施工进度计划。此外,在4DBIM模型之上还可继续附加项目成本信息,构建包含项目工程量、进度、成本等信息的5DBIM模型,不仅能实现便捷的工程量计算,而且能实现模型构件与施工流程的动态关联,从而开展项目施工的动态仿真,达到项目进度、成本的动态监控。因此相较于传统的二维图纸,可多维拓展的BIM模型带来了更多无可比拟的应用价值。
4、管理模式革新
传统的项目管理过程中工程各阶段间信息交互是相互分割开的,各参与方均只考虑自身利益的最大化,没有达成相关主体间的有效沟通和通力合作,信息交互过程损失大、成本高,施工管理效率低下。而BIM有效的打破了信息传递的壁垒,通过在项目建立初期时就组织各参与方组成统一的项目管理团队,保证了各方的有效沟通,同时BIM模型中汇集了完整统一的项目综合信息,通过施工现场动态模拟、设计碰撞检测等多种措施,使可能发生在建设后期的问题提前暴露并迅速得到解决,降低了施工成本,减少了工程浪费,同时能有效地保障施工工期。
5、项目实时管理
工程建设管理过程中现场人员总是会碰到诸多难以预想的特殊情况,有的甚至可能发生在项目关键节点之上,若拖延至工程后期,往往由于时间有限而难以找到有效的解决方案,最终导致项目延期、成本大幅增加。这种状况的发生一般存在两部分原因,一部分可能是工程现场环境的不可预见性,另一部分则是缺乏有效的现场监控和跟踪管理。BIM模型的施工模拟功能可以有效地发觉工程的部分不可预见问题,通过虚拟仿真模拟与实际现状进行结果比对来指导现场施工,从而有效地避免一些工程问题的出现。同时通过将BIM模型、RFID技术与激光扫描技术等集成整合,及时记录跟踪各种现场活动,暴露现场风险,很好地避免重大问题的发生。

BIM建筑网

