不同于传统办公建筑单一的功能诉求,企业总部是集研发办公、企业形象展示、品牌价值传递,甚至激发员工交流与合作的复合型空间。市场经济竞争愈发激烈,越来越多的大中型企业投身到各自的总部建设,以此构成新的软实力竞争要素。而从建筑设计的角度来看,如何运用建筑及空间语言来为企业的形象气质量身定制,如何从空间规划到细部建造的各阶段中反映企业价值,成为我们赋能该类型领域的思考。——孟凡浩
威星智能是一家专业从事智慧燃气仪表产品的高新技术企业,于2017年上市。业主机缘巧合地在驾车途径杭州西溪首座时,因对其形式美学与建筑品质产生了高度共鸣,于是联系到我们,委托我们完成其新总部的设计工作。
和绝大多数非地产行业的业主一样,在委托设计时,业主给到的只是一些关于未来公司总部的模糊的想象,并没有提出清晰的诉求。随着与业主交流的不断深入,我们逐渐体会到工业智造型企业对实用性、经济性、品质感的追求,以及意图在互联网快速发展的城市中寻找自身定位的愿景,“实用”、“精密”、“经济”等关键词开始逐渐浮现。我们将抽象的诉求转译为建筑语言,让建筑回归功能主义,摒弃繁复的表皮外观,精确推敲空间细节,渗入与时俱进的科技感,逐步形成差异化的工业智造上市企业形象。
业主在没有借助外部设计管控的情况下,给予我们高度信任和自由。历经四年,在建筑、室内、景观、幕墙、结构、机电等团队一体化协作下,威星智能总部顺利落地。
#01 体积策略:分离
基地位于原杭州上城工业园区,始建立于1993年,聚集了大量高新技术企业,威星智能也是其中之一。地块占地面积8599平方米,容积率2.5,密度30%,限高50米,形状呈现为东西纵向长宽比约2:1的矩形,夹杂在工业厂房、办公、自然景观和城市生活的复杂环境中。
地块西侧和北侧受到高层建筑的压迫,空间局促逼仄;南侧与城市支路接壤,成为主要的人流方向;东侧面向运河支流,是唯一的开放界面。鲜明的场地特征催生出设计的出发点,我们尝试寻找恰当的设计策略,在回应场地的同时,将场地特征转化为建筑物自身的特质。
△ 区位图
「分离交通核」是我们最终采用的空间布局策略,以最直接的方式来回应场地。对竖向交通、卫生间、设备房等辅助功能进行整体考虑,形成纯粹的服务体量布置于场地西侧,以内向的「黑盒子」来化解场地西侧的消极条件。而办公功能体量则以外向的「白盒子」面向东侧景观打开,最后在两大体量之间置入50米通高共享中庭,联系和间隔,并以通透的界面向城市敞开。
△ 形体生成图
△ 概念模型
形体的生成事实上已经建立起了“场地-体量-功能”三要素间相互对应的同构关系,意味着功能主义的建筑空间被嵌入到特定的场地之中,构成了体积策略合理性的基础。功能与体量的对应关系也帮助我们获得了清晰、简洁且富有秩序感的平面布局,初步奠定了总部大楼的气质底色。
△ 平面分析
#02 形式策略:抽象
在确定了“场地-体量-功能”的同构关系后,对建筑具体的外部形态、内部空间、表皮肌理的进一步深化,挖掘和发展企业自身的独特气质,并转译为抽象的形式语言,这也是在设计阶段与业主达成共鸣的关键步骤。
全景的视野和极高的空间灵活度,是东侧办公体量在剥离了辅助功能后最大的空间特征,我们将这两大特征最大化的映射在立面形象和空间体验中,并作为总部大楼最主要的展示面。
我们将矩形办公体量抬升至二层,并顺势在首层的南、东、北三面形成悬挑架空,在底层形成不受结构阻碍的完整界面和大尺度公共空间,强化底层空间的开放性。
在限高的控制下,体量的东立面比例几乎接近4:3,形象过于呆板,同时规整的矩形平面空间过于乏味,于是我们结合垂直与水平向发展,在东立面置入一条连续的锯齿状挑空平台贯穿4-10层,既作为立面的纵向尺度划分,也作为平面延伸的空中交流空间。
西侧辅助体量则在形式深化上加强其内向性,设计使之向南错动并高出东侧办公体量,在围合出底层入口广场的同时,体量间的不均衡创造出动势,并覆深色金属穿孔板包裹,营造出总部大楼抵抗西侧消极环境的姿态。
50米通高中庭引入垂直天光,在建立东西体量对话关系的同时,形成室内亦是室外的模糊边界。在各层置入具备会议、洽谈功能的玻璃盒子,为内部空间创造多维层次。
△ 中庭分析图
△ 概念模型
在中庭底部,一层入口处展厅与二层员工之家之间通过连续的台阶进行空间结构上的连接,并通过节奏的变化成为企业展示、员工交流的多变空间,而台阶下部则依势设置阶梯状的大型报告厅。
在为不同的空间体量赋予形式的过程中,一方面秉持实用主义,在形式操作的同时优化建筑功能;另一方面由于体量间形态区分变化体现出形式逻辑的清晰性,进一步强化建筑性格与企业气质的联系。
#03 建造策略: 协作整合
我们更愿意建筑师使用“建造”一词,最好的建筑产品则来自于“建造艺术”。——密斯·凡德罗
源于多年的实践经验积累,我们始终将建造问题作为思考和工作的核心内容之一,我们坚信当材料和细部被仔细考量时,抽象的形式语言才拥有了真正的意义。
3.1 结构、机电协作整合
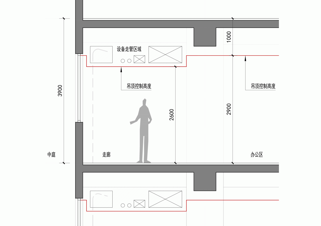
50米限高、首层6米的空间要求将标准层层高压缩至3.9米,小于通常办公楼的设计层高。如何在层高矮、跨度大的情况下提高核心空间的净高,是我们在深化设计中面临的一大挑战。在与结构、机电设计师的密切协作下,最终确定了最大结构梁高700毫米,将较大尺度的设备管线贴边布置,实现核心办公空间净高2.9米,走道等次要空间净高2.6米,达到了常规4.2米层高办公楼的净高尺度。
△ 办公区净高分析图
另外,东侧体量双排柱的设计可以保证办公空间无阻隔的开放性和使用的灵活性,同时在南北两端各设置一处筒体结构,在2-3层通过钢结构斜撑转换柱结构,以实现南北首层10米悬挑的形体需求。设计过程中我们与结构设计师就结构转换是通过斜撑还是斜拉进行了反复讨论,最终确定了斜撑的形式,将转换结构对使用空间的影响降至最低。
△ 结构转换分析(斜撑转换对空间影响最小)
△ 工地照
3.2 表皮建造
在成本受到严格控制的前提下,我们依然致力于创造精致且持久的立面细节来展现业主作为精密仪器智造企业的特质。
设计首先秉持经济性的务实态度,摒弃装饰构件以及幕墙转折变化、横竖百叶等常规做法,删繁精简,以单元式玻璃幕墙形成干净平整的立面,以常规成本的细部构造设计形成非常规的视觉焦点和建筑形象。
白色渐变点釉玻璃幕墙,通过逻辑性地排列白色釉点而得到非常规的表皮形式,在周边城市中形成自身的标识性。釉点由玻璃上下端渐变分布至人视野的中间部位,既有效地降低能耗又不影响室内视野,而外部也会随着视线角度的变化呈现出不透明、半透明、透明的多种状态。
△ 立面(图左)剖面(图右)
△ 幕墙剖面
前期,我们通过大量的图案研究以及1:1打印的方式对釉点进行细致推敲,以节省实体打样的时间和经济成本,最终现场mock-up一次成样便达到预期效果。彩釉玻璃表皮采用单元式幕墙的施工工艺,标准化的生产安装不仅有利于控制施工现场的精度,同时大幅节省施工的时间成本,工业智造的优势在建筑施工中得以体现。
△ 幕墙mock-up
西侧服务空间体量,我们采用深色穿孔板作为建筑表皮,以粗犷的重金属质感与东侧精致的玻璃体块形成重与轻、实与透之间的强烈对比。深色穿孔板体量的实体感要求建筑内外的完全一致性,建筑室内一体化设计控制的优势在此刻发挥了决定性的作用。我们将外立面的材料、构造做法、形式语言延伸至室内,形成内外统一的表皮策略。穿孔板内空间常规开窗的洞口边界与外侧幕墙分割进行严格对位,避免幕墙横竖结构对功能空间的消极影响。
穿孔板的孔洞形状和尺寸间距要同时满足室内的通风采光以及室外的立面虚实效果,在经多次比选打样后,最终确定了12毫米圆孔孔径,8毫米间距,32.65%穿孔率这一组数据。设计之初我们选用8毫米厚板材以求达到完美的平整度,但出于造价的考量最终将板材厚度降至5毫米,结合背后两道背筋的构造手段,有效节省成本的同时也基本达到了设计预想的效果。
△ 穿孔板背筋示意图
电梯厅位于体量中段,视线对位在西侧两栋办公楼的缝隙间,我们将其完全贯穿东西,成为穿孔板体量唯一的对外窗口。
中庭的南北侧立面我们采用超白高透玻璃,以凸显中庭空间的公共属性,弱化室内外的边界。
为了有效降低中庭能耗,在玻璃顶面我们结合玻璃划分合理置入电动遮阳帘以提高夏季中庭空间的舒适度。大尺度玻璃中庭顶部的排水问题亦是需解决的重要一环,最终在建筑、结构、幕墙三方的通力合作下得以解决:将中庭玻璃顶标高降至48.9米,与东西建筑结构顶板标高一致,在中庭玻璃顶对应位置(女儿墙翻边底部)预留整垮的结构孔洞,同时将玻璃顶中间微微起拱,朝向东西两侧找坡,雨水即可穿过女儿墙上预留的结构孔洞流入东西两侧塔楼的屋面排水沟后有组织地排掉,这样的构造设计使得体量间的交接干净简洁,保障了形式逻辑在细节上的延续性。
△ 采光顶排水分析
#04 沟通策略:坚持与妥协
出于业主的高度信任,设计阶段非常顺利。但随着实际建造的推进,在两处空间的实施上,设计师与业主的诉求产生了分歧。
4.1 通高中庭北连廊
原方案中,北连廊覆穿孔板,同时在4-5层、9-10层设置悬挂楼梯,设计师考虑到北面外部为较低品质建筑,会对入口处的空间氛围产生视觉干扰,但业主认为,这样会导致中庭空间过于封闭。起初我们并未妥协且极力说服业主,但在施工阶段,业主面临成本压力,希望我们进行优化设计以控制造价。我们重新进行空间模拟,最终决定取消此处穿孔板表皮和两个外挂楼梯。
直至项目建成后,置身于中庭时仍在脑海中回想模拟当初的设计效果。虽然从空间趣味性角度看,设计的出发点并没有问题,但在实际的空间中,由于人在入口门厅的视点较低,视角受到连廊底板的遮挡,外部建筑的视觉干扰影响很小。如果坚持原方案,连廊处深色穿孔板与西侧塔楼的穿孔板关系含糊,反而会弱化建筑的体量关系,也会使中庭采光不足,空间压抑。这次妥协反倒成为了由业主成本压力引起的设计校正。
△ 原方案效果图(左)与建成照片(右)对比
4.2 东侧临河面阶梯状空间
第二处是东侧临河面阶梯状空间的打造。将外部共享露台延伸至室内,在内部形成连贯的两层通高的共享空间,内外呼应,这是一体化设计的重要一环。然而在施工后期,业主为了方便未来分割出租管理的考量,要求取消室内两层通高设计。迫于建造经济压力,以及对业主诉求的理解,最终我们还是取消了此处通高空间。这也是本项目在设计上唯一的遗憾。
△ 原室内两层通高工地照
任何项目在设计、建造过程中都不可避免的会有所妥协,业主的诉求有时会对设计产生积极的校正,有时也会迫于不断变化的现实情况对设计产生一定的损伤。当发生分歧时,建筑师不妨站在业主以及使用者的角度来重新进行理性且全面的考量,一定程度的妥协亦是我们建筑师对待专业工作的职业素养。
#05 一体化策略:控制
威星智能总部是我们尝试全面一体化策略的建成项目。建筑、室内、景观一体化策略不仅串联起建筑的形式语言、功能布局、空间氛围,同时也贯穿了全项目周期。在与项目业主的不断沟通中所形成的默契,使我们更容易捕捉业主诉求并对其进行空间转译,减少沟通成本的同时,也能节省实际的建造成本,高品质地将设计概念落地。
5.1 平面功能的对位
企业总部设计中无法回避的一大问题就是办公区域的反复调整,也正是因为这个原因,在前期就将辅助功能剥离至西侧体量后,室内设计通过建立清晰的功能区域策略来应对办公区划分的不确定性。报告厅、咖啡厅、展厅及健身房等公共设施被集中设置在1-2层,保证可达性并提高后期管理和运行效率。
除顶层的公司高管独立办公,中间的标准办公层均采用“大比例开敞办公+小比例独立办公”模式,由三面玻璃幕墙和中庭侧的超白玻提供充足采光。这样一来就可以将办公分区调整所带来的对设计及工期的影响降至最低。
5.2 模数应用的精准
对应单元式幕墙,办公区域中大空间的金属拉伸网板以及小空间的划分均以此为基本模数,甚至延伸至入口广场的景观地铺设计,在对内外空间品质高度可控的同时,由内而外地表达精准和秩序的企业精神。
5.3 空间内外的模糊
是室内亦是室外的通高中庭,不仅在材质上将内外立面做到了高度统一,均由幕墙单位统一深化落地,同时将具有户外感的体验也融入其中。我们希望激发在其中办公人员的交流互动,空中庭院、共享空间,在通透的玻璃映射下,景观自由渗透。
室内设计在氛围营造上也顺应东西体量特征,深色穿孔板体量内部是深色的会议室、报告厅和具有工业感的辅助性空间,基调冷静;玻璃体量是素白的办公区域,基调明亮。室内用材在对比中互相穿插,场景多变,但空间连续。
结语
从项目设计、建造,到最终落地,四年的时间里,我们与业主反复沟通的不仅是设计概念、技术解决,更多的是帮助非建筑专业的业主理解建筑语言,整合诉求,并逐渐描摹出他的建筑想象,奠定双方相同的价值认知,以建筑设计为主导,提供自下而上的设计路径,多方配合,推进项目更好的发展。“有效沟通”也逐渐成为我们在面对非专业业主的重要技能。
如今,威星智能新总部大楼已经落成。尽管没有出跳的高度、夸张的造型、昂贵的表皮,但通过实用的建筑功能、非常规的肌理设计、精密的细节构造、高度一体的内外空间、严格把控的建筑品质,在相对常规的成本控制下,克服技术难题,营造独特的建筑气质,在周边区域内展现出独树一帜的标识性。
我们相信好的设计不仅是面对场地时的激情创作,更是基于客观条件下的理性思考和不断校正。在与业主、合作团队多方共同的价值框架内,用科学的方法控制每一个环节,分析、探索、研究、推敲,在各要素之间建立起内在的逻辑联系和平衡。
项目图纸
△ 一层平面图
△二层平面图
△八层平面图
△十二层平面图
△ 东立面图
△ 南立面图
项目信息
项目名称:杭州威星智能总部
项目位置:浙江,杭州
设计单位(建筑):gad 、line+建筑事务所
设计单位(室内、景观):line+建筑事务所
主持建筑师/项目主创:孟凡浩
项目负责:李昕光(建筑)、祝骏(室内)、李上阳(景观)
设计团队:李昕光、黄广伟(建筑)、祝骏、邓皓、葛震亮、张思思、邱丽珉、陈文(室内)、李上阳、金剑波、池晓媚(景观)
结构机电设计:浙江绿城建筑设计有限公司
设计团队:吴映栋、吴雪峰(结构)、崔大梁、房园园(暖通);吴文坚、张斌、赵雅萱(给排水);劳晓镜、刘荣(电气)
幕墙及灯光顾问:上海伊杜幕墙建设咨询有限公司
建筑面积:31914.01平方米(地上21497.49平方米,地下10416.52平方米)
设计时间:2017年7月-2020年12月
建造时间:2018年8月-2021年12月
业主:浙江威星智能仪表股份有限公司
结构:框架-剪力墙结构
材料:白色渐变彩釉玻璃、深色穿孔铝板
摄影:shiromio、Aaron&Rex、陈曦

BIM建筑网









































































