漂浮感是建筑师对台北艺术大学建筑的初始设计概念。作为一个致力于新媒体和技术艺术的实验基地,该建筑由几个不同规模的“盒子”组成,它们是建筑主要的结构体系。除了表演、展览和讲座功能,这座技艺展馆还包括操作中心、办公室、演讲厅、实验室和工作室等区域。
科技与艺术展馆的设计源于两个平行的概念:一个是呼应台北教育大学的建筑传统和形式,另一个是将与校园内的其他空间相互联系,为艺术实验创造了一处崭新空间。
目前,大多数建筑都是对称结构,带有倾斜的屋顶和附在斜坡上的飞扶壁。在空间布局上,这些建筑通常有中庭或庭院。然而,作为新媒体艺术的实验基地,新技艺展馆的设计体现了“当代”与“未来主义”精神。因此,它的设计脱离了传统风格,设计师将建筑变成悬浮在空中的“黑盒”和“灰盒”组成的主体,“黑盒”和“灰盒”空间被赋予了功能主义和结构主义内容,其外部空间,或者说是“黑盒子”的“表皮”,由坡道组成,既满足服务功能又作为自然通风通道存在。与此同时,“灰盒子”是未明确定义功能的空间,它们广阔的网状“皮肤”,使得光线自然渗透其间。
建筑位于校园主干道的尽头,这条主干道原本是一个通往体育游泳中心的广场,用于公共汽车的转站和停车。这个场地适用于各种类型的活动,从这里可以俯瞰绵延数百英里的官渡平原。正是因为这个原因,设计师运用四座大型构架来托举巨大盒体,并在其下面营造出一处“雨棚空间”。这个空间不仅继续服务于原有的停车、车道转弯,以及作为体育和游泳中心的入口的功能,而且也有充足条件随时转变成一个可供艺术展览、学生活动和全民参与活动的聚集场所。连接该空间往上走的是一条蜿蜒路径,走在这条路上,时而与黑盒子并肩,时而绕着黑盒子四周漫步,直到你看到那片令人心旷神怡的、辽阔的官渡平原。
项目图纸
△一层平面图
△二层平面图
△三层平面图
△四层平面图
△五层平面图
△屋顶平面图
△立面图
△立面图
△立面图
△立面图
△剖面图
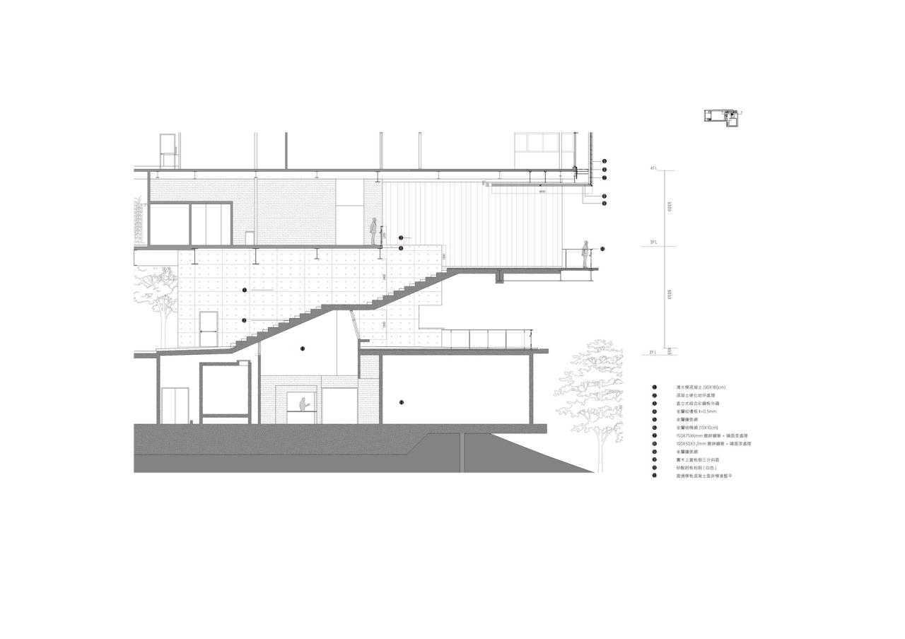
△剖面图
△爆炸图
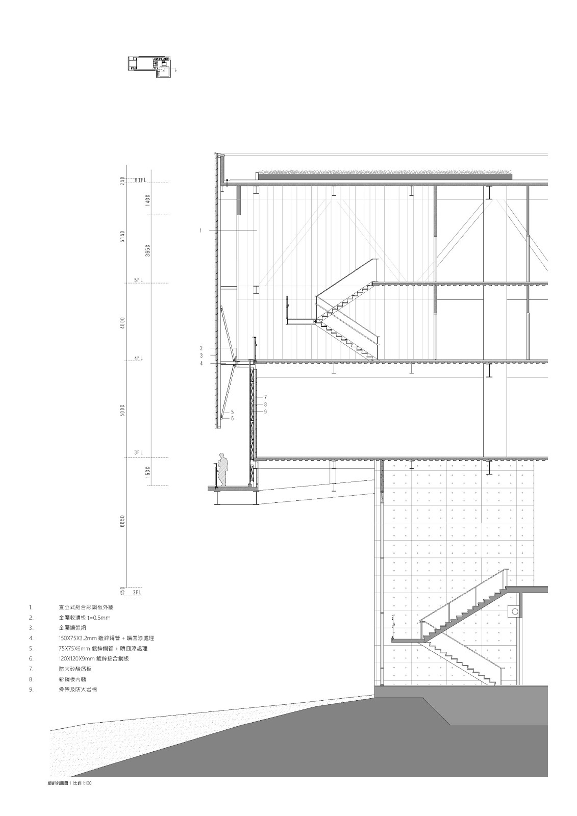
△细部剖面图
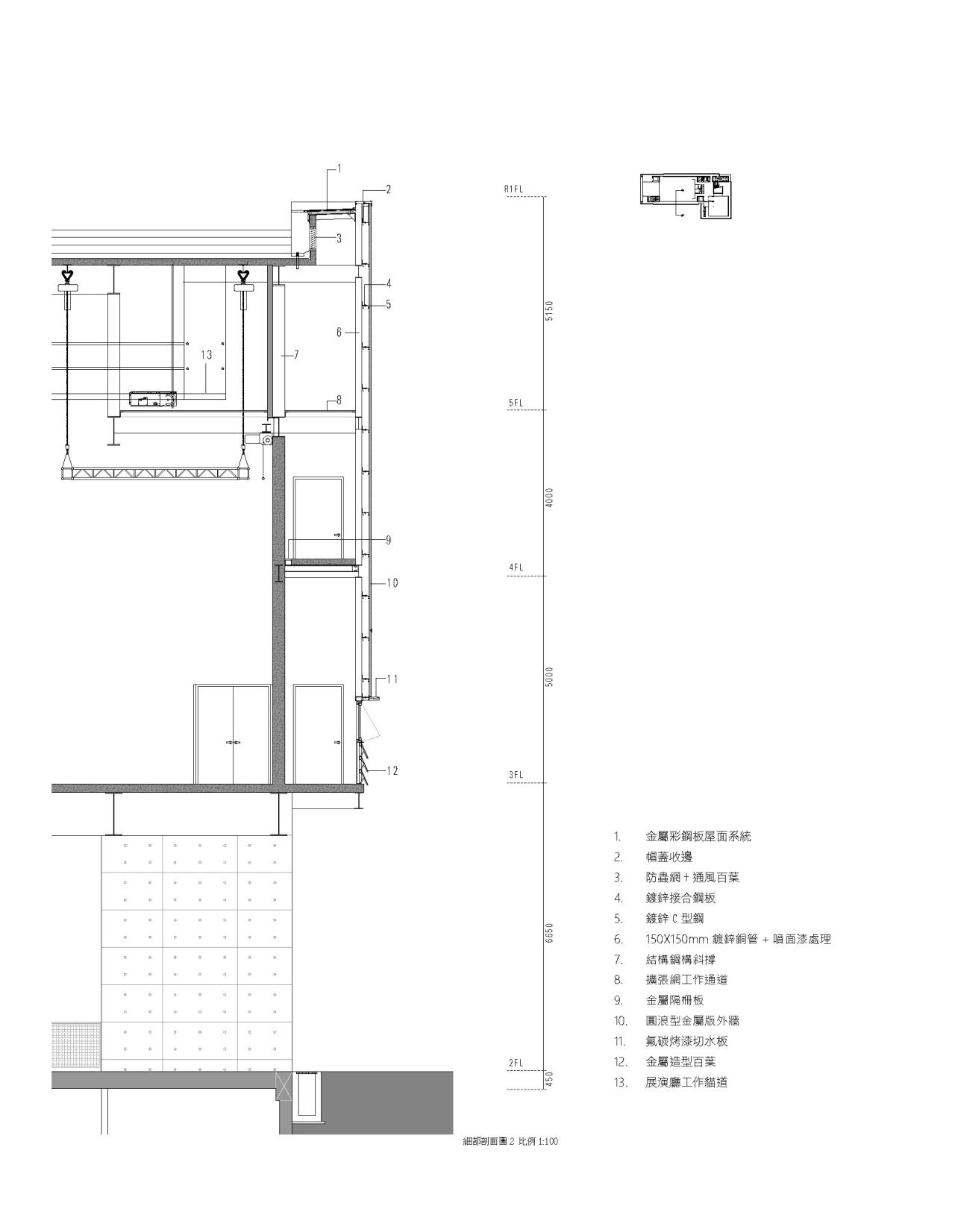
△细部剖面图
△细部剖面图
项目信息
建筑设计:EHS ArchiLab,Hsuyuan Kuo Architects & Associates
面积 :78257825平方米
项目年份 :2021
摄影师 :Yi-Hsien Lee and Associates,Shephotoerd
主创建筑师 :郭旭原
建筑设计 :EHS ArchiLab, Hsuyuan Kuo Architects & Associates
地点 :中国台湾

BIM建筑网












































