柳河町住宅坐落于日本的住宅区,是一个四口之家的私人住宅。在该项目中,我们在房屋的边缘竖起了一层半透明的聚碳酸酯围墙,将房屋与周围环境分开,使其看起来像漂浮在空中。这个漂浮在空中的围墙创造了隔断,但是由于它是漂浮的,房屋本身仍然直接与周围环境相连通。
围墙内上方的空间隐蔽于外部空间,但下方的空间则与外部空间产生直接相连。在该项目中,我们用漂浮的围墙来定义空间特征。当我们对房间的位置和它们与环境之间的关系进行了仔细的推敲后,该项目的最终设计逐渐成型。
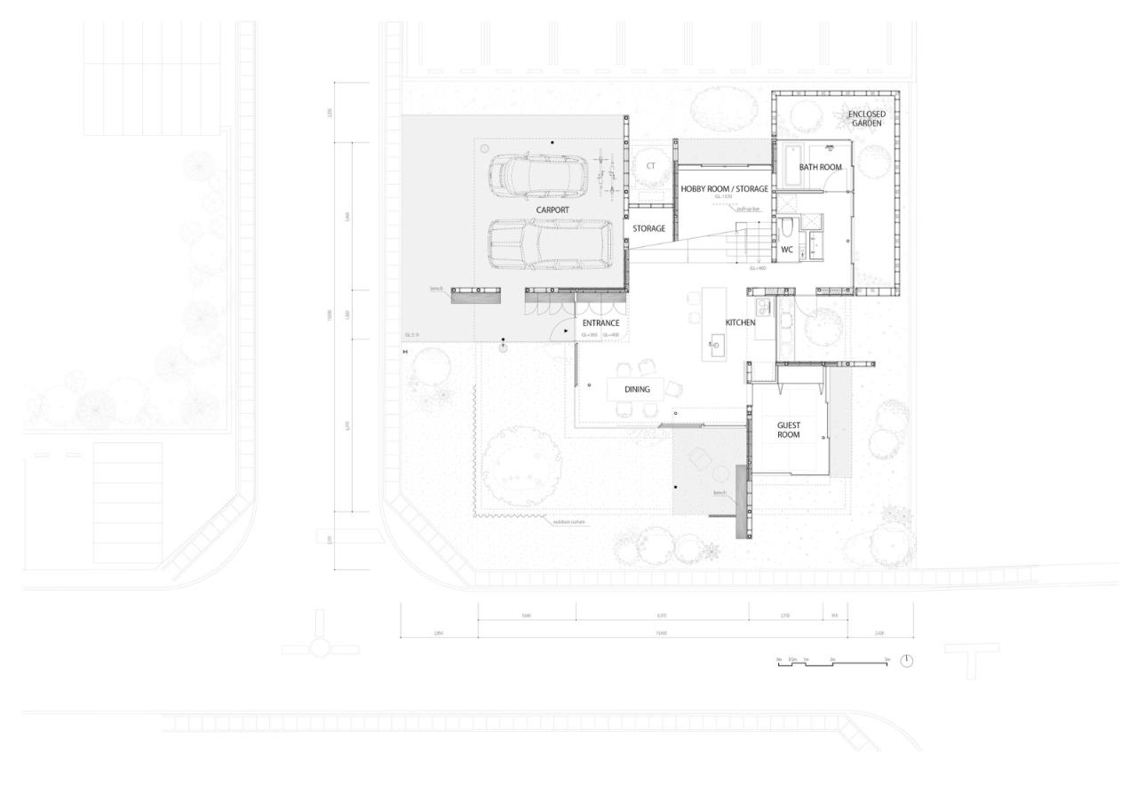
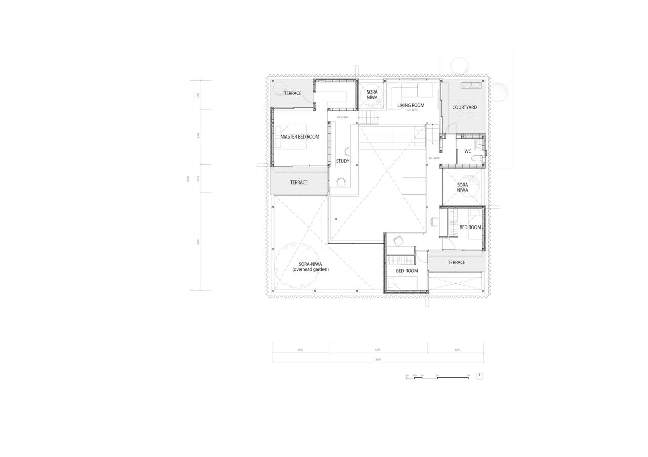
餐厅和厨房被设计在了房屋的中央,它们被其他的房间所包围。这些周围的房间有不同的层高,并且它们在没有隔断的情况下相互连接。虽然需要更多私密性的房间被放置在了较高的楼层或半地下区域,但是每个房间都是相连的。通过这样的手段,使用者无论在房子的哪个位置都能感受到彼此的存在。
漂浮的围墙下是一面窗帘,它可以根据需要打开或关闭外部空间。这样的设计改变了封闭空间的特征,它允许使用者改变房屋与社区之间的关系。外部空间可以通过这面窗帘转变成为公共区域或私人空间。通过将周围环境与房屋内部连接起来,我们希望创造一个开放和活泼的家。在这个家中,居住者成为了外部空间的一部分,而外部空间则成为了他们的花园。
项目图纸
△一层平面图
△二层平面图
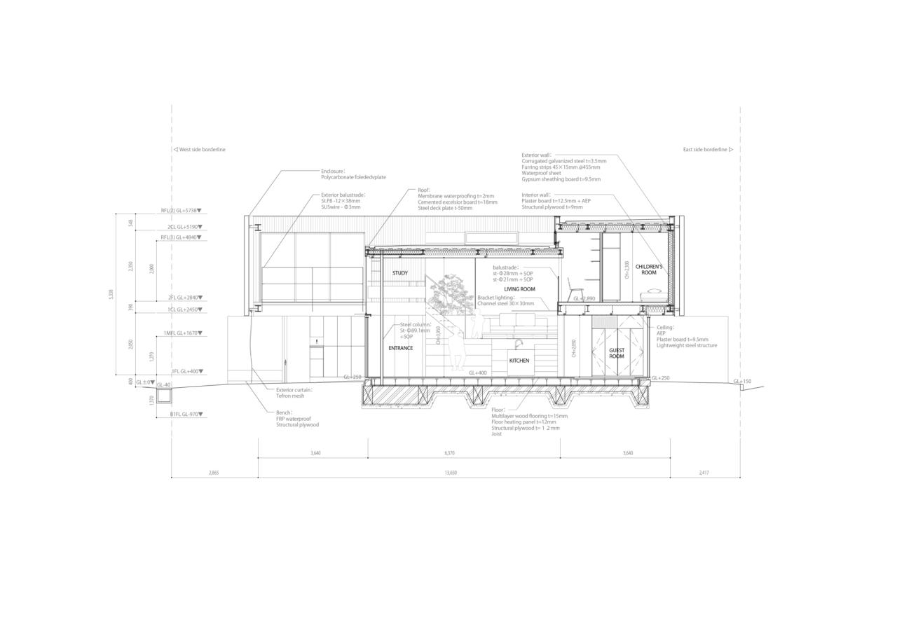
△剖面图
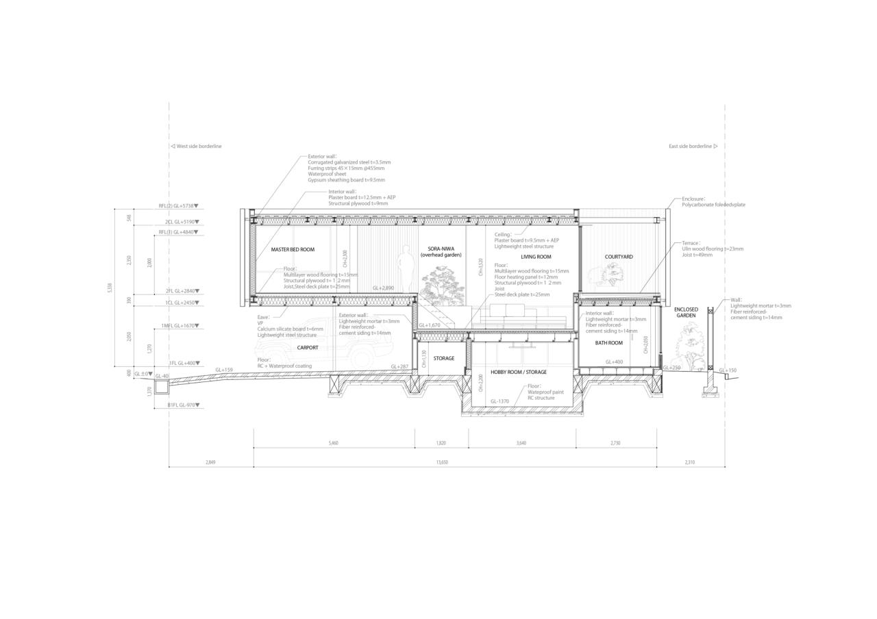
△剖面图
△剖面图
项目信息
建筑设计: Taiga Kasai + Chong Aehyang Architecture / KACH
面积 : 173 173平方米
项目年份 : 2020
摄影师:Vincent Hecht
厂家 : C.I. TAKIRON Corporation, Serge Ferrari, Tsukiboshi Shoji
建筑设计 : Taiga Kasai, Chong Aehyang
结构工程师 : Yuko Mihara
纺织品设计 : Yuri Himuro
地点: 日本

BIM建筑网


























