纵览图学会全国BIM一级考试试题还是很多的,但是如何能够做得好,首先就是要对题目有所理解。那么举个例子——构建集的题目,你对它有所了解吗?今天给大家讲解以下如何以构建集的方式绘制桥,希望对大家的学习有所帮助。那什么是构建集?
通常我们建构建集就是建族,所以这些题我们可以用“新建族—选择常规模型样板”或者“体量”来做使比较简单的,接下来为大家做个简单的讲解。
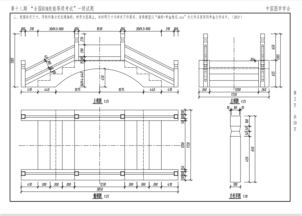
以下为历年图学会以构建集方式绘制桥的例题
接下来,我们以十八期的题目为例题来演示
这题拱桥需熟练掌握拉伸、放样和融合
第一步,先用“拉伸”命令绘制这题拱桥的承重部分,在通过“镜像”命令绘制出另一半。
第二步,用“拉伸”命令绘制出台阶部分
第三步,用“拉伸”命令绘制出栏杆部分,同理“镜像”出另一部分
第四步,用“拉伸”+“融合”命令绘制出立柱部分,先绘制出一个,剩余部分同理用“镜像”命令绘制完成。
成果展示
微信公众号:xuebim
关注建筑行业BIM发展、研究建筑新技术,汇集建筑前沿信息!
← 微信扫一扫,关注我们+

BIM建筑网












