在存量土地越来越稀少的时代背景下,我们希望可以复活旧的工业厂房,并赋予它新的历史使命。在极限的场地条件下,融入更多的自然元素,让建筑自然呼吸,多维度的为学生创造更多学习、运动、休闲空间。
项目背景
深圳市明珠学校旧校区位于深圳市罗湖区爱国路2011号,办学至今已有25年的历史,隶属罗湖区教育局,是我市首批教育体制改革的国有民办学校。为了解决老校区设施老化、学位供应不足等问题,明珠学校决定建设新校区,为师生提供更好的教学环境。
新校区位于深圳市宝安区沙井街道向兴路,恒明珠(沙井)科技工业园园区东侧,占地面积34200平方米,建筑面积63635平方米。学校由工业园区内五座职工宿舍、三座商业、一座仓库改造而成,预计将于2022年9月开学,改造后将为周围居民提供2160个高中学位。
项目思考
随着城市快速发展,存量的土地越来越少,城市的有机更新,存量规划下的旧工业区再生,成为城市化进程中不可或缺的一环。我们在此思考,如何在保留大多部分厂房原有结构上将楼群有机联系在一起,在用地两侧临街的现状条件下将校园内的噪音降到最低。厂房布局具有局限性导致运动空间不足、如何打破原有厂房的格局并解决柱跨过宽的问题?无一不是对设计的挑战。
多维校园
“这座建筑的设计策略不是要设计一座标志性的新建筑,而在于建造和修复这座城市的一部分,为了实现这一点,建筑师感到有必要观察现有的大环境,发现它的独特之处,给它恢复一种特殊的建筑氛围和个性。” 我们保留了厂房原有的大多部分原始结构,为了统一原始厂房的外立面,使其更加整体,我们在主入口立面上增加了两条弧形盖板,弱化两座楼的边界关系,在形态上就像敞开胸怀的臂弯,迎接学子们的到来。
在学校主立面上运用大量的红砖的元素让建筑回应工业美学,寻找历史的痕迹。为了防止沿街噪音,在立面上使用了更多实体墙面,采用隔声性能大于35分贝的双层中空隔声玻璃和外窗通风器,利用外窗通风器可将室外新风舒缓的引入室内,并可根据人们的实际需求调节风速,改善教室的室内空气质量,并提供足量的新风。因为场地的局限性,导致运动空间不足,于是我们便把屋顶打造成连续的运动场,设置了屋顶跑道、羽毛球场、乒乓球场等孩子们可以“上房揭瓦“沐浴在阳光与树影下。
布局上为了把改造空间激活,把学校入口原来圆弧形的走道空间改成一个三层通高半弧形展厅,成为展示校园文化的窗口,同时在校园的主轴上置入一个梯形空间与大台阶丰富校园不同层次的空间场景。因为原始厂房中心走廊柱距过大,我们把主教学楼的内部进行局部掏空,通过大片的天窗采光让阳光充满中庭。置入上下起伏的连廊,引入绿植和不同功能的休闲平台打造丰富的校园内部场景以适应孩子课后休息的不同需求。
沉稳&轻盈
建筑室内一体化设计
相比于建筑立面的沉稳,我们特意将室内空间设计的灵动、轻盈。使用极简主义几何空间形式,对称,弧线,光影明暗作为空间背景。将建筑中的材质拼接,色彩冲突,空间冲突融入到室内空间设计中,通过软装增加空间质感。为更好凸显工业与新生,我们以创造更多充满自然的绿色空间为出发点,在校园中创造更多的自然场景。并在中庭增加了阅读区和多种功能的休憩平台,提升学生课后时间的趣味性。将图书馆的大空间划分成小区域,并在每个区域设置不同的读书空间,运用坡屋顶元素和绿植营造坐着屋檐下沐浴阳光的读书氛围,除了阅读区我们还设置了一些小的讨论盒子,和演讲空间,满足不同的场景需求。
教师食堂的设计以暖色与绿植点缀为主,并营造出自助餐厅的氛围,让老师在走进餐厅的时候感觉到温暖和放松,吧台和卡座的用餐设计可以促进老师之间的关系,在用餐时愉悦的交流教学上的不同观点。从建筑到室内,我们尝试以不同角度解构这所学校,打造多维度室内建筑一体化校园。
项目信息
△改造策略
△改造策略
△改造策略
△改造策略
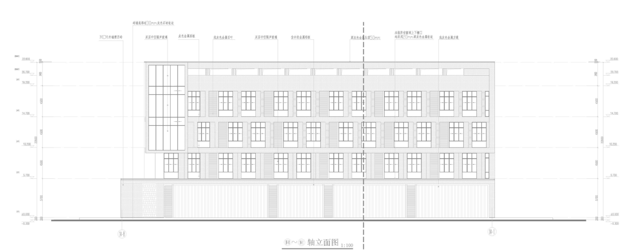
△教学楼立面图
△教学楼立面图
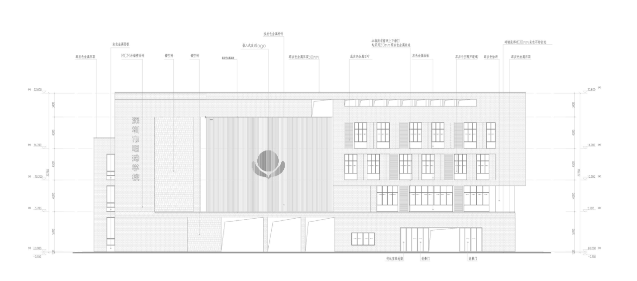
△食堂立面
△食堂立面
△主教学楼内庭立面图
项目信息
项目名称:深圳市明珠学校 (高中)
委托单位:深圳市恒明珠房地产开发有限公司
建筑设计单位:一境建筑设计
室内设计单位:万间室内设计
施工图单位:深圳中海世纪建筑设计有限公司
项目地址:深圳市宝安区沙井街道向兴路
用地面积:34200m²
建筑面积:63635㎡
容积率:1.86
建成时间:预计2022年9月建成

BIM建筑网





































