Choice 公司的总部位于清迈的安普穆昂区(Amphoe Mueang)。这个区包罗了许多文化珍宝,尤其是一些泰国本地的建筑元素,例如 Long-kao 建筑(水稻收割房)、清迈古城墙(如松达门Suan dok gate)或传统泰式阳台。这些元素能够用于区分现代建筑和自然界里的建筑。这座建筑拥有简单的布局和功能,它有 4 城楼高,采用了加固混凝土构架。其中最重要的地方是中央庭院,它为建筑带来了自然光照。
为了获得自然的通风,入口大堂被架高了。大楼梯(GRANDSTAIR)作为一个过渡区,将一楼广场和二楼开放空间分割开来。它也是一个多功能场所,为办公室员工们创造出融洽的氛围。它用作举办员工活动、休息、会议或者讲座的场所。在空间规划上,主要以面朝风口和有阴凉处为目标。核心区(CORE)是一个临时活动场所,它被安置在西面。像办公室、会议室这种长时间使用的空间,则被一一安置在北面、南面和东面。
建筑采用了少柱体结构(COLUMNESS)。间距稀疏的柱子打造出了宽阔的开放空间。这种结构为未来的布局改变提供了灵活的选择。主楼梯被设计为一个欢迎所有使用者的空间,它将所有人都汇聚到办公室。它被故意设计成让人们多运动并减少能源消耗的大楼梯。办公区包括了两种类型:75% 的正式办公区和 25% 的非正式办公区。这有利于灵活应对不同的空间需求,并打造一种友好的氛围。办公区能激发员工们的创造力,让他们适应科技对生活习惯带来的改变。
建筑选择了乡土砖块(VERNACULARBRICK)作为主要材料。这是一种本地材料,它造价合理并容易获得。建筑集合了多种自然原材料,例如在玻璃和铝窗等现代材料中穿插使用木材和生混凝土材料。这展现出泰国本地材料和现代材料之间的完美平衡。在此建筑中,这些室内外区域使用了乡土砖块(VERNACULARBRICK):
1.建筑外立面。乡土砖块被设计为可以隔热的百叶窗。这些空心砖被整齐安装在建筑的外立面区域。
2.一楼的大楼梯(GRANDSTAIR)区域。乡土砖块作为铺装,体现出材料的连续性。它使大楼梯降低了建筑的体积感,并增加了建筑的安全感。
3.入口大堂。大堂墙壁由黑色的乡土砖块筑成,上方有陶瓷砖作为装饰,映射出纳王朝(LANNA)昔日的辉煌。
除了这些独特的建筑元素,可持续发展既是建筑设计中的准则,也是此项目必然考虑的一点。CHOICE 办公大楼正在申请泰国绿色建筑协会(TGBI)的白金树认证。
项目图纸
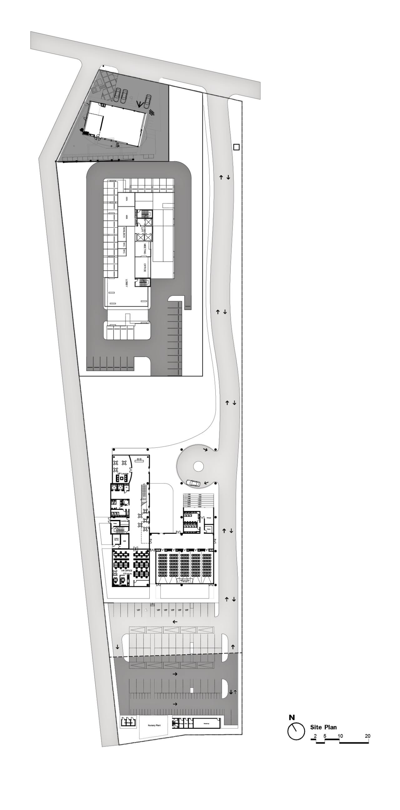
△总平面图
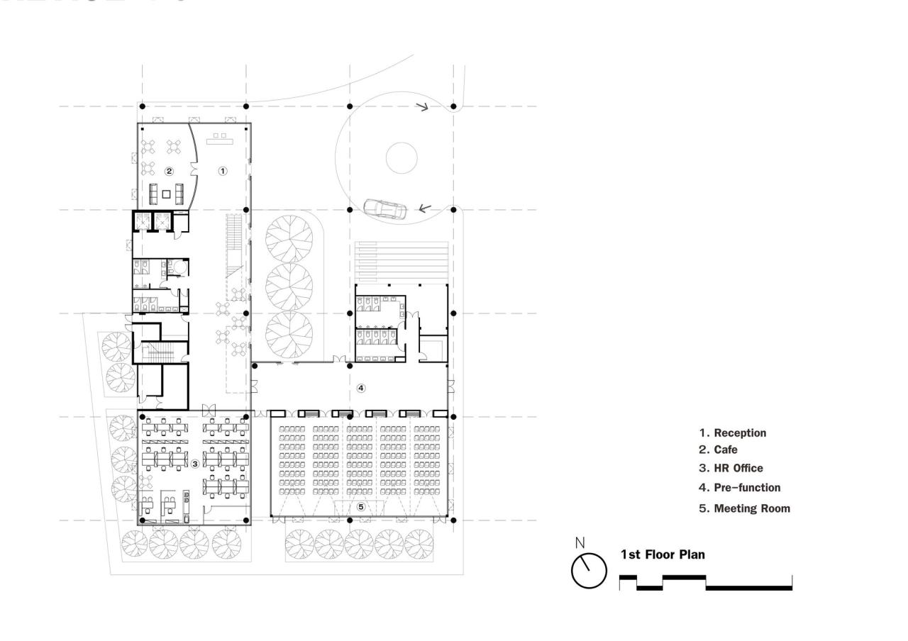
△一层平面图
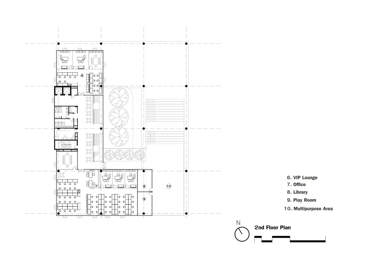
△二层平面图
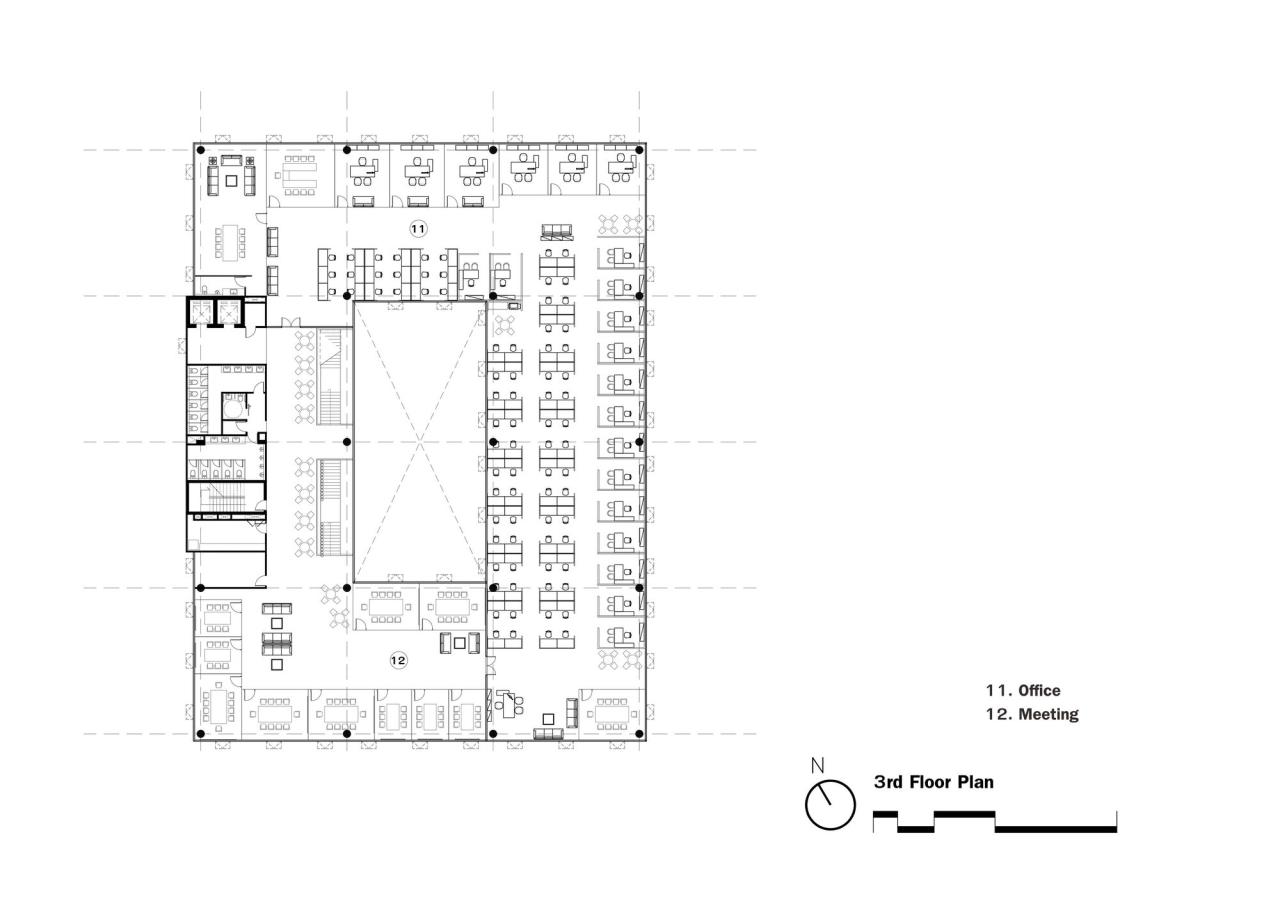
△三层平面图
△四层平面图
△分析图
△分析图
△百叶窗细节图
项目信息
建筑设计: Plan Associates
面积 : 5300 m²
项目年份 : 2021
摄影师 :DOF Sky|Ground
厂家 : A.P.K. Dawkoo, AGC, Fameline products
合作方 : PSAA Consulting Engineers Co.,Ltd., EEC Engineering Network Co.,Ltd.
地点 : 泰国,Chiang Mai

BIM建筑网



































