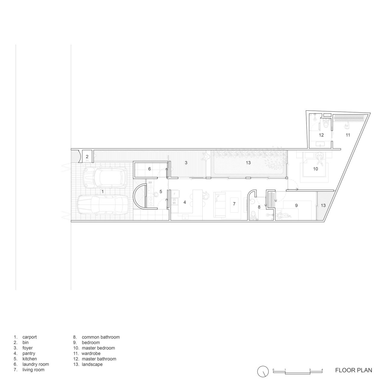
这座一层的房子位于印尼雅加达南部的一个居民区,占地狭长。虽然从外表看来它非常严实且不寻常,但进入内部后的感受是非常真实的。木格栅的顶部让阳光充分的洒进主入口处,之后则是一个门厅和一个内院。门厅作为一个过渡空间,软化和模糊了外部世界与内部的生活空间。
客厅、餐厅和主卧是这个住宅三个主要的房间,都可以直接看到庭院。起居和餐厅设计为开放式,通过滑动门,以促进整个空间的更好流通,甚至串联起室内外。因此,在这个狭长的空间里,我们仍然希望为这家人营造出愉快的空间体验。
整个房子的空间都设计为直接通风,以最大限度地提高空气流通和自然光的利用。从立面看到的高塔不仅为房子增添了个性,也对洗衣房的通风(烟囱效应)至关重要。在半月形的混凝土表面后,还有一个拥有通风散味的大窗户的厨房。这个混凝土高塔阻隔了与街道的视线,为厨房增添了一丝隐私性。空气流通和人体尺度是这次设计的两个关键要素。
这个房子受到我们再熟悉不过的半圆弧影响很大。不仅在外立面上表现得很明显,在室内和家具中也反复被使用,最终家和它的内部仿佛被曲线卷在了一起,因此严实的外观看起来仿佛也是流动的。陌生的环境也变得亲和了起来。
项目图纸
△街区平面图
△剖透视
△平面图
△立面图
△剖面图
△剖面图
项目信息
建筑设计:Isso Architects
面积 :87m²
项目年份 :2021
摄影师 :Ernest Theofilus
厂家 : Toto,Atlas Concorde,Blanco,Dekkson Lock,Jotun,Lemkra,Niro Granite Indonesia
主持建筑师 :Wibisono Soegih
项目团队 :Stephanie Tatimu, Muhamad Rifsa
总承包商 :Meidi Dwimarditanto

BIM建筑网























