在距离苏州半个小时左右车程的地方,位于锦溪镇的最南端,有个经典江南水乡式的小村庄,尚明甸。河道穿梭于村落之间,将村落划分为若干片。
△项目鸟瞰
△项目鸟瞰
在西北侧地块原来为废弃的厂房区块,我们项目就落座此处,基地三面紧邻住宅,南侧挨着河道。
△项目场地
项目的主人,在上海经营避风塘餐饮多年,一次偶然的机会路过此处便喜欢上了村庄的自然与宁静。希望工作之余可以在这里生活。和亲朋好友找回曾经村落里的记忆。同时也希望做一次城市餐厅到乡村餐厅的转变的尝试,随着国内乡村建设的进程,不仅是面貌,城市餐饮液态是否在乡村也能重新融合产生一种新的模式。
01场地策略
设计的切入点是对场地的思考,项目场地的东西两侧紧挨着民房,北侧仅有一条村里通道,三面都是建筑,入口区域相对狭小且拥挤。再此基础上优化场地布置,打破原有横平竖直的民居布置,将入口区域内退,形成一个小型前院。让场地增加一处过渡空间,同时拉开与周边建筑的距离形成一个舒适的尺度关系。
△形态生成分析图
我们希望建筑呼应村落肌理,村落的自由源于建筑跟随场地的肌理变化,建筑可能因为一条河,一棵树,也可能因为一个好的景观面而旋转角度。我们将二层以上住宿空间拆分成三栋独立的小尺度建筑,最好的景观转向水面,通过对采光,通风,景观角度等乡村因素的分析,重新建立起来新的秩序,这种秩序是村落布局最直白的表达。
△北侧入口
△南侧景观面
02 独白—漂浮的房子
让建筑变得更轻盈,一层的结构柱做了内退处理。通过反梁的方式增加了一圈挑板,让一层的结构在立面看起来更加轻薄。一层用了大面积落地玻璃,内退结构让建筑立面的连续性更趋于统一。形成漂浮的视觉感,弱化建筑尺度与人的对比。在功能的划分上,通过一个类似裙摆的层板将建筑划分成上下两个部分。一层为开放的活动区域,二层为私密客房区域。
△项目分析图
在建筑的一层布置了主要的活动空间。一层的部分结构柱放在室外,落在泳池内部。创造出室外空间与室内空间连续性,落地玻璃消解室内外的边界。将草坪,休息平台,泳池下沉活动区,餐厅区等空间融为一体。一层的结构柱做了圆形的处理,希望首层开放式的空间能营造出村落树林下,屋檐底,廊亭内的自由场景感。
△南侧底层架空
△南立面夜景
03 建筑融于自然
回归村落的行走体验,儿时在村落里总是,穿堂躲巷,翻墙爬院,上房接瓦是乡村的乐趣。我们希望尽可能还原村落的肌理布局的同时创造探寻的更多可能性。在建筑流线上做了多重方式的联动。旋转楼梯是主要的流线,在二层设置了一个楼梯过渡空间,室内外的空间在行走的感知过程中不断切换。
△二层露台
△二层露台
我们希望用设计把建筑、自然、生活糅合在一起,让身处其中的人能充分的感受舒适和自由。给千篇一律的生活加入一些趣味性。
△半户外楼梯间
△楼梯间光影
△二层露台
04 柱的空间
柱子是一层主旋律,取消了隔墙的来划分空间的方式。散落的柱子在布置上把一层换分成三个功能区。咖啡接待,儿童活动和餐饮区。每个区域通过柱子的围合,环绕布置的柱点,暗示此处划分了一个相对独立的区域。
△一层餐厅区
05 漫游式体验
在处理一层时,我们尽可能地把室内与室外融合。一层餐厅用玻璃作为墙体,自然连接室内与室外的景象。通透的空间感源于光线的引入。随时可以看到前庭内院、自然湖景的风光。圆形的吧台把动线引导成非直线方式,弧形的玻璃墙面也让动线不断改变。
△旋转楼梯
△户外泳池
乌托邦
木心先生曾说“生活的最佳状态,是冷冷清清的风风火火。”我们的外表或许清净,但内心要繁华盛开。不同的材质、观感和触感积淀出迥然不同的生活气息,随性的田园生活安抚内心的烦躁,以闲适自在的状态迎接清晨黎明。
△项目鸟瞰
项目图纸
△总平面图
△一层平面图
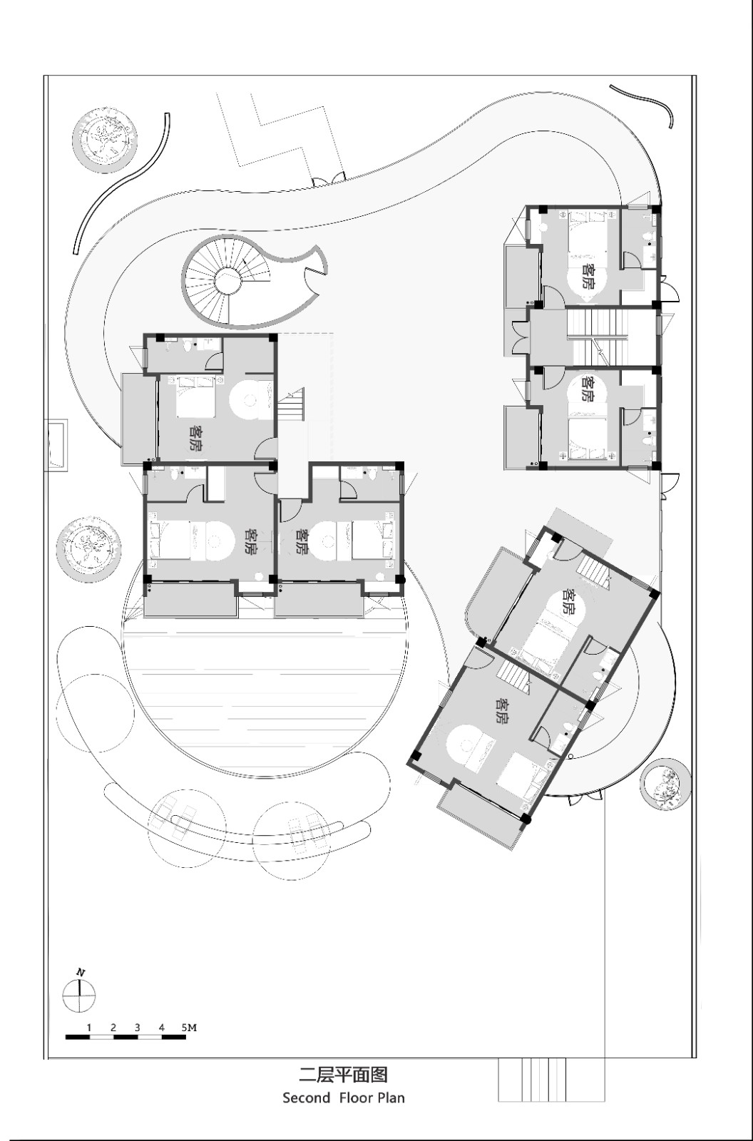
△二层平面图
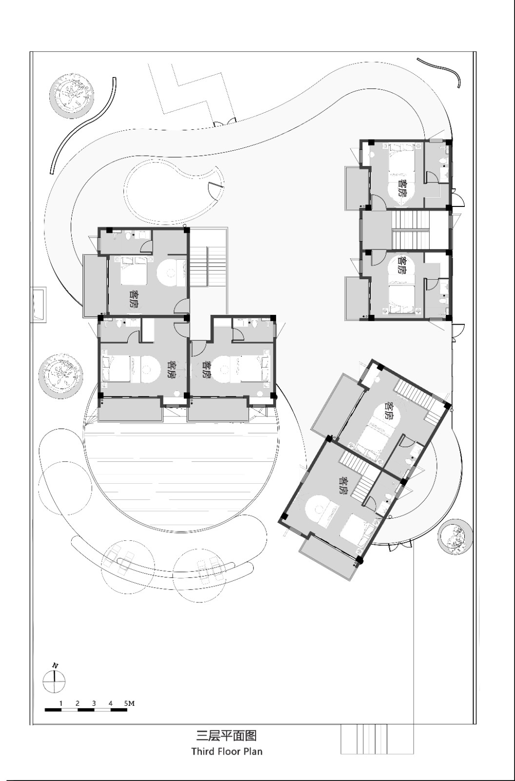
△三层平面图
△立面图
△立面图
△立面图
项目信息
建筑设计: 巢羽建筑设计事务所
主持设计师:王星&梁飞
设计团队:吴陶锴,易杭飞,周洁,林青霞
室内设计:巢羽建筑设计事务所
设计团队:吴陶锴,陈锦澳,汴陶川,肖文慧,华艺莹
结构设计:汤银川
软装设计:陈蔚
业主:上海避风塘美食有限公司 陈蔚
地点:江苏省苏州市昆山尚明甸村
面积:1000平方米
建成时间:2022年2月
材料:外墙涂料、穿孔铝板、微水泥、水磨石等
摄影:此间建筑摄影 赵奕龙

BIM建筑网


































