诺贝尔科技文化中心,位于余杭开阔的杭嘉湖平原和京杭大运河的南端,经历五年的设计与监造,将于 2022 年对公众开放,并为工匠、企业家、设计师、材料研究人员和游客们提供交流场所,内容包含教育、展示、会议、体验、研发…等多重功能。作为全球首个最大陶瓷岩板体验空间,旨在引领产业革新,以工业技术与建筑设计的碰撞下,赋予了陶瓷制造业发展更宏大的时代意义。
阔合 CROX 林琮然表示“在‘中华文明曙光’——良渚文化发祥地形塑建筑,希望再造‘琮’的精神,将‘礼天地四方’的文物,转换为承载自然的空间。建筑体态由天圆地方展开,并藉由超山,半山与临平山所环绕的山形,构成了流动的曲形概念,将建筑以方为基底,泥塑般的造型手法,提取而成了一种写意的坡屋顶,曲面屋面在一片厂区内宛若凸起的山谷,平衡了工业厂房与前方高架路桥的紧张关系,让行经于此的人们感觉的远方山体延伸于此,让厂区有了更自然的氛围,在屋面凸起的中间是朝向天空的留白,中空的圆不仅是将光线与空气引入室内,更与下方的环形多功能报告厅呼应,让人文交流的场域与自然感悟的中庭,产生天人合一的精神,也构成建筑内外一体的布局形势。
文化中心如同地表垄起的山脉,前方引导人们行经蜿蜒小路,通过镜面水池,由通过抬起的建筑入口进入大厅,牆面在虚实交错的光影下,让空间形成一种优美有序的气息,核心区的阳光透过两片偌大弧形牆的缝隙洒下,层层迭迭的铺展开一种仪式感。由此进入各个展厅,也可顺着弧形楼梯通往上层,二楼的布局围绕静谧的中庭展开,人们可自然过渡到各个功能空间,其所在,有精心,有惊喜,让人回味无穷。灵动的动线设计不止于此,环绕式的观览体验,内外情景的交融,自然气息的深入,不正是“初极狭,才通人,复行数十步,豁然开朗。土地平旷,屋舍俨然,有良田美池桑竹之属”《桃花源记》中的引人入胜的叙事性的呼应。
建筑师以可持续的方式建造,并尽可能地减少不可再生资源的使用,建筑内外皆选用首次采用的诺贝尔新型可回收岩板,外立面岩板纹样采用白色水波纹设计,相较于传统的石材,更易清洁和耐候,技术上打破干挂单块面积 1.5 平方的外墙限制,为建筑行业建立新材料的使用标准,一片片大面积的岩板和通透的幕墙构成垂直方向的开窗,并通过计算太阳辐射情形决定切片的角度, 确保了整栋建筑享有良好的自然采光,并同时减少建筑的太阳能得热与能源消耗。室内岩板运用超过 12500 平方米,小到桌面、台面、地面和柜门,大到大堂、吧台、会议室、贵宾室等整体空间的处理淋漓尽致的运用于各个功能场景中。
陶瓷的发明是人类进步的一个重要里程碑,器物是生活的载体也是艺术的媒介,从“工匠精神”到科技化生产,器物与建筑两者共同记录了了人们的需求,也承载了地域性精神和其使用属性。然而不管是小器物还是大建筑,如果仅仅是从功能上去塑造,精神上就会随著时间产生隔阂,若是把“自然”作为连结的中心,体会由文物所赋予的用意,进而转为寓意的建筑,那诺贝尔陶瓷岩板科技文化中心不仅仅具有博物馆属性的文化象征意义,更是一种未来“纪念碑”式建筑的延伸。
项目图纸
△总平面图
△负一层平面图
△一层平面图
△二层平面图
△屋顶平面图
△立面图
△立面图
△立面图
△立面图
△剖面图
△剖面图
△剖面图
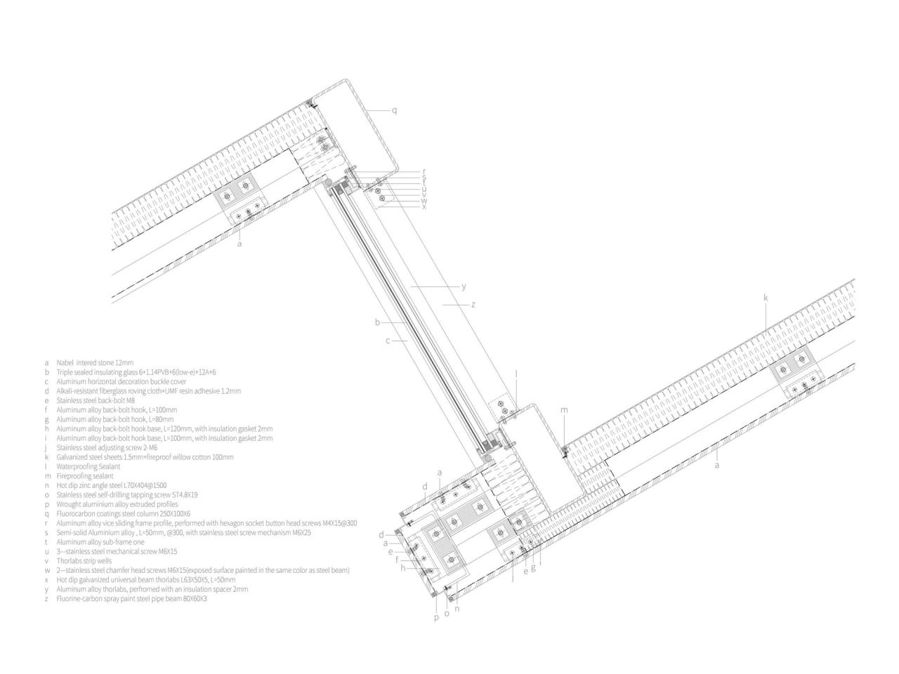
△细部示意图
△细部示意图
△结构大样图
△结构示意图
△模型图
项目信息
建筑设计:CROX
面积 :7068m²
项目年份 :2022
摄影师 :亮点影像
主创设计师 :林琮然, 杜柏均
设计团队 :林琮然,杜柏均,李本涛,孙立东,Darcy, 刘慧,张秀,周天野,顾博闻,周晨媛,黄培耿,Ale ,朱飔晗, 张鼎
室内设计 :柏仁设计, 杜柏均,王稚云,王徐菲,吕青青 ,赵泽超,孙浩军,林新晨
委托方 :杭州诺贝尔陶瓷有限公司
幕墙设计 :浙江天尚建筑设计有限公司
渲染 :Beijing Fancy Digital Technology Co. Ltd., Shanghai PRID Decoration Engineering Design Co. Ltd
地点:杭州,中国

BIM建筑网


















































