GOODWE(固德威)公司是一家以电力电子技术为核心布局光电建材(BIPV)的新能源高新技术企业,其总部研发大楼由中衡设计集团原创设计。设计中建筑师们结合固德威自身光伏产品,权衡建筑形式、空间使用、能源碳排和产业经济的最优组合,尝试补充和突破既有低碳建筑设计的领域范畴和内容深度。
引言
在Tadao Ando的建筑美学中,“光”似乎始终掌控着建筑的最高境界。“The archetype of space is the volume and direction of light.”——毋庸置疑Tadao Ando赋予了“光”在任何时代语境中最崇高的地位。
西方建筑思想中,建筑构造的历史和发展被理解为在石块上开凿洞口,使光和新鲜空气涌入而淹没黑暗的过程。在这一斗争中,人类逐渐认知到光除了照亮空间以外的意义。
现代钢、玻璃、混凝土结构技术的进步,使得光在建筑表达中具有更高的自由度,也呈现出更加细致抽象的特点。不仅是建筑设计,在当代艺术、产品设计、技术研发等领域,人类也从未停下对“光”的无尽遐想和探索追求。我们已然证明了,光是可以感知,可以塑造和再加工的。
那么今天的我们是如何与光偕行的呢?
顺应时势的回答:BIPV——建筑光伏一体化
2021年10月,中国印发《2030年前碳达峰行动方案》,承诺在2030年前,二氧化碳排放不再增长。当这一目标放大到建筑领域,建筑行业如何有效节能降碳、加快低碳发展步伐、利用数字技术对碳排放实现管控成为亟待解决的问题。在低碳建筑技术的产品开发与应用方面,建筑光伏一体化(BIPV)技术已趋向成熟,是实现从以化石能源为基础的碳基电力系统转为以太阳光能为基础的零碳电力的关键技术。
△固德威智慧能源研发大楼鸟瞰
固德威智慧能源研发大楼
我们将固德威对于绿色能源的探索融入到建筑设计的整个过程,用建筑回应阳光、利用阳光的设计法则体现在研发大楼的方方面面。
△主入口人视图
研发大楼最大程度地利用了基地范围,以五层裙房及20层塔楼的形式满足研发、办公、接待等各种要求。建筑塔楼布置于基地南侧,避免了对北侧住宅区的日照影响;裙房沿塔园路一字展开,三四层最大10m的悬挑,营造出富有冲击力的入口形象。悬挑部分拟采用碲化镉光电幕墙,对直射阳光处理的同时,利用光能发电。
△主门厅效果图
△碲化镉光电幕墙
裙房体量中部挖凿出两个玻璃采光中庭空间,固德威将最新研发的单晶硅光伏产品运用于此。这种晶体材料在历经长时间高温、高压、混合和沉积之后,成为了一种新的建筑语言,通过间隔布置将光线柔和地引入室内,使得大进深裙房的每个角度都能捕捉到自然的天光。
△采光中庭引入自然天光
建筑西侧裙房遮阳百叶运用了固德威自身产品光伏瓦,形成可调角度的遮阳与发光组件一体的设计。一部分平滑的幕墙表皮折射出万象的天空,而闪烁的光伏瓦百叶充分与日光互动,营造出可变的光影肌理。
△裙房西侧光伏瓦遮阳百叶
裙楼顶部的非活动区域也被利用起来布置光伏组件,这里也将成为固德威光伏产品的户外展示区。室外停车场将配备模块化灵活组合的光伏充电一体化车棚,不仅能为车辆遮阳避雨,还可为电动车、新能源汽车、厂区、企业供给电能。
△光伏充电一体化车棚
塔楼折形幕墙折角不透光部分同样采用了单晶硅光伏组件,通过对光伏组件的外光处理,拟合出金属铝板的材质效果。将光伏组件建材化——这也是固德威光电事业部的愿景:“让每一栋建筑发电”。
△塔楼折形幕墙单晶硅光伏组件
在国家“碳达峰和碳中和”政策的指引下,我们真正做到将BIPV产品高度融入到建筑中,固德威智慧能源研发大楼全年累计光伏发电量将达到约49万KW•h,为大体量建筑物群体实现近零碳排放打下基础。建筑对于光的探索、运用,自其诞生伊始就从未停下过脚步,BIPV这艘时代巨轮将带领我们走向建筑对阳光探索的新征程。
△1F 东南门厅效果图
△办公层走廊效果图
△3F 阶梯报告厅效果图
项目图纸
△总平面图
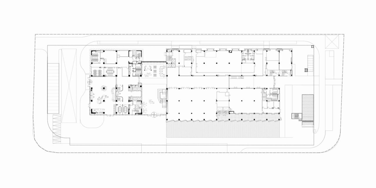
△一层平面图
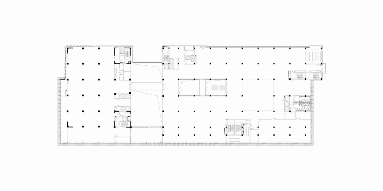
△二层平面图
△三层平面图
△塔楼平面图
△剖面图
项目信息
项目名称:固德威技术股份有限公司智慧能源研发大楼
项目地点:苏州高新区塔园路与横山路交叉口
设计时间:2021年3月
用地面积:16439.20㎡
建筑面积:72156.56㎡
建筑高度:89.9m
建设单位:固德威技术股份有限公司
设计单位:中衡设计集团股份有限公司
主创设计师:刘恬 唐波
项目总监:丁炯
项目负责人:刘恬
建筑:赵海峰 陈曦 赵东辉 张莉 许多
结构:路江龙 沈晓明 杨伟兴 李刚 范斌 朱万俊
暖通:丁炯 冯卫 尚道东 薛克笛 赵嘉伟 顾名扬 周麟晨
电气:韩愚拙 沈冰之 李依阳 刘文丰 黄炎 吴剑 韩向阳
给排水:杨俊晨 李自超 徐浩然 凌艳晨
绿建:郭丹丹 武鼎鑫
幕墙:沈筠 吴明华 张北海 张爱洁 姚京天 姚俊凯
内装:姬守年 许逸秋 陈芳煜 葛韶华 姜洋 力心 周小丰 朱涛
景观:周耀星 石天麒
泛光:胡洪浪 王璐璐 郭潇敏 尹慧敏 张震宇

BIM建筑网




















