双重文化精神:背弃典型“大盒子”的会展中心。在飞往基督城的飞机上,在宽阔的拉卡亚河上空,Woods Bagot事务所的建筑师布鲁诺·门德斯(Bruno Mendes)突然有了一个想法。那是 2014 年,门德斯正在前往一个建筑前期设计的研讨会。他抓住这次机会拍摄到了独特的辫状河床,并由此产生了一个预见性的关键设计想法。
Te Pae 作为城市建筑的一部分,展现了该地区的多元文化遗产,在城市的持续的发展建设中占有一席之地。它的设计包含了工艺和文化内涵,以及对 Ngāi Tahu / Ngāi Tuahuriri 地方的敏感性。Puamiria Parata-Goodall 是这些人的后裔,在设计过程中为门德斯和他的团队提供文化价值和建筑叙事方面的建议。“Ngāi Tahu 人的祖先的骨头在这片土地上。在城市重建中,新的Ōtautahi(基督城)既反映了 Ngāi Tahu 的历史,也反映了欧洲的历史。毛利语言、艺术和故事得到了前所未有的认可和传颂,”Parata-Goodall 说。
Parata-Goodall 说,基督城正在成为一个充满对话的城市,这在灾难发生之前是不存在的。站在 Te Pae 的前面,Parata-Goodall 问一位路人:“你能看到辫子河吗?你想听听奥拉基的传统和南岛的形成,听听我们的水道和湖泊形成的故事吗?”她说,现在展现在你眼前的就是这些故事。"我的祖先在我们的景观中又有了自己的声音。”为了证明建筑师的本地/全球设计理念和包容性,壮观的 Te Pae 修改了会展中心的任务书,而且是多次修改。 与传统的会展中心不同——它们往往是一个普通的“大盒子”——该建筑的规模较小,被一面流动的外墙包裹着。近 43,000 块外墙砖——共有五种变化,被分别编号和放置——体现了形成坎特伯雷平原的广阔河流景观,这些景观在那天使门德斯深受震撼。
建筑物的轮廓反映了新西兰标志性的南阿尔卑斯山,这是设计中对 Ngāi Tahu 起源故事的另一个回应。建筑师选择将该设施融入城市中心,并将其面向河流——这是打造基督城新的城市面貌的天才之举。主入口通向 Oxford Terrace,使游客可以轻松进入 Te Papa Ōtākaro/Avon River Precinct 的新滨水区。在尽量减少建筑体量的影响的同时,Te Pae 的设计使其能够同时容纳 2000 名代表。
所有“大盒子”的功能都在场地的中心。将这些功能要求脱离建筑外沿布置能使其被流动的外墙和前厅空间所包裹,这些空间可以看到 Ōtākaro Avon 河和大教堂广场的美妙景色。许多会展中心看起来都像小型的机场——长长的走廊,没有自然光,挤满了标志、屏幕和人。Te Pae 则不同,人们的大部分活动都发生在看起来几乎是有机的区域。小路充满了自然光,人们可以向四面八方望去。
会展中心的设计也常常不回应自身所处的环境。而在这里,建筑师们在设计中对场地条件进行了特别细致的考虑。门德斯说,将 Te Pae 与城市的各种细微差别结合起来是非常重要的,对当地的活力和参加活动的代表来说,Te Pae 将是他们对于基督城的第一印象。“我们策划了内部的框景:从功能室看向大教堂广场;建筑朝维多利亚广场开口;体量向河边倾斜——这些都是非常具体的举措,使建筑与周围的事物紧密联系。”
“我认为这就是这个项目的特殊之处,”门德斯说。“这是独一无二的基督城,人们在这里与这座城市紧密相连。”Warren and Mahoney公司的负责人彼得·马歇尔(Peter Marshall)说,会展中心是该市急需的资源,它反映了该地的特征。“我们感到非常自豪的是,我们与 Ōtākaro、Matapopore Trust 和Woods Bagot合作,为基督城人民建造了这个世界级的设施。”马歇尔说:“这里独特的人和场所互动产生的故事,会给游客一种温暖和热情的体验。”
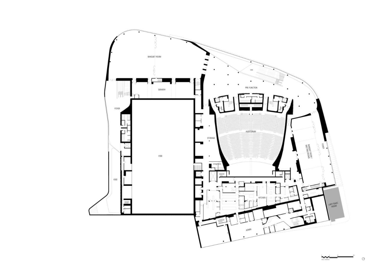
项目图纸
△一层平面图
△二层平面图
△立面图
△立面图
△剖面图
项目信息
建筑设计:Warren & Mahoney,伍兹贝格
面积 :28000m²
项目年份 :2021
摄影师 :Dennis Radermacher
厂家 : Asona,Fibre 'C',HUFCOR,Poltrona Frau,Rimex,Sculptform
主持建筑师 :Bruno Mendes
伍兹贝格项目团队 :Bruno Mendes, Eric Buhrs, Jordon Saunders, Andy Gentry, James Pearse, Andrew Pietersz, Brian Renehan, Harry Charalambous, Kenneth Chou, Nik Karalis, Michael Andrew, Natalie Aganoff, Richard Galloway, Vien Nguyen, Virgil Lay, Yeung Chen, John Norman, Ruth Hutchison, Bloom Hou, Joyce Yang
地点 :新西兰,Christchurch 8011, New Zealand

BIM建筑网



















