泰瑞咖啡馆位于韩国大田市鸡龙山(Gyeryongsan)脚下,其毗邻山川交汇处,紧挨古道入口。这一全新的建筑则从村落的肌理中生长,径直伸展至向山巅的景观。
山脚下,两栋建筑隔着中央庭院相视而对。同时,墙壁仿佛从天空中落下,“流”入院中,如同山谷般,模糊了墙与地的界限,并创造了一个渐入森林的动态建筑。
“流水之墙”直接串连了庭院与室内空间,并通过大阶梯空间联通了室内外景观。同时,后院中向上翘起的地面一角则形成了静态的动态空间感。由此,咖啡馆的内与外都自然而然地构筑了人们去往山林途中休憩、享受的场所。
泰瑞咖啡馆主要由混凝土砖构成,以此建造、强调了流动空间的连续性。此外,其他由粗碎的砖块所组成的立面则在时间的光影下不断变幻,创造了“无界”建筑的边界感。
项目图纸
△模型图
△模型图
△模型图
△基地示意图
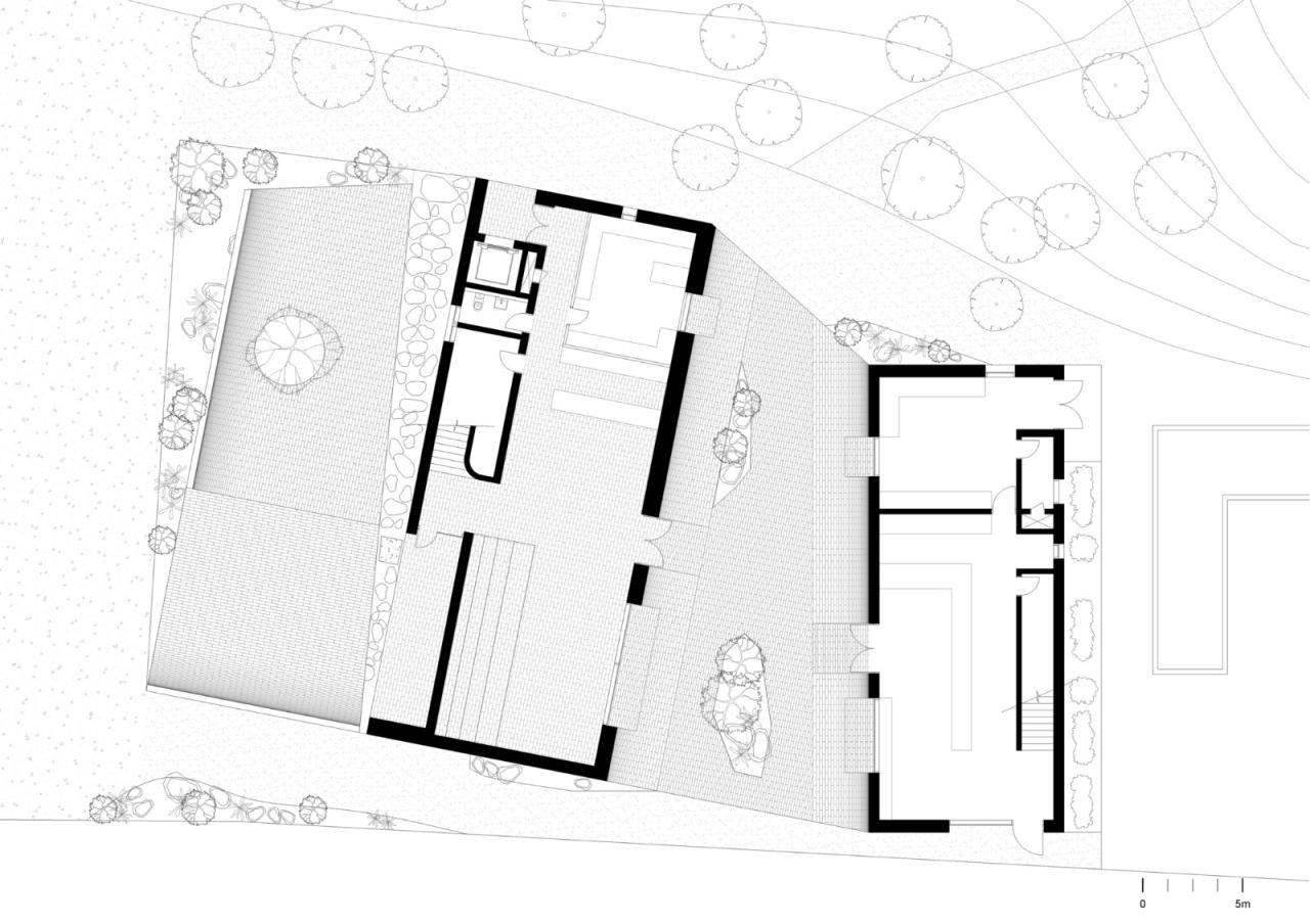
△总平面图
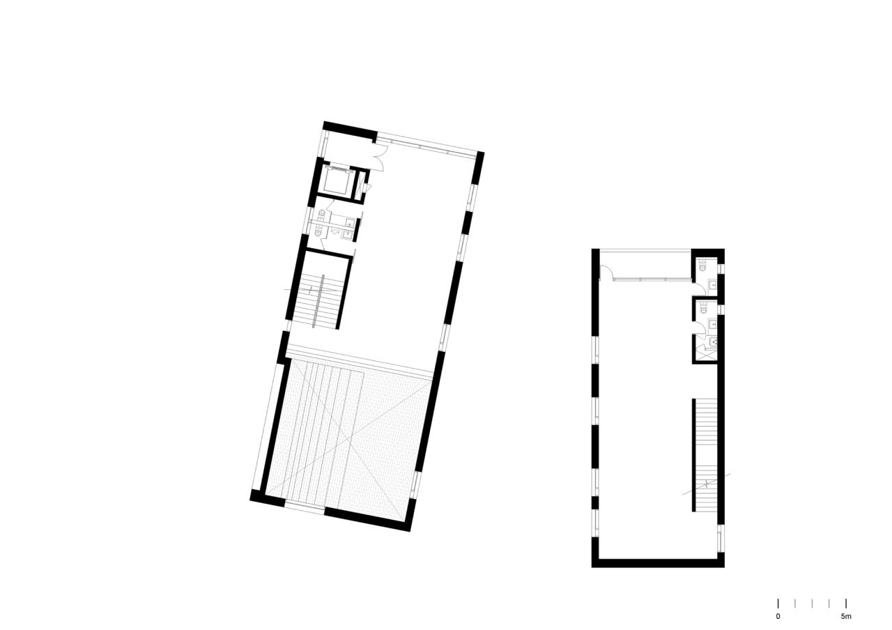
△一层平面图
△二层平面图
△三层平面图
△立面图
△立面图
△剖面图
△剖面图
△剖透视
△剖面细部图
△剖面细部图
项目信息
建筑设计:NAMELESS Architecture
面积 :810m²
项目年份 :2022
摄影师:Kyung Roh
主创建筑师 :Unchung Na, Sorae Yoo
项目设计师 :Taekgyu Kang, Changsoo Lee
微信公众号:xuebim
关注建筑行业BIM发展、研究建筑新技术,汇集建筑前沿信息!
← 微信扫一扫,关注我们+

BIM建筑网







































