韩国国立航空博物馆位于即将成为航空城的金浦机场内,是国土交通部为提升韩国航空业地位而推动的一个多元文化空间。为了创建一个新的博物馆,并使其成为代表航空业的教育、展览和体验的殿堂,在设计中体现了表达科学、自由、美丽和冒险的三种理念。
首先,以飞机涡轮机为主题的“Air Turbine”是机械美学和科学技术相结合的典范,也是航空业的一个里程碑。其次,“Air Show”是一个航空展厅,它将韩国航空的历史像全景一样展开,以实现一个新式的展览空间,给人一种自由感和动态的飞行感。最后,“Air Walk”则是一个穿过处于不同高度的飞机的三维展览廊道,在建筑结构的闪耀灯光下能在此获得更多动态体验。
该建筑场地被规划为一个多面的环形布局,包括南部环形公路、支持性建筑群和主要入口道路(Haneul-gil)的各个方向都有“正面”,并位于机场和支持性建筑群之间的中心位置。我们为固定展览场地创建了一处三层楼的空房,使其成为一个综合性的空间,并能通过透明的外立面进行户外展览。
该建筑群包含两个不同的建筑:一个是专门作为展览空间的圆形展厅,这里的飞机在空中自由地飞翔;另一个是为仓储、工作和设施等功能进行了优化的长方形管理大楼,其与周围环境相得益彰。环保的翼形航空涡轮内部由螺旋形的展览空间组成,以航空廊道为起点,引导参观者在挂于顶棚下的飞机和动态的空间中自然穿梭。
项目信息
△总平面图
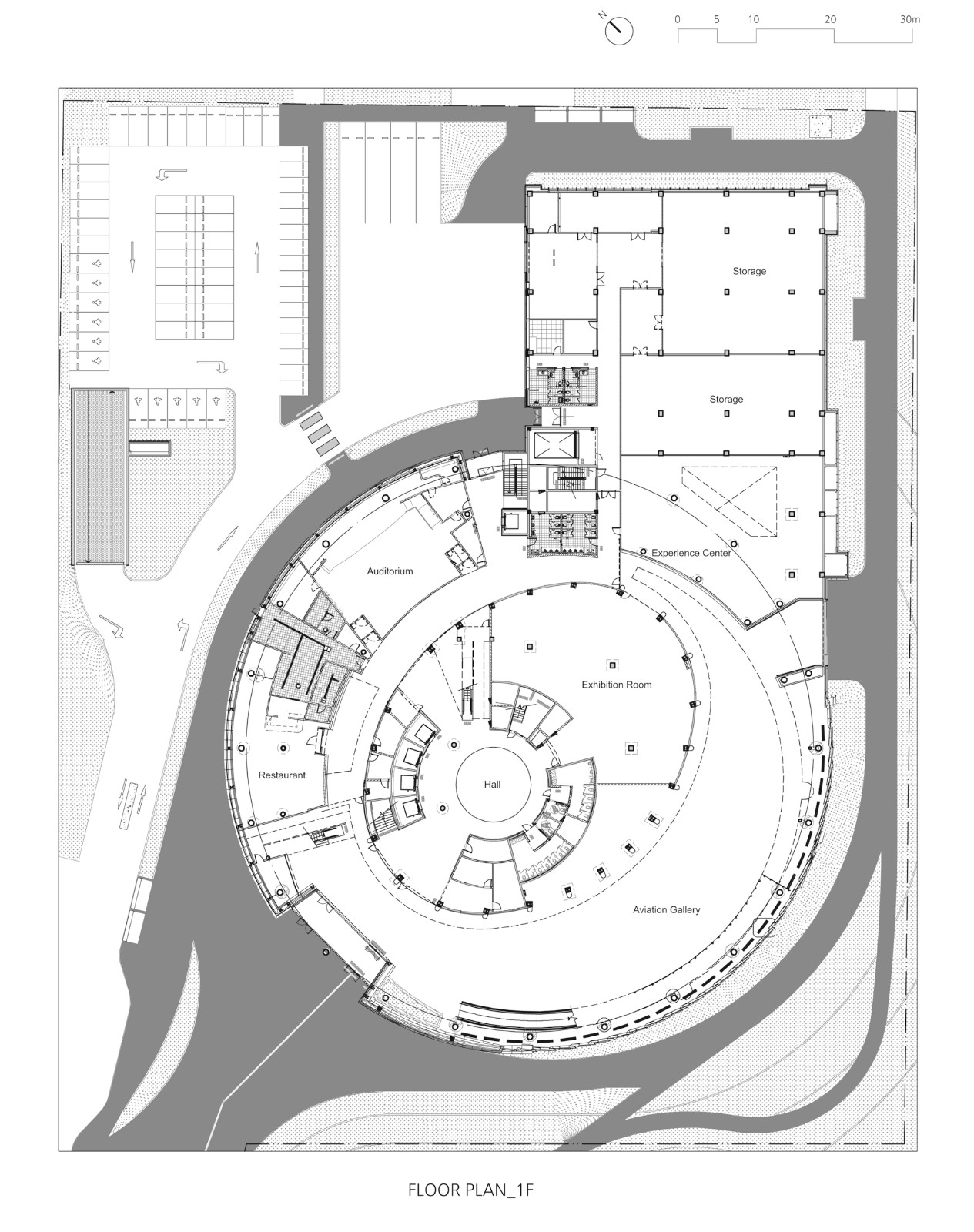
△一层平面图
△二层平面图
△三层平面图
△四层平面图
△立面图
△立面图
△剖面图
△剖面图
项目信息
建筑设计:Haeahn Architecture
面积:1859318593平方米
项目年份:2020
摄影师:Namsun Lee
厂家 : ABM PV,ALPOLIC,NBK Terractotta
主创建筑师:Sehan Yoon
设计团队:Hyunhwa Jung, Hyeonseok Oh, Seongho An, Hyeongwook Doh, Junyong Kim, Minkang Shin, Youngjun Shin, Jaewon Chang,Yohan Bahc, Jinyoung Bae, Haengsook Lee (Haeahn)
合作方:Jongyup Lim(Inha University)
委托方:Ministry of Land, Infrastructure and Transport
建筑设计:HAEAHN Architecture Inc.
结构工程师:Changminwoo Structural Consultants
室内设计:Design Group O Jang
景观设计:Design Innovation Landscape

BIM建筑网




























