台南作为中国台湾一座古老的城市,一直以来受到多种文化的联合影响。当地至今还保留着17世纪与欧洲远洋贸易的城市遗址,以及20世纪日治时期的相关建筑。台南还以众多的寺庙建筑而名声远扬,其中最有名的当属一座17世纪的孔庙。图书馆以当地的深厚历史为灵感,并充分考虑了台南的热带雨林气候,旨在扮演城市文化遗产中心的角色。该图书馆内将容纳跟现代艺术、音乐、电影等多种艺术媒体相关的纸质媒介,同时还包括了超过一百万册的书籍收藏。
图书馆设计的一大亮点当属其台阶状的外表。图书馆的整个悬挑部分被细长且有节奏的圆柱完美地撑起,给人以竹林般的深邃感。而建筑醒目的皇冠造型则被刻有花朵图案的垂直铝板条所包裹,与老城区的窗户格栅图案遥相呼应。这些垂直铝板条还可以很好地过滤室外的阳光和热气,并在夜间呈现出一个独特的立面图案。
台南图书馆完美地将内外空间统一在了一起。建筑的巨大悬挑也在无形中营造了一个遮阳的室外活动空间,与一旁的公共广场共同提供了一个讲座、音乐会和展览等活动所需的环境。图书馆悬挑部分的立面通过带有浮雕的香槟色铝面板塑造了一种独特的图案语言。整个图书馆的空间设计都旨在通过灵活的流线安排使其更能适应各种活动场景的需求。
图书馆内部两层挑高的中庭空间配有Paul Cocksedge的艺术作品,象征了思维的自由性和阅读的愉悦感。整个图书馆空间都充斥了艺术的气息。这些艺术品不光只是陈列展示,其中有很大一部分还可以跟市民互动娱乐。空间内红色雕塑感的楼梯更是给内部环境注入了不少活力和生机,使用者不论身处何地,都可以直观地察觉到楼梯的所在位置。
建筑师通过木制材料的使用,保证了地面层空间的温暖氛围,并同时将其打造为一个开放多元的使用空间。图书馆的入口处是前台和报刊杂志阅览室。一旁配备的触碰式查询设备使得来访者可以轻松地游览图书馆的藏书和所在位置。儿童阅览室的设计则更多地使用了图案语言。
图书馆的地面层还设有多间24小时开放的学习室,以给市民提供便捷理想的学习空间。图书馆的上层设有媒体阅览室和收藏室。市民可以随意地在媒体阅览室观看播放的影片。而在这两个功能空间外,图书馆的上部还设有一个遗产展览厅,所陈列展出的物件包括了纪念性的台南文物、日治时期的档案资料,以及台湾本土作家撰写出版的稿件。
该图书馆还包括四个室外活动区域,分别是屋顶花园、咖啡厅和剩余的多功能空间。图书馆的最顶层是一个剧院和会议厅,以及行政人员的办公场所。市民可以在屋顶花园远眺城市的壮丽风光,也可以在图书馆书店购买心仪的书籍。
项目图纸
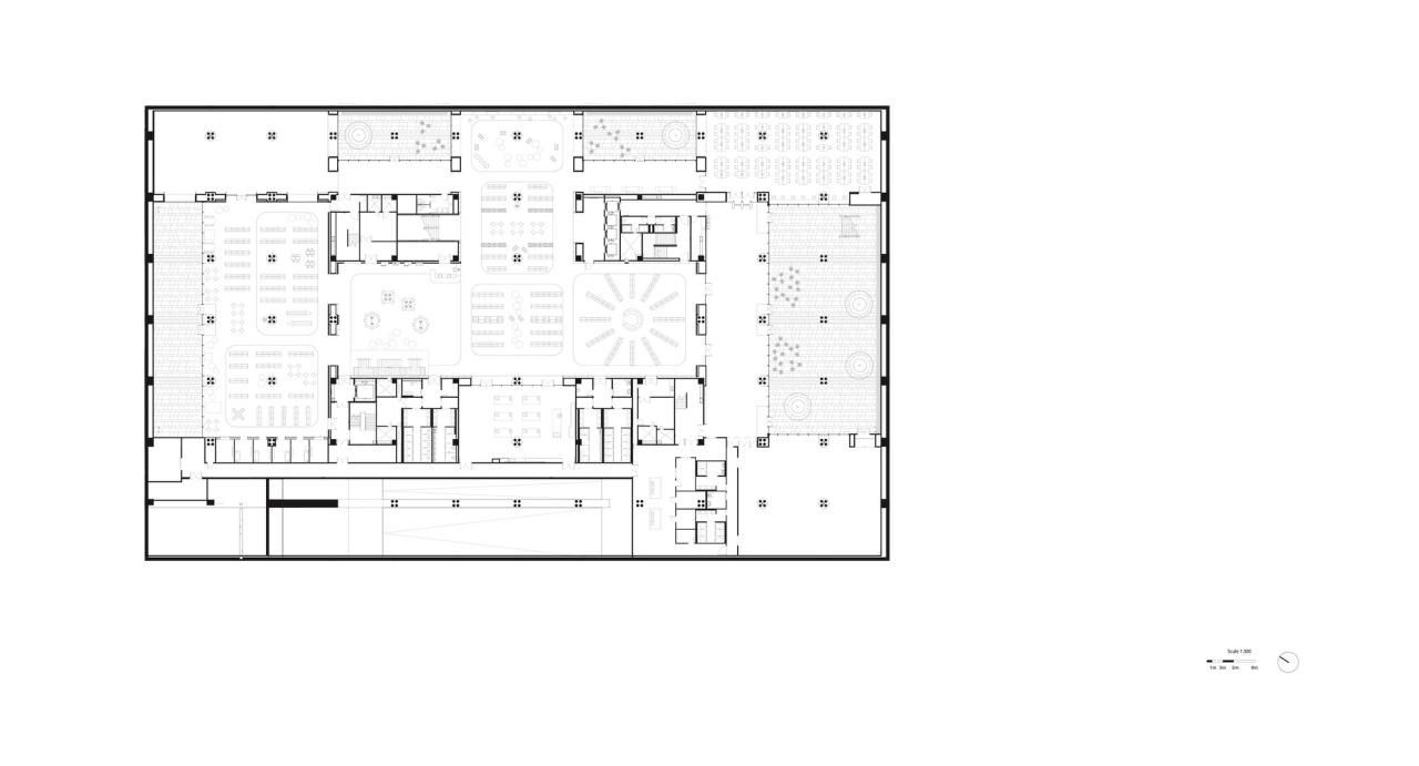
△一层平面图
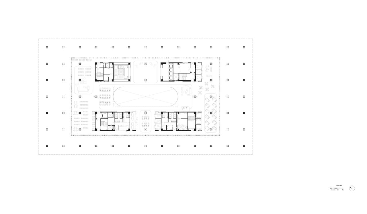
△负一层平面图
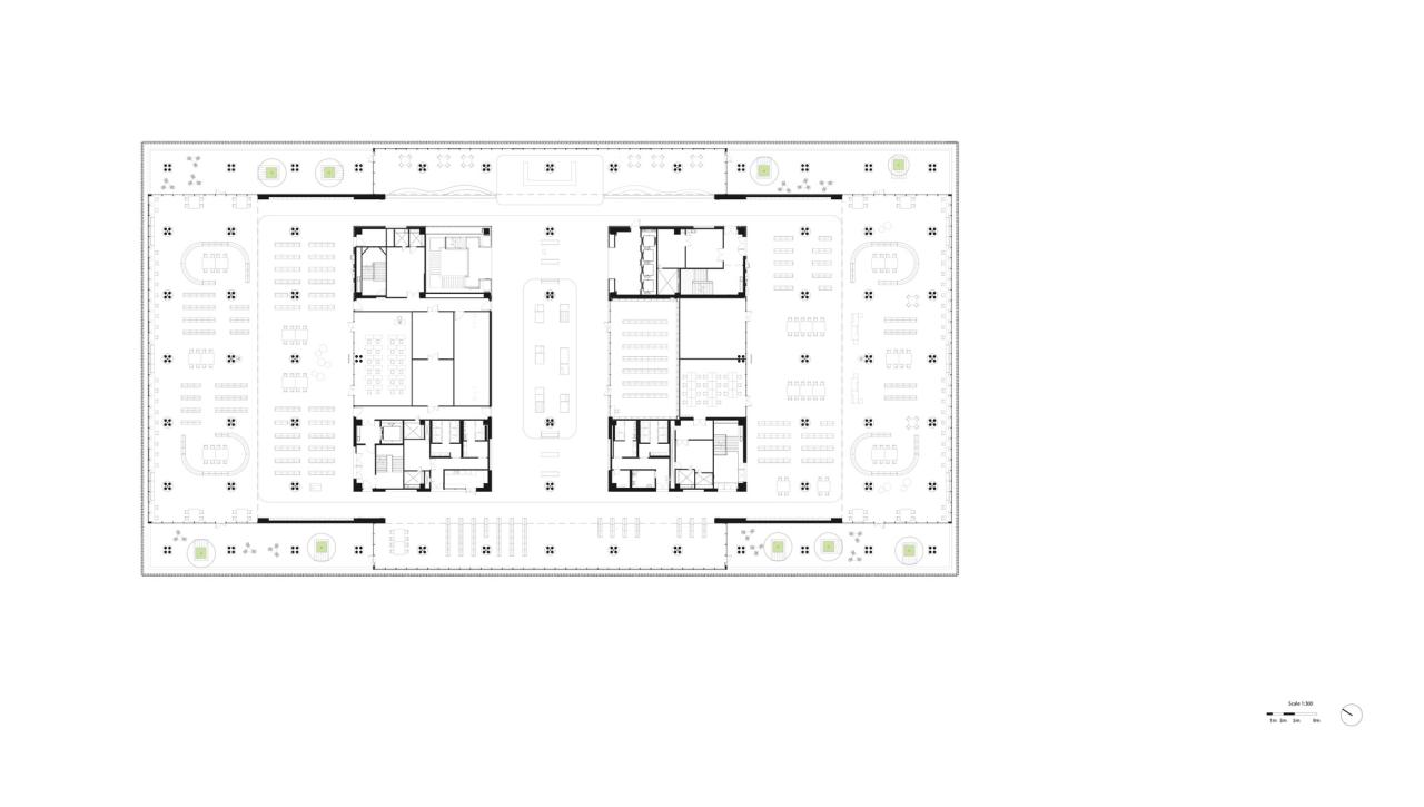
△二层平面图
△三层平面图
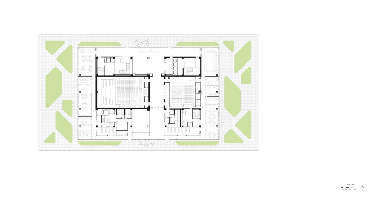
△四层平面图
△六层平面图
△立面图
△立面图
△剖面图
△剖面图
项目信息
建筑设计:张玛龙陈玉霖联合建筑师,Mecanoo
面积 :37000m²
项目年份 :2021
摄影师 :李易暹,Yu-Chen Chao
设计总监 :Francine Houben (Mecanoo), Malone Chang, Yu-lin Chen (MAYU Architects)
项目团队 :Rodrigo Louro, Friso van der Steen, Rodrigo Bandini, Johan Hanegraaf, Rachel Lin, Yuli Huang, Yuanyuan Chen, Natalia Leszcynska, George Orfanopoulos, Antonio Sanna, Wanjen Lin, Yunying Chiu, Tsailing Shih, Eliano Felicio, Nienke Andersson (Mecanoo), (SD)Ting-yi Lo, Yun-shan Huang, Che-sheng Wang; (DD/CD)Ting-yi Lo, Che-sheng Wang, Chia-ru Lin, Beatrice Cordella, Meng-yue Ruan, Qi-ping Yang, Li-chi Yeh, Ya-zhi Guo, Che-kang liu; (CA)Yun-shan Huang, Chia-ru Lin, Ting-yi Lo, Ya-yun Wang, Wei-chieh Pan, Yun Chen, Ting-yi Li, Cheng-wei Li, Chih-hung Wang, Yung-hsien Fang, Jui-pao Chan, Tien-hsi Hsu, Ya-tieh Yu, Guan-wun Chen, Yu-lun Liang (MAYU Architects)
安装顾问 :Frontier Tech Institute of Engineering Design & Consultant
标识设计 :Path & Landforms
地点 :中国,台湾,仁德区

BIM建筑网









































