项目背景
项目基地位于南京市溧水区宝塔路东侧,一干河(秦淮源之一)北岸,极目远眺周边自然环境优美。未来整个周边片区将规划为南京特色文旅中心,本项目作为整个规划展示区的首开项目,既承担着展示大区规划的目的也要满足未来对于社区功能转变的要求。
©区位图
设计初衷
项目伊始,面对空旷的场地,我们逐渐陷入了思考,对于溧水人民来说,他们需要什么,是永寿寺塔下金陵灯会,还是合院中阳光沐浴的四世同堂;是对于一干河滋养的深厚情愫,亦或者城市街巷的蜿蜒曲折。在新的城市建设中,我们希望以空间演绎的形式将溧水人民对于生活场所记忆再现的同时展现我们对于溧水未来城市空间的期待。
©城市印象
概念诠释
·静物即风景
寻常的物体经过创作者精心的构思摆布呈现出特定的空间结构,聚焦静物,这种构图的美感展现出一种微缩的景致。
© 景物风景©️VilhelmLundstrom
·放大的风景
跳脱旁观者的全局视角,以一种局部的思维介入静物风景之中,放大的静物成为了环境中的景物,而静物之间所形成的空间则成为了人游历风景的巷道。
©巨物化的静物提供了可参与的空间
在建筑设计的过程中,设计引入了静物几何的设计概念,几何是描述城市空间形态的最干练的结构语言,以局部的角度进入城市,再以全局的角度从中跳脱,以抽象概念的方式表达城市的真正形态。设计将永寿寺塔、合院、一干水渠和江南街巷抽象为放大的静物,通过空间上的组合形成一种语义叠加的风景,熟悉的事物以一种不熟悉的形体重现,像而不像,引发着人们对于记忆的联想。
©原型提炼
©静物化的建筑
·静物与空间
随着静物几何体的介入,空间随之生成,如果将空间以均质网格来定义,那么巨大的几何静物则像是一个个楔子插入到空间之中,静物的形状压迫影响了空间网格,产生了网格密度上的变化,空间因此流动了起来,静物体的边界在平面网格里明确定义空间的方向,在三维界面中则定义空间的膨胀与缩减。
©⼏何体介⼊均质空间后对于空间流动性的影响
·空间的游历
空间的流动造成了建筑内外均可被“通过”与“游历”,设计中通过对动线的拉长与起伏,将三维空间中的静物串联起来,漫步建筑,身体在建筑空间中进行运动,在这个过程中,人与建筑产生了空间场所上的互动。
©拉⻓的路径将独⽴的⼏何空间串联交织起来
在空间游历的过程中,相同建筑元素以不同方式及视角出现并叠加,空间产生了现象上的透明性,犹如行走在一副立体主义绘画之中。交错的线条与叠加的几何元素的解构与重组打破了空间的边界,造就了充满惊喜的空间与光影,区别于传统建筑的空间形式,创展中心以一种抽象几何叠加的方式展现了当代建筑的抽象艺术审美。
效果图
©⻦瞰
©沿街效果
©正⽴⾯实景
©⼴场⼊⼝
©东侧⽔渠夜景
©南侧⼊⼝台阶
©室内⼤堂
©室内神性空间
◎展览空间©️梁⼭⼀千度视觉
◎室内细节
建筑草图
©功能与空间
©宋照⻘先⽣⼿稿
结语
对于溧水居民来说,老城区的历史风貌及溧水人的生活记忆是这座城市的宝贵财富,是新城区规划项目中不可忽视的珍贵资源。设计以抽象化的静物几何形态,将溧水城市独特的城市记忆元素转译至新建筑之上,以空间演绎的形式对具体的街巷及建筑的语义及形象进行抽象组合,再现溧水人对于蜿蜒街巷及潺潺河水的生活记忆,同时诠释溧水未来城市空间的全新样貌。
而建筑也因此成为了城市记忆中的一隅。展示中心以这种方式,焕发了城市新的生机,使其以新的形态为这座城市带来新的风貌。在这种创新的设计模式之下,以点扩面建筑带动周边老城的文旅、社会资源向新规划区的现代化模式靠拢,使其成为溧水向新规划发展、变迁的印记与纽带。在保持现有老城风貌不变的情况下,作为首开项目的展示中心将化作溧水古城向现代规划发展的新坐标,为其注入新能量,带来新的城市记忆。
项目图纸
△总平面图
△一层平面图
△二层平面图
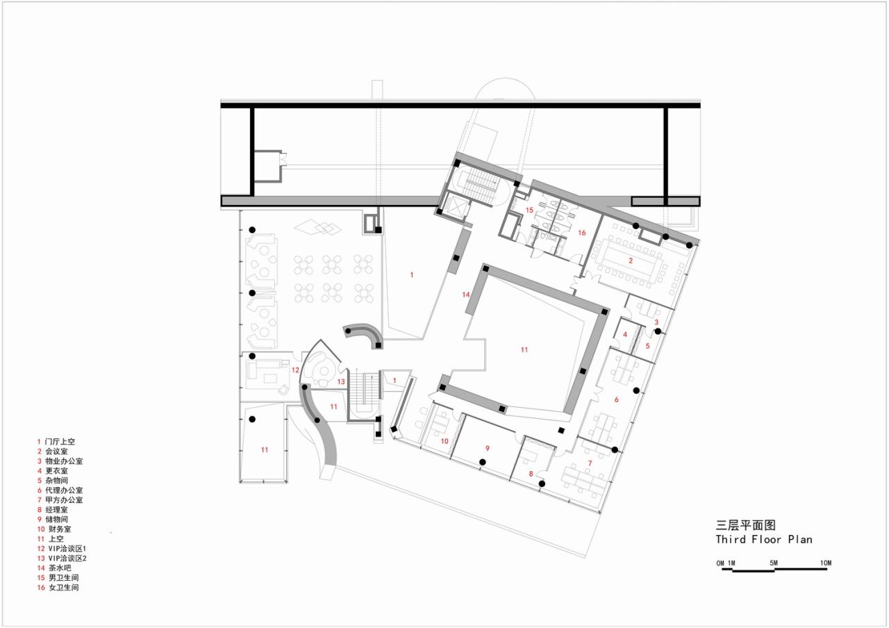
△三层平面图
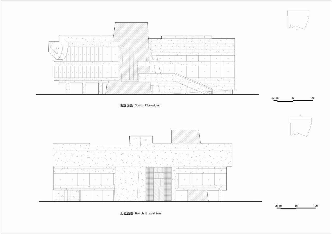
△立面图
△立面图
项目信息
项目名称:南京溧水华侨城展示中心
项目位置:南京市溧水区宝塔路东侧(一干河北岸)
业主单位:南京溧水华侨城实业有限公司
建筑设计:上海日清建筑设计有限公司
设计总负责:宋照青
设计负责人:初子圆
设计团队:赵晓雪 高娃 李登舟 邢云帆 梁皓
效果图表现:徐睿鹏工作室
视频及图表绘制:赵晓雪 王茜
建筑摄影:梁山 一千度视觉
设计时间:2021年1月
设计周期:2个月
项目完成年份:2021.10
占地面积:约15000平方米
建筑面积:地上约2500平方米,地下无
建筑材料:GRC,混凝土纤维板,仿清水混凝土涂料
建筑施工图设计:南京长江都市建筑设计股份有限公司
幕墙设计:旭密林能源科技(上海)有限公司
泛光设计:旭密林能源科技(上海)有限公司
室内设计:上海傲石设计咨询有限公司
室内施工图设计:上海傲石设计咨询有限公司
室内施工单位:泰兴一建建设集团有限公司
景观设计:上海日清景观
景观施工图设计:上海日清景观
幕墙施工:泰兴一建建设集团有限公司
景观施工:泰兴一建建设集团有限公司

BIM建筑网





































