△青矜之志,履践致远
01 初见:狭窄用地的应对策略
项目位于宿迁市宿豫区中心地带,紧邻区行政中心区政府,与新建的宿豫大剧院隔水相望。随着宿豫区进行城区更新,拟在原址重建宿豫实验小学及幼儿园。
△ 区位分析
项目基地西侧为城市主干路黄浦江路,东侧城市快速路,南北两侧为住宅区。现状学校主入口设置在与南侧住宅区共用的断头路上,拥堵情况严重;操场受高层遮挡,冬季积雪很难消融;教学楼为传统的鱼骨状布置方式,集中在基地一隅,建筑之间联系较弱。
△ 现状卫星图
02 思源:校园更新与文化传承
运水泱泱,马陵苍苍,日月下相,项王故里,一方水土,一所名校。宿豫小学建校以来,学校延续和积淀着楚汉风韵与运河精神,以“建设人文化的现代书香校园”为总体办学理念目标,用春茵、夏明、秋涵、冬韵命名教学楼,激励学子四时读书。
△ 现状图
本次设计目标是在原址新建一所传承原办学理念、学校文化,又符合现代教育特征的校园。剖析环境及使用需求,植入现代教育设计理念,提炼校园文化内涵,重构设计要素,为这所名校注入新的活力。
03 解析:日照影响与潮汐广场
设计首要解决的是日照遮挡问题及校园空间体验问题。通过对南侧北侧住宅区及校园建筑体量的日照分析,优化建筑功能分区落位,形成折叠的建筑形体围合出内院空间,在日照条件差的位置布置报告厅、食堂、体育馆等受影响小的功能。
△日照分析
△彩色总平
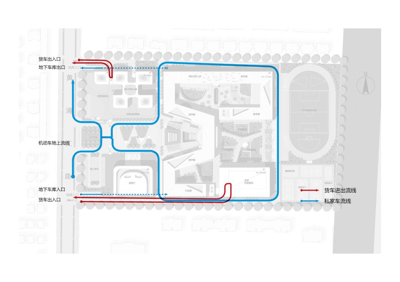
再次要解决的是基地主入口拥堵问题。结合同时新建的幼儿园,在城市主干道一侧,建筑后退,围合形成开阔的前广场蓄车空间,满足高峰期接送需求的同时避免对主干道造成干扰。
△流线分析
04 重构:书山勤径与时光回廊
设计中将学校视为一个整体空间打造。在建筑二层打造连续校园活动平台,串联教学区,图书馆、合班教室、报告厅、食堂及体育馆。形成丰富有序的空间体验。
活动平台南北向设置主轴,与之字形走廊多点相连,这条学生日常活动中最重要的动线,设计上立意为书山勤径。在动线周边布置主要庭院,提供四季读书的特色空间。
建筑屋面设置种植园地屋顶花园,上部连续折面形的屋盖宛若时光回廊,串联庭院空间,进一步强化方案设计理念,与东侧宿豫大剧院的形体遥相呼应。
05 传承:四季光景与书香校园
“春茵”“夏明”“秋涵”“冬韵”,原校园将其标识在了教学楼上,本次设计结合建筑手法及空间特点赋予了各个庭院空间这些名称。寓意在循环往复的时间里,以读书为主题,享受读书的乐趣。伴随着四季的交迭更替,将楚汉风韵与运河精神一代代传承下去。
春是伊始,踏上入口平台台阶,映入眼帘的是朗读庭院及静静伫立着的图书馆,共同构成一幅“春读”图,拾级而上,跬步致远。开放的建筑形象,象征着美好的愿景,远大的目标。
△春茵:窗临水曲琴书润,书读花间字句香
夏是生机,主要教学空间的树形结构支撑两侧布置楼梯,退台空间。斑驳的阳光从屋顶缝隙洒落;二层平台局部做下沉广场,阶梯好似树的年轮,蕴含着无限的生机与活力。丰富的空间预示着知识的博大,激发着学子的探索。
△夏明:问渠那得清如许,为有源头活水来
秋是收获,图书馆及中心花园种植园地,象征收获的“谷仓”高低错落。春日播种,秋日收获,沉淀着知识的积累,劳动的果实。开场的空间,联系着校园的动静,承载着孩子们的欢愉。
△秋涵:未觉池塘春草梦,阶前梧叶已秋声
冬是累积,专业教室围合的庭院与运动馆平台的联动。我们希望学生们在校园内既要读万卷书,也可行万里路。交互的平台空间,示意着德智体美劳的全面发展,重视文化的积累,也有着强健的体魄。
△冬韵:日暮诗成天又雪,与梅并作十分春。
结语:在城市更新的大背景下,越来越多的存量学校进入更新的视野,与新区学校建设不同的是,存量用地上新建学校,不仅要面对更复杂的场地条件,还要尊重传统与文脉,尽可能多地保留原有场地的历史记忆。
项目图纸
△总平面图
△一层平面图
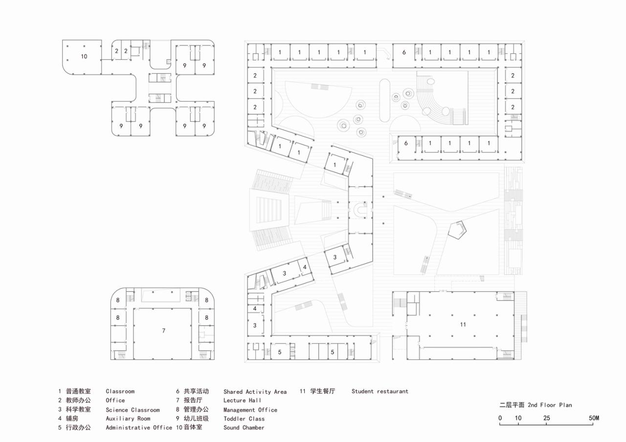
△二层平面图
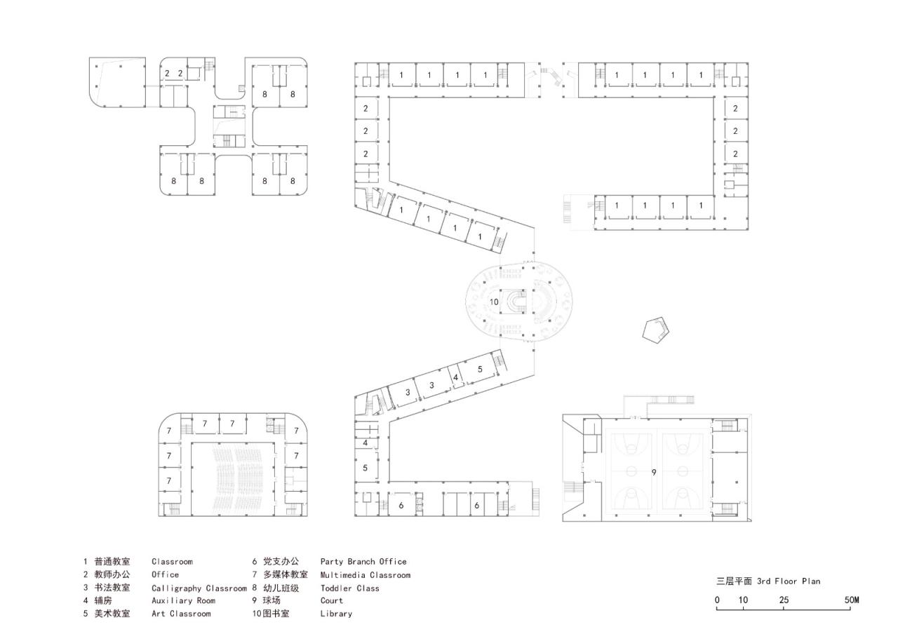
△三层平面图
△四层平面图
项目信息
项目名称:宿迁宿豫区实验小学重建项目
项目类型:学校
业主公司:宿迁市宿豫区教育局
设计公司:GEN简和工作室
建筑规模:5.7万㎡
设计团队:朱祺翔、周曙光、严孔羽、吴宣仪

BIM建筑网


























