穿越时空的人文之境
一、项目背景
城市化与工业化阻隔了人与土地、阳光、山水的连接,使人们失去了感知自然气息的机会。
位于陕西省洋县6000亩朱鹮国际康养生态城核心区中心位置的”洋县黑稻田”通过生态体验、文化交流、颐养照护、休闲娱乐一体化的生活体验系统,为繁忙的都市人提供了一种新的生活可能,在这里寻一处稻田,看云卷云舒,等春耕秋收,在田野里找回自然的秩序,找到内心平和的自己。
本案希望通过打造生态体验、文化交流、颐养照护、休闲娱乐一体化的生活体验系统,以促成乡野与城市的联结,打破边界,重塑心中的原乡。
二、规划设计
本次示范区落成面积为5118.82m²。整体空间围绕一水、 双街、多级广场徐徐展开,共计400m洄游商街,形成浓厚的田园小镇街区氛围。
小镇业态由沿街商业和多个不同主题客栈组成,集中提供养生康养、文娱、学习、商业等功能,为业主提供“乐、养、护、康、医”沉浸式的颐养服务。
示范启动区围绕中心主广场,细心推敲各个界面的空间尺度关系,借鉴传统造园对景手法,构筑自然建筑群落。
首开区与北面次入口相连,内有生活展示中心、业主食堂、长者之家、主题民宿等业态分布。南侧景观湿地资源被纳入到生活美学场景的主展示空间,穿过小镇的中心广场,可以充分体验多变的街区氛围,畅享未来的生活场景。
三、风貌设计
3.1 陕南民居研究
洋县位于陕南,受多种地域文化影响。当地民居风格呈现出荆楚与巴蜀地区风格的交汇与融合,同时还兼具秦地的特征。
3.2 小镇风貌研究
建筑师有选择性地摘取三种文化中的建筑元素,用传统材料和当代人的审美与精巧工艺,构建大形若拙、细品精致的乡野风貌。
(1)屋面造型
陕南雨水不多,排水需求较小,当地民居屋面坡度较缓,檐口宽厚。因此在出檐处专门设计了小层次的举折,以凸显灵动。
(2)木饰面装饰
对于小镇来说,碳化木运用是传达传统建构体系的重要方式。综合考虑效果与经济性,碳化木的使用需要做到有的放矢。所有屋檐檐口、山墙面等近人尺度重点视角采用成片木饰面,次要视角则以涂料为主;两种材料分界处、形体收边、门窗套,均采用碳化木线条区分层次。
(3)仿夯土板
本案的墙面效果,通过湿贴仿夯土板得以实现。其纹理是从真实老墙上1:1拓印下来,肌理自然,凹凸变化明显,能够达到比较好的仿夯土效果。这也是夯土板材料在国内的首次应用。
(4)老青砖
为了营造古朴、乡野的自然风貌,特地从周边百公里范围外搜寻老青砖,切割后作为饰面材料以湿贴方式上墙,并在风火山墙处设计砖雕造型,加以简化,保证实际建造过程中,更加匹配当代的施工技术条件。
△ 老青砖效果图
(5)细部元素
在细节上尽量与传统陕南民居靠拢,山墙穿斗造型、装饰小花窗造型等元素多在设计上得以展现和提升。
3.3 典型墙身做法
四、生活展示中心
4.1 生成分析
(1)一字形用地
本案容积率较高,建筑密度较大。住宅用地挤压,导致小镇地块用地局促。留给展示中心的地形为狭长的一字型。
(2)两体块咬合
展示中心分为两大功能区块,为公共展示空间和后勤服务空间。展示空间面向湿地公园,内部有挑空需求。后勤放置在沿主街和二层区域。
(3)屋面形式整合
通过两个功能体块的咬合,组成富有露台观景空间的形体。与小镇建筑风貌保持一致,在一二层设置双坡屋顶,两个屋顶之间形成具有张力的空隙延展空间。
4.2 建筑设计
相较于小镇的其它建筑,展示中心的现代感更强,主要材料为金属、石材等。
立面构成体系:从屋面到墙面均为幕墙做法,体量与材质相对应,构筑方式统一,强调横向延展性。
典型墙身做法:仿木金属墙面、石材墙面、通透玻璃、金属屋面等营造建筑的精致现代感,丰富层次细节
五、呈现效果
每年春季,朱鹮在洋县的湿地里结对筑巢,与当地居民和谐共生。芦苇荡、朱鹮、旷野、流溪,构成了富有田园诗意风光。
经过引导主街,宁静古朴的氛围扑面而来。设计运用了陕南民居的材质和做法,将本土风貌与现代性相融合。
在这样的环境之中,延续汉中居民长期以来的居住印记,又塑造出让现代人产生情感寄托和共鸣的生活场景。核心广场尺度宜人,是诸多功能动线的交汇之处。
古朴建筑构件与内透的现代商业展示面结合,营造出一个时空交错的空间,给游览者提供非日常的情景感。
一草一木、一砖一瓦,一院一舍处处体现田园诗意。
项目图纸
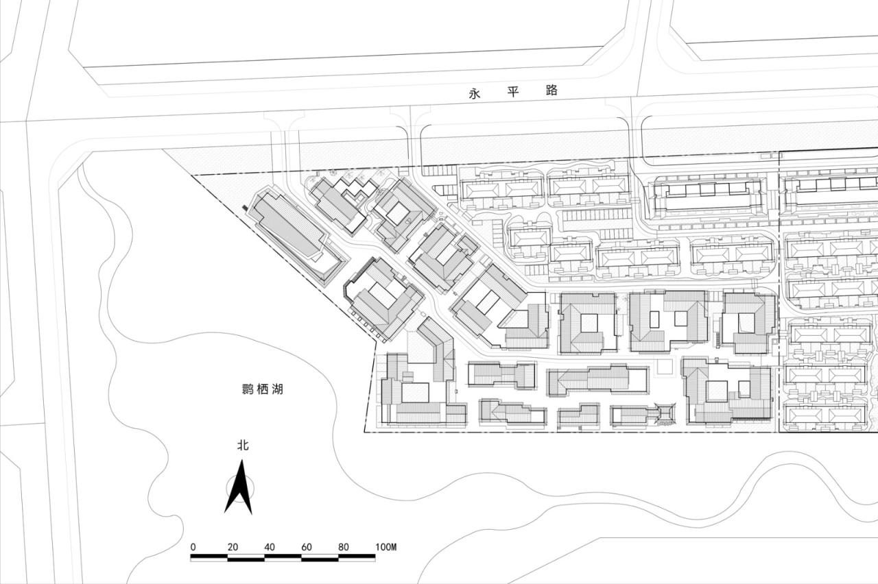
△总平面图
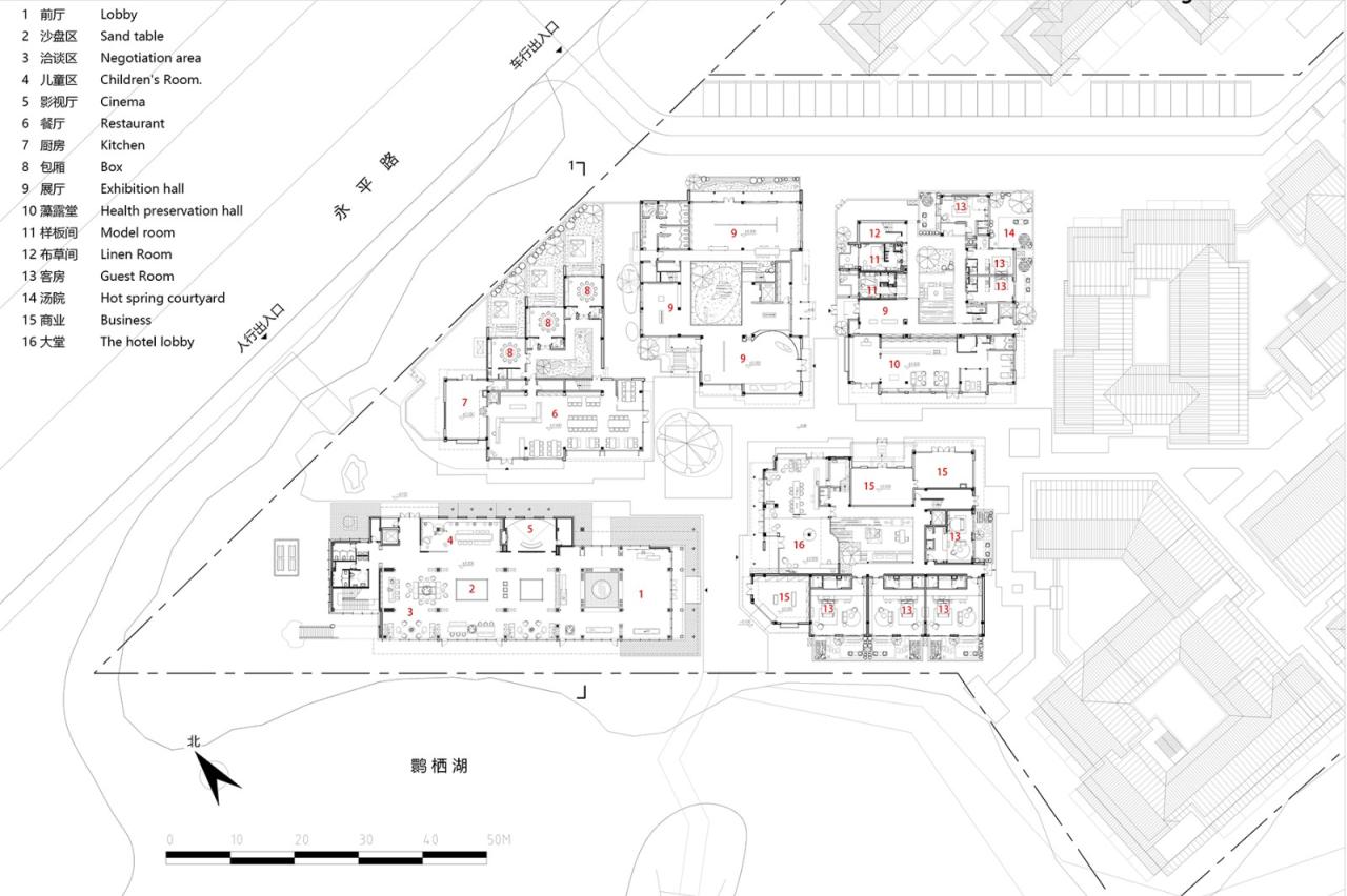
△示范区总首层
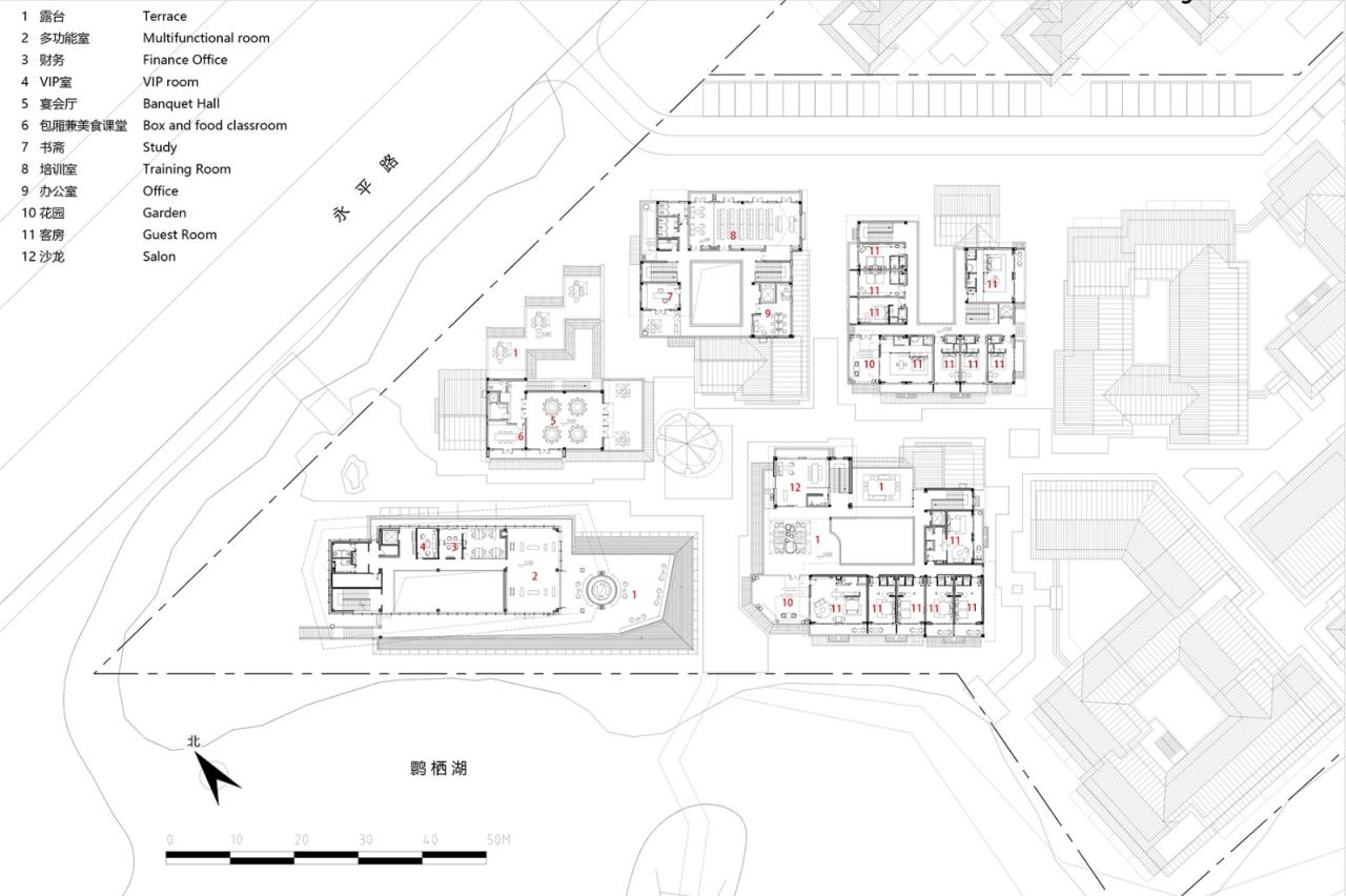
△示范区总二层
△沿湖立面
△沿街立面
△剖面图
项目信息
项目名称: 高新·黑稻田项目
项目类型:建筑/规划
项目地点:汉中市洋县南环路与东环南路十字向南500米
设计单位:艾麦欧(上海)建筑设计咨询有限公司(M.A.O.)
主创及设计团队:李余嘉、柴靖、刘磊、孙志峰、吴友楷、邱春辉、左乾:
业主:陕西高新时安文旅置业有限公司
建成状态:建设中
设计时间:2020.02-2021.10
建设时间:2021.11
用地面积:25505㎡
建筑面积:18000㎡
建筑施工图:中联西北工程设计研究院
景观:深圳市阿特森景观规划设计有限公司
施工:汉中东源建筑工程有限公司
材料:仿夯土板——斓图涂装工程(上海)有限公司;
金属屋面——乐居乐筑(北京)新能源科技有限公司;
碳化木——西安蓝图装饰景观工程有限公司
摄影师:章鱼建筑摄影工作室

BIM建筑网






















































