01项目背景
常州市高铁新城,位于常州国家高新区,是常州市“十四五”规划中重点发展的区域,围绕“城市新中心,中轴新支点,产业新高地,智慧生态城”的总体定位打造长江经济带绿色发展示范区。
△ 区位分析
02机遇与挑战
本项目所处的“新龙总部经济区”由五栋百米塔楼及其裙房组成,按照“统一规划,分地块出让”的原则,在我们介入项目之时五栋塔楼已建成三栋,由三个不同的业主持有和开发。这时给到建筑师的其实是一道“命题作文”,如何通过合理的规划和设计,将五个独立的地块重新“缝合”成一个整体,打造代表本区域的“名片”?
△ 分析图
03整合设计
“我们的使命是用设计去赋能整个地块,使其成为城市空间的有机组成部分,而不只是去增加两栋楼”,简和建筑设计团队在最初思考设计的时候,就把地块周边的社区纳入到考虑范围内。
△ 生成分析
“整个区域应该是人车分流的,底层形成架空的让人可以驻足的灰空间,增加地块的可达性,内部形成一个开放的大花园。新建的地下室同时考虑把其余三个地库全部联通,减少新增坡道的数量。”设计团队先从城市设计角度解决地块整体性问题。
△ 地库联通
04立面编织
“我们不是做加法,而是做乘法,把分子找出来后,确定最大公约数”。对于已经有三种立面风格的园区,新建的两栋建筑如何“嵌入”到现状中,同时给园区带来新的面貌呢?
△ 立面模数分析
设计团队用了先解码再编码的方法,提炼了现状三栋楼的立面元素,再将这种设计元素用新的手法进行演绎。整体呈现出来的面貌应该是整体而富有变化的,通过新建建筑的“织补”,新老建筑立面风格相得益彰,形成一个统一的整体。
05 建筑特色
绿创大厦位于总部经济区东南角,也是该区域唯一一栋从高铁北站出站就能看到的建筑,成为展示整个总部经济区的“窗口”。建筑本身有一个局限(Dilemma),就是容积率3.5的情况下,正常只能做到80米左右。而客户希望视觉高度尽可能做到100米。在局限和挑战之间,必须拿出非常规的解题思路。
破局的关键是尽可能增加楼层而不增加建筑面积,于是“挑高中庭和空中花园”成为解题的胜负手,也成为建筑的最大亮点之一。每层拿出1/4做挑高空间对于办公空间的得房率是一种损失,这也是为什么大量的商务写字楼还是采用传统的“大平层”方式。业主能够允许设计师采用如此冒险的方式,也是经过仔细的客户画像的。
△ 高度体量分析图
绿创大厦打出了“垂直花园式企业总部”的概念,每三层为一家企业,面积约4000平米,每个企业拥有自己三层挑高的“企业客厅”,以及室外空中庭院。在同一个企业中,上下楼层之间的沟通尤为重要,共享空间为员工提供了交流,休息,汇聚的场景,也成为企业最佳的“展示空间”。
室外花园的位置是根据建筑与城市关系确定的,朝东侧和南侧的室外花园更高,可以瞭望新龙湖和高铁北站,朝西侧和北侧的花园更低,可以看到内部广场。室内中庭则集中位于西侧和北侧货值较低的空间。
△ 空中花园分析图
06 高还原度
绿创大厦塔楼立面设计采用三层一段的竖向装饰铝板,在设计上弱化了横向线条而强化竖向线条,使塔身更挺拔。装饰铝板由600×200的平行玻璃面的铝板,和70×450的凸出铝板面的装饰线条构成,增加了两个象限的层次感。竖向线条根据空中花园的位置形成“波动”,打破立面的确定性,在统一中富有变化。
△ 东立面实景图
△西立面效果图
凸出玻璃面的竖向装饰线条,除了提供视觉上的纵深感外,还是重要的功能构件。线条侧面设置穿孔板,背面设置隐藏式开启窗扇,为办公空间提供充足的自然通风,而不影响立面的整体感观。
裙房拟引进一家银行,业主希望采用石材立面,突出基座的“稳重感”,与周围建筑裙房元素相统一。在材质的选择上设计师比选了不同的材质的搭配和不同天气下的视觉效果,才最终确定方案。
07 一体化设计
在绿创大厦的设计中,“垂直花园式企业总部”是简和设计对人性化办公模式的探索,追求办公空间与生活场景的融合。并以建筑专业为基础,将一体化设计模式贯穿始终,与室内,景观,幕墙等专业充分交流与融合,为最终的建成效果带来了极为难得的整体性。
08 EPC总包
绿创大厦采取的是“以方案设计为主导的设计、采购、施工工程总承包”(EPC)模式。在方案设计阶段即要对个专项设计进行前置设计,对决定造价的主要材料、品牌进行管控,辅助业主进行编标。如果设计过程中有缺漏项,深度不足,或者对主要材料的描述不够细致,往往会让施工单位有机可乘。
总的来说,EPC工程对设计团队的水平提出了更高的要求,同时在建造过程中行使“代甲方”的权利与施工单位进行频繁的博弈,在造价可控的范围内对材料选择精益求精。例如在建设过程中,空中花园几根悬空的幕墙挺料,1根就有12米长,在堆料存放和吊装过程中产生了弯曲。在建筑师和业主的坚持下,施工队把安装好的竖挺拆卸下来重新返厂加工,最终保证效果的完美呈现。
09 后续
绿创大厦2021年竣工后,凭借超高的还原度和独特的空间设计得到甲方的一致好评,差异化的产品定位为项目赢得了客户的青睐。绿创大厦重新定义了“垂直花园式企业总部”, 是简和设计对办公产品的创新实践。在人来人往的高铁站,在新龙湖波光的映衬下,新一代企业总部为员工打造出更有温度的办公场景和更有灵魂的共享空间。
项目图纸
△总平面图
△一层平面图
△二层平面图
△标准层平面图
△立面图
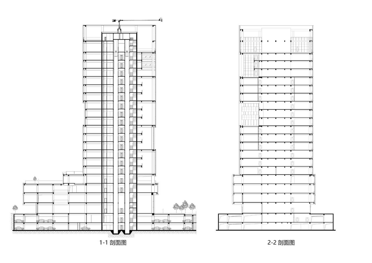
△剖面图
项目信息
项目名称:常州总部经济区绿创大厦
项目类型: 办公
业主公司:常州绿智投资发展有限公司
设计公司:GEN简和工作室
设计时间:2018.04
竣工时间:2021.06
建筑规模:4万㎡
设计团队:邹旦妮、孙平 、刘玉婧、林秋杉、张弛、陆金磊、马宾、陈美玲、 苏妮等
摄影 :夏木工作室

BIM建筑网



































