光为空间注入生命力并将物质世界融入影像之中
“我们生于光。我们通过光感受四季。”——路易斯·康
路易斯·康是建筑设计中光影运用的开拓者,他认为空间应该是一个能让人在精神感受纯粹的地方。在这里,让一些空间可以是“无限的”,但也有一些空间就应该完全地“有限”。不同光引发空间的不同节奏感,室内空间随着光环境的变化而产生丰富的表情。
让光变得自由又可控制,便成为设计RAyinGallery摄影空间的思考核心。
空间与光是不可分离的,因为所有对建筑的空间体验都要有光。即使在完全的黑暗中,仅凭听、摸或闻所掌握的具体的空间体验,其实也参照了通过视觉和光线建立的对空间的理解。
商业思维
本案项目位于太原市万柏林区,紧邻万柏林生态园。项目希望围绕品牌“留住此刻”,打造一家以故事性来记录当下生活的摄影空间。“光”是摄影和空间两个不同艺术领域中相通的元素,摄影就是光的艺术,而对于空间体验也同样重要。
光是组成摄影的重要部分,有光才有影。摄影就是用光来作画,如何利用光与影的关系来构成影像和影调,是摄影创作中的一大关键。
原建筑为一个层高8米的钢结构建筑体,设计从光的三原色——“蓝、红、绿”的概念出发,由这三种不能再分解的基本色彩可以组合成无数其他色彩,以这三种颜色作为不同区域空间的主题色,预示着空间未来更多的变化。
真正的空间体验都具有身体性和多重感知性。每个引人注目的空间和场所势必都有它独具特色的光,而光通常也是最能直接调节情绪的空间特性。
设计方案从“来自美术馆的一束光”为主题,在空间上让光为建筑的体量、空间和表面赋予性格和表现力,显示出材料的形状、重量、硬度、肌理、温度、光滑度、温度等方面,在拍摄的同时以光为主题的空间也能帮助灵感不断迸发。
光控制着生物体的生命进程,甚至人类的某些激素活动也依赖于光。光影响着我们的情绪、活跃性和体能水平。
虽然光通常被理解为一种纯视觉现象,但它其实还与触觉感知联系在一起。在设计中,创造出一种捕捉并留住光线的空间,以便所有人可以用身体来感受,这是一种对“眼睛会触摸”和“眼睛会感受”的理解和实现。当你睁开眼睛并允许这种感觉发生时,触觉就从眼睛里跑出来,就用手去摸一样。
建筑语言
设计构思以展示作为所有空间的内核,从“光之画廊”搭建整个空间形态,通过建筑语言引入室内,形成高辨识度的视觉效果和空间记忆。设计上打破常规适用区域“一室一用”,使其满足“一室多用”,赋予空间多重属性,更大限度的促进空间与人的互动性,形成品牌在空间上的记忆。
通过前厅吧台对面圆形公共区,可以看到悬挑的空间盒子,彼此独立但又充满一定的私密感。顺着台阶往里走,立刻置身于一个层次更加复杂的空间之中,红色配合灯光将空间点亮。每个空间都设有开口,保证其功能的同时又保留体验的趣味。
在一层的公共空间中,光妥帖的透过结构的开口洒在区域内,通过设计的手法将建筑体块进行融合与穿插,让人的活动在此更加多样,设计将室外交往活动中最基础的人际交往方式(散步、停留、小坐、观赏、倾听、交谈)在室内进行规划,保障最基础的活动才能自然而然变化为更大型、更复杂的活动。
设计中,不对光线进行均匀分布,增强场所感和私密感,营造出一种抚慰人心的拍摄体验。光透过玻璃照在墙壁上,仿佛放慢了速度,使太阳光和照明设施在弧形墙的表面和边缘之间顽皮地跳跃反射。在墙壁中设计的狭缝,是为了把光挤压成具有方向性的薄片,使它变成触不到的一层刀刃,从而切断空间中的黑暗。
在空间中放置的“球”,运用弧形的白色表面来发射光线,这些圆形转角的表面所创造出的明暗对比为光赋予了一种体验上的物质性和造型感,也增强了光的在场感。这是经过铸造的光,通过“球”让光具有了物质的体征。
空间体验
光只有被包含在空间中,或通过它所照亮的表面而得以具化时,它才能使人在体验中的情感上感受到它的存在。在二楼的走道里,从外立面透进的自然光让人感觉像是一件上天赐予过道的美好礼物,在黯淡背景的衬托下,幻化成了一幅氛围感十足的油画。
设计时也在建筑内部引入光线,利用窗洞的剖面性质,在解决视觉舒适度的同时创造出一种神圣的照明体验。墙体的厚实感、窗洞的深度感,以及窗洞的剖面形式结合在一起,共同创造出一幅丰富多变的光影图画。
二层作为主要的拍摄区域,通过一大一小两个体块作为主要拍摄区域来进行使用。在这个纵向的空间里,设计将空间挑高,让拍摄也可以更加“自由”。半私密性的空间结构,让拍摄活动也可以进行展示,让等候区的客人也可以提前了解拍摄流程。
在此案例中,光线通过浅灰色水泥顶面得以强调,在二层公共天井区域中,体块间的融合、穿插、分离与叠加,让空间灵活且赋予变化。在与阴影和黑暗发生关系的过程中,光的价值和情感力量都获得了提升。
为了保证空间的连续,在设计上避免掉漫长而笔直的步行线路,蜿蜒和富于变化的小路为空间增添趣味,丰富的过渡空间使不同形式和氛围的空间加以融合,为情境之间创造无形的秩序。设计利用中国传统匠师的手法去营造空间氛围,让人产生“游”的欲望,身处其中也能领略到空间的丰富。
通过动线的规划,将人际交往的接触强度随着空间体验逐步递增。不仅通过空间区域设计使探店、咨询、拍摄等不同人群的活动保持了私密性,也将空间边界柔性处理,去掉了传统意义上的门,也以建筑体块的视觉差做了半私密的处理,让空间得已“流动”。设计希望以一种轻松自在的方式让相互交流有更多的机会。
项目图纸
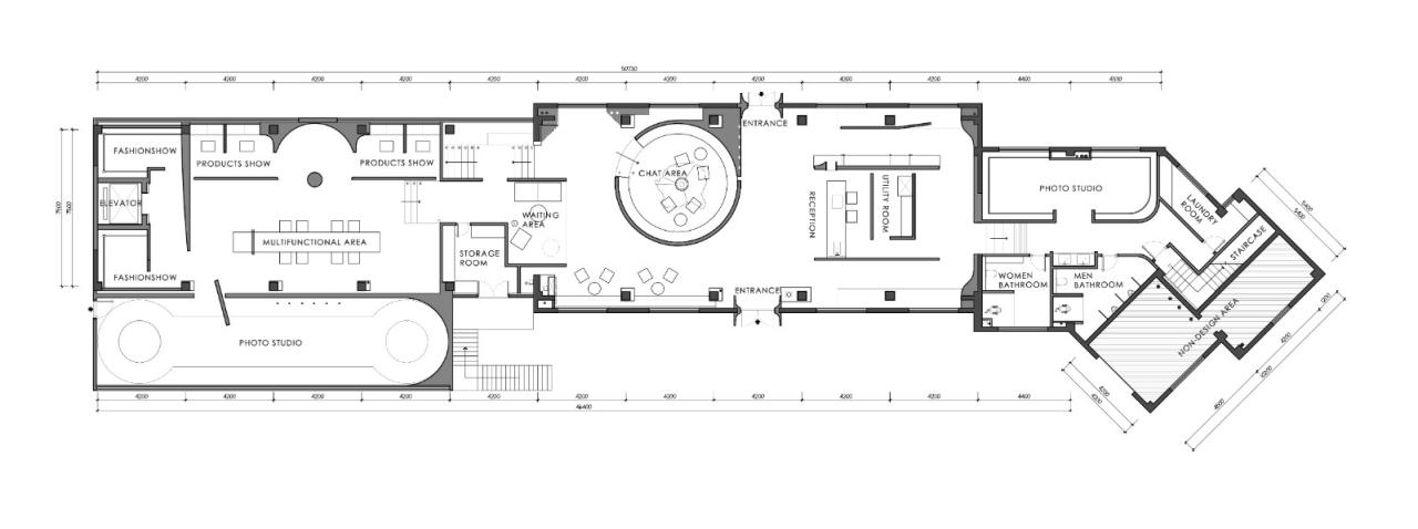
△一层平面图
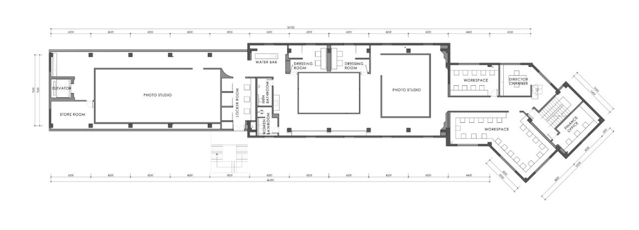
△二层平面图
△三层平面图
△爆炸图
项目信息
项目名称:RAyinGallery
项目区位:山西太原
设计公司:HOOOLDESIGN事务所
主创设计师:韩磊
设计师团队:荆超、黄德斌、李静怡、智鹏飞
照明团队:LST商业照明设计
艺术壁材:JCC精创色彩设计中心
产品设计:艾诺一宅·系统家具
项目面积:1400平方米
项目类型:摄影空间
完成时间:2021
项目摄影:吴鉴泉

BIM建筑网















































