从场地而来的建筑山中的艺术中心坐落在一条山脊线上,位于自山脚蜿蜒而上的山道一侧,它承接着北方特有的苍茫山岭,也连接起从山脊线铺向另一侧山谷的社区。社区居民归来或访客前来,沿山路逶迤而上,会首先看到这个艺术中心。基地东侧和南侧面向山路,居高临下,可远望连绵群山;北侧俯瞰沿山坡铺陈而下的别墅群;西侧则紧邻社区边界——收束社区的街道。这特殊的位置让它成为社区入口标志与枢纽。
小小的建筑如何成为面对大自然的一个不卑不亢的地标,又能够与社区街道的近人尺度协调融合,这是建筑场地设计要实现的目标。一片外观体量厚实的多边形单坡屋顶,一个与挡土墙结合包绕基地的基座,使建筑物面向群山有一个纪念性的尺度。同时,屋顶高度与倾斜方式的设计又能够使其在面向社区一侧收束成低矮立面,与社区别墅的尺度相近。
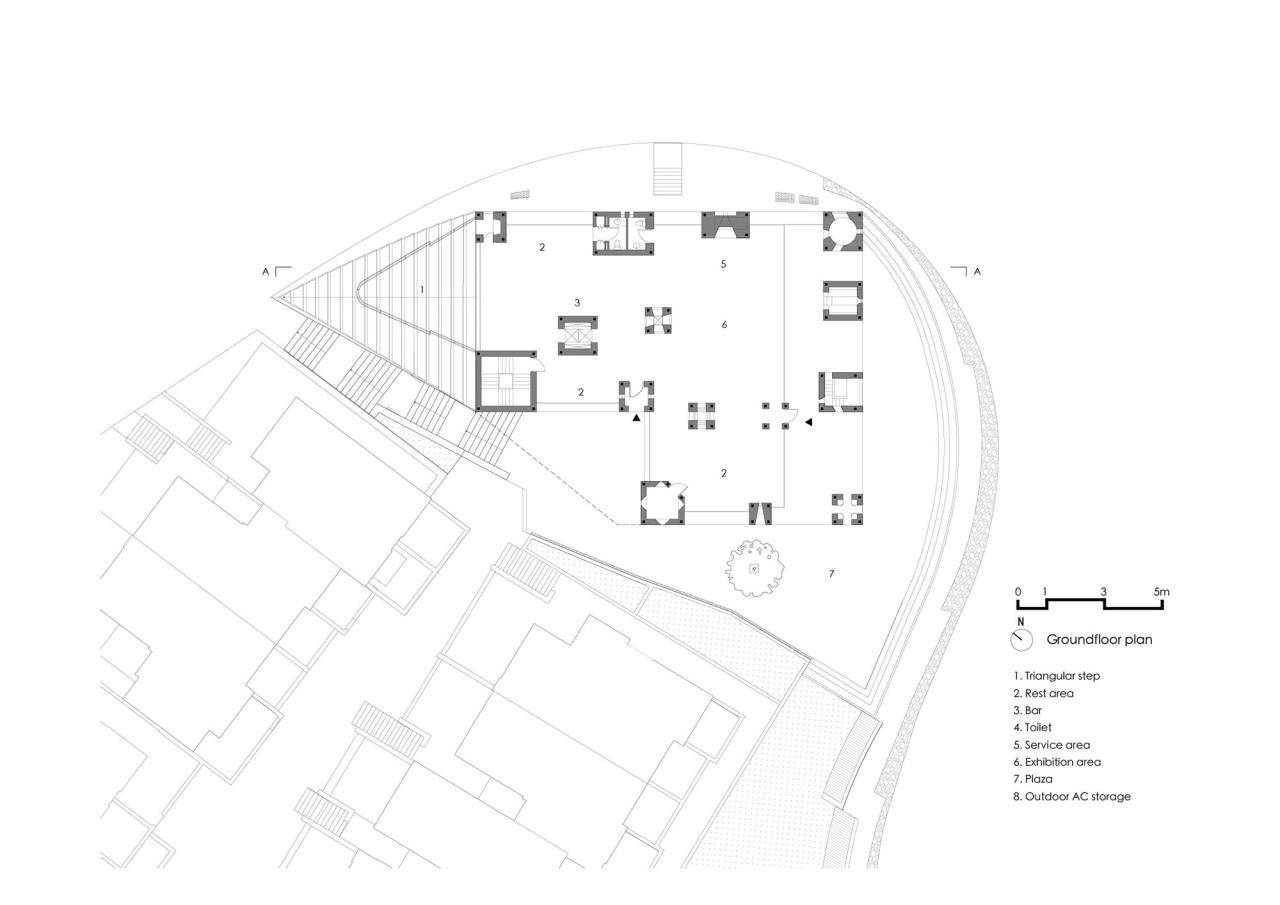
沿着道路由挡土墙包绕的基座和建筑成为整体,并通过它的形式和材料处理调节着道路行人的尺度感受。基座三角台地部位的尽端为高度2.1米的梭形收头,其与毗邻的别墅基座挡墙之间布置人行台阶,让行人自然地拾级而上,靠近艺术中心或折而进入社区内部街道。基座在建筑面向群山一侧,形成一小片广场,铺地与建筑内部的连续性使建筑难分内外。这里被设计为这个方寸小的基地上的空间尽端,将视线引向山岭与天空。
砖亭之亭设计另一个要面对的问题是建筑与自然的关系,从山脚到这里的旅途一路兜转,人们已经饱览山色,如何在这个建筑里创造新的体验?
15个各具功能的砖砌“柱亭”,共同组织出一个被覆盖的“大砖亭”。柱亭之间,风景在这里成为一种“邂逅偶遇”。沿途熟悉的风景和光线从柱体之间渗透进来,风景的画面被柱亭分割,会再次在人们的想象中联缀起来,成为一个新的体验。建筑空间以这样的方式来塑造定义周围群山的风景的同时,也塑造了建筑的内部性。敦实的系列砖亭形成建筑的特征,为外部提供了有意思的视觉和包容温暖灯火的空间印象。
这些砖亭,有的是入口亭,有的是两个空间之间的转换亭,有的是可以休息的读书空间,有的是儿童亭,有的是望山亭,有的是电梯,有的是楼梯,有的是辅助用房,有的是卫生间。室内空间被这15个砖亭分为三个区域:入口与服务、休息和咖啡区域、大的活动空间以及其辅助活动空间,其他空间围绕中央活动空间布置。不同尺度的空间被组合在一起——既提供两三人交流的空间,又提供集会活动的场所。“柱亭”本身与它构成的空间既是日常的,又是具有永恒意味的。
项目图纸
△手绘图
△手绘图
△手绘图
△模型图
△总平面图
△一层平面图
△剖立面图
△平面分析图
△分析图
△分析图
△M细部剖面图
△L细部剖面图
项目信息
建筑设计:上海阿科米星建筑设计事务所
面积 :908m²
项目年份 :2021
摄影师 :Runzi Zhu
主创建筑师 :庄慎、任皓、唐煜、朱捷
设计团队 :庄慎、龚晨曦、邱梅、易宁、黎家泓、徐帆、张灏宸、李文伟(实习生)、梁俊(实习生)
委托方 :承德阿那亚房地产开发有限公司
结构设计 :上海源规建筑结构设计事务所
机电设计 :同济大学建筑设计研究院(集团)有限公司
幕墙设计 :上海熙玛工程顾问有限公司
灯光设计 :倘思照明设计有限公司
幕墙施工 :南方雄狮创建集团股份有限公司
施工方 :黑龙江省三江建设集团有限公司, 承德宏盛建筑安装有限公司
地点 :中国,承德

BIM建筑网
































