比利时的安特卫普希望给所在城市及周边的更广地区提供一个更为可持续的交通空间。一系列 P+R(Park+Ride)大楼,即停车场与公共交通集成的换乘大楼的开发,则是这项计划倡议的关键部分。除了提升使用者的流动性,项目还意在成为安特卫普地区的城市门面,也就是人们进入该地区的公共门户。
P+R 大楼的设计挑战在于各种不同规模间的过渡形式,这不仅仅要求建筑师思考 P+R 大楼本身的物理空间,而且需要在项目之中反映出其足以胜任其城市门户这一身份标签。
就各个站点来说,个人交通方式(汽车)与更多的公共交通模式(电车、公共汽车和共享自行车)间的物理转换是至关重要的。从这一角度而言,P+R 大楼确实体现了安特卫普市在实现更具可持续性和公共性的交通流动方面所做的努力。换言之,这些建筑大楼及其附属设施可被理解为“过渡”环境,就像机场、火车站和地铁站;对这些地方来说,换乘的舒适性、易读性和安全性是最为主要的。
这些都是确保该换乘环境成功的关键要素,提高流动性的可持续性,以满足大都市交通网络中旅行者、游客和居民的需求。同时,这一大都市交通网络的细致交汇点就是 P+R 大楼的核心所在。
截至目前,共有三栋 P+R 大楼建成,分别位于 Luchtbal、Linkeroever 以及 Merksem,分别提供了 1800 、1500、680 个车位,合计耗费 5600 万欧元。
大楼形态主要取决于建筑结构,以及包围集合和绿色外部空间的呈现方式。大楼并未设置外墙,而是强调了其异常整洁且融合的结构,即混凝土柱和木梁(为了更为可持续的材料使用)。位于大楼中心的天井还将日光引入建筑内部,同时可以引导各种交通流线。
项目图纸
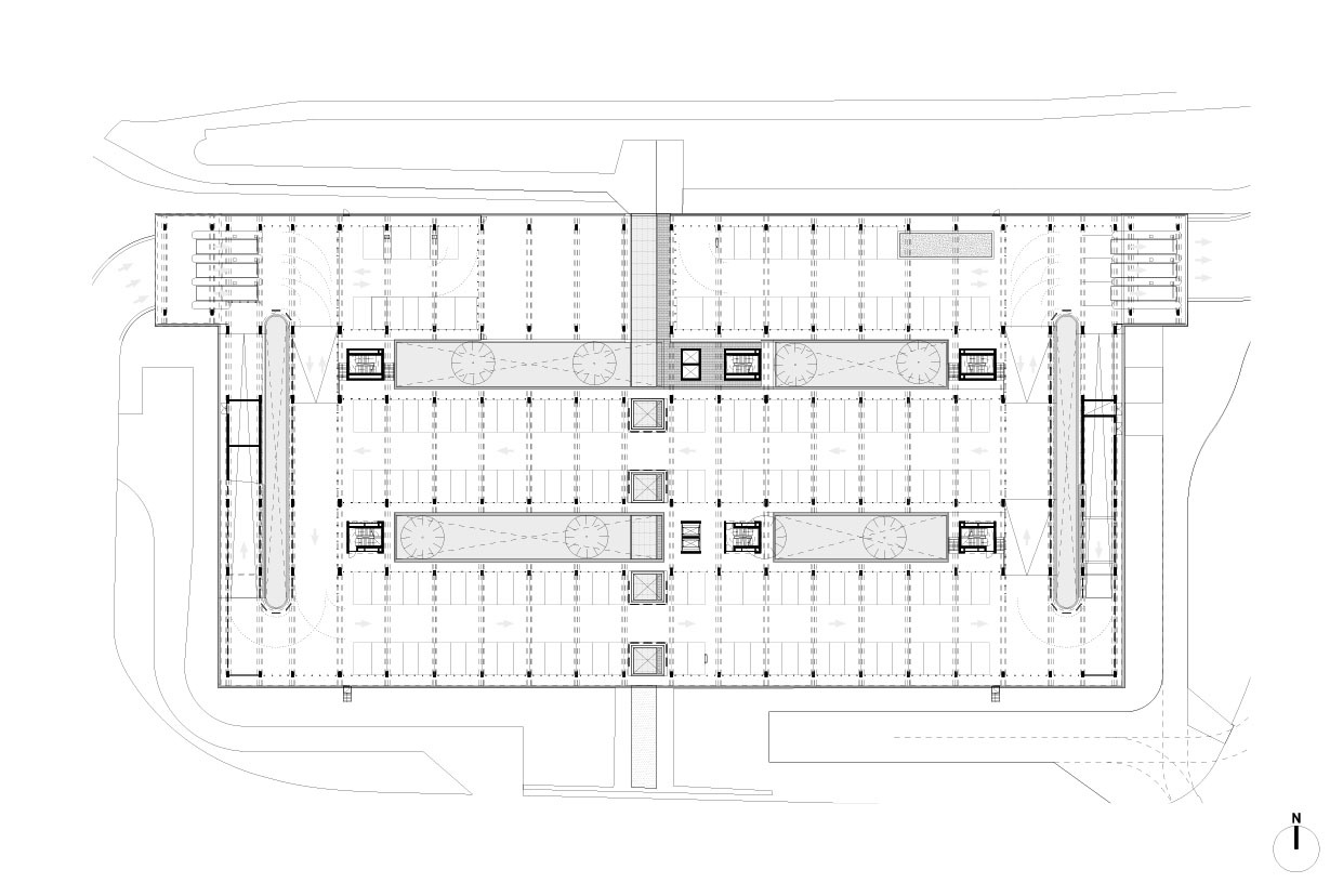
△一层平面图
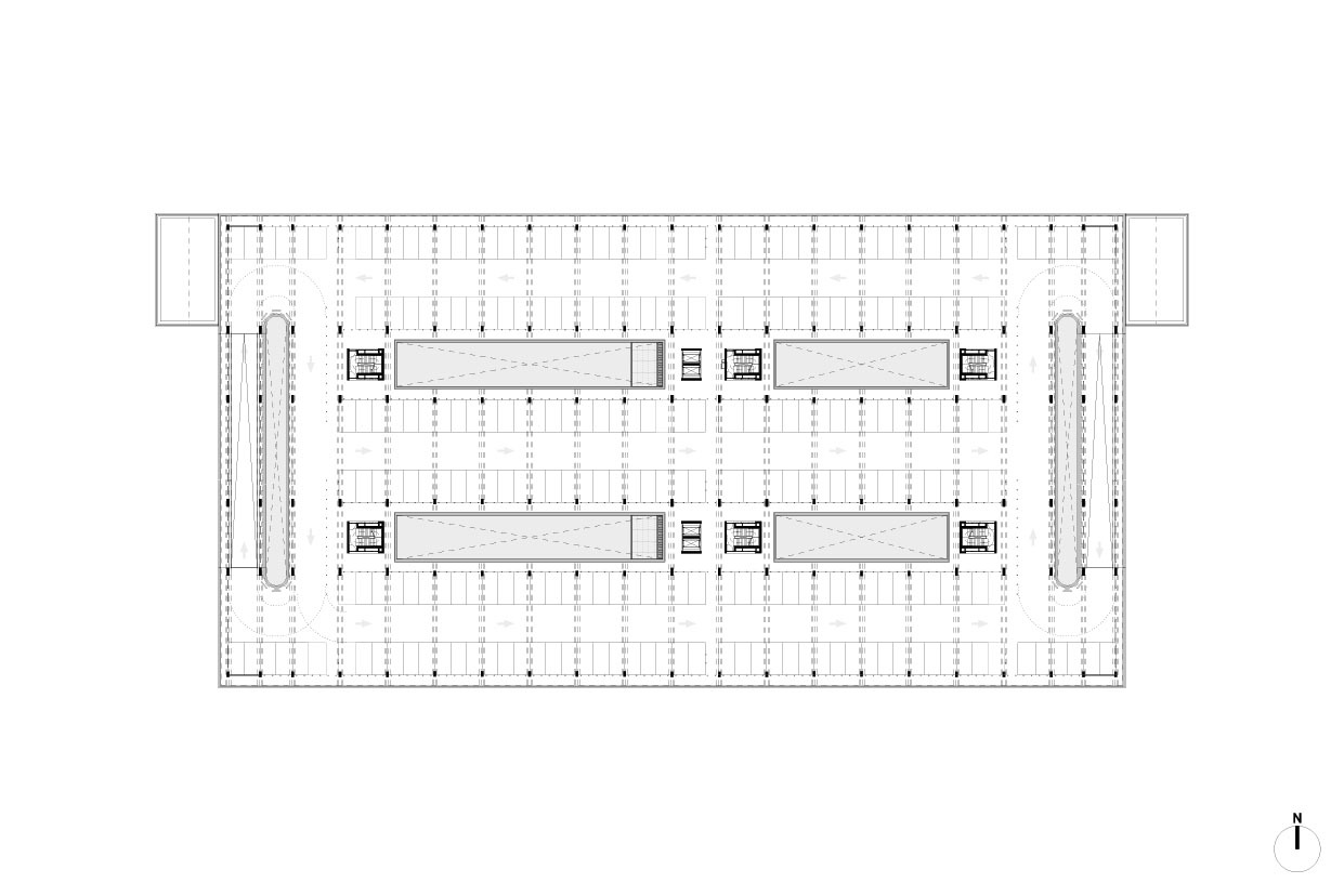
△典型平面图
△剖面图、立面图
△大样节点图
项目信息
建筑设计:HUB
项目年份 :2022
摄影师 :Jeroen Verrecht,Wouter De Ceuster
项目合作 :Sweco
地点 :比利时,安特卫普

BIM建筑网





































