水面上的现代建筑群Sluishuis 是对阿姆斯特丹建筑群类型的现代转译,特别是对其在水中的特殊位置的回应。建筑体量的一侧被抬高,让水进入庭院,而另一侧则被降低,以友好的绿色露台向整个 IJburg 区做出邀请的姿态。从每个角度看,你都能感受到 Sluishuis 体量的不同。无论你是站在堤坝、高速公路或桥梁上,还是走过栈桥或跨越屋顶的公共路线,甚至从空中俯瞰这座建筑。Sluishuis 知道如何从各个角度给你带来惊喜。
丰富多样的住宅该住宅项目由 442 套公寓组成。出租和自住的房屋在整个建筑中交替出现,为不同的目标群体、收入水平和年龄类别提供了居住空间。所有的公寓都可以通过中央庭院进入。在那里,巨大的悬臂梁与水面共同欢迎你来到大楼。由于 Sluishuis 的特殊形状和双切面体量,每个家庭都拥有最佳的视野和日光。
Sluishuis 拥有丰富多样的住房类型,如紧凑的城市单间和水上运动公寓。在顶层的两层是复式阁楼,既与庭院相关联,又能看到 IJmeer 湖的景色。阶梯部分的高级公寓带有豪华且阳光充足的木制屋顶露台,可以看到 IJburg 的景色。特别的是位于悬臂底部的公寓,可以直接在水面上看到 IJ 湖的迷人景色。这些公寓的独特之处在于,它们悬挂在水面上,并且沿着倾斜的外墙与地板交接的部分有一个大窗户,透过它你可以看到船只在你的脚下航行。
公共基座和栈桥长廊该基座将容纳一个多样化的项目,包括帆船学校、水上运动中心和带有宽敞的阳光露台的餐厅。居民和游客从院子里进入。通往 Sluishuis 屋顶的走道为游客和居民提供了壮观的水景和周边迷人的景色。还有一个栈桥长廊,有 34 艘船围绕着建筑。码头的景观通过各种停泊点、坐台和漂浮花园来鼓励人们与水的接触。精心设计的景观也促成了拥有当地植物物种的动植物群和一个鸟岛。通过这种方式,基座和周围的景观形成了对当地环境的高质量补充。
加强社会凝聚力Sluishuis 旨在鼓励和加强居民与游客之间的联系。交错的阳台创造了令人惊奇的的视线和交流。横跨屋顶的公共路线,以及中心庭院的儿童游乐场,栈桥长廊,和屋顶木质露台的配置,都在鼓励人们自发的相遇。
自然材料在材料方面,该建筑寻求与周围环境对比的同时也寻求与周围环境的联系。材质的选择采用了天然材料,以便建筑在多年后能有一个丰富和自然的外观。抽象的、未经处理的铝制外墙反射着水面,在一天中的任何时候都会给建筑体带来不同的外观。相比之下,阶梯式的屋顶露台和栈桥长廊是木制成的,给人一种可触摸的质感。
绿色与可持续Sluishuis 是近期完成的最可持续的建筑之一。它的能源性能系数(EPC)为 0.00。通过结合优秀的绝缘技术、三层玻璃、以及从通风系统和淋浴器中回收热量,该建筑的供热需求已经降到了最低。大楼由节能的区域供暖和热泵相结合的方式提供热水和制冷。大楼的供暖、热泵、通风和 LED 照明的能源消耗完全由大约 2200 平方米的太阳能电池板提供。除了这些技术方面,在开发 Sluishuis 的过程中,对绿化和水的收集也给予了充分的关注。建筑的正面、侧面和庭院里都有由当地植物品种组成的花园。绿色植物在内置的花盆中穿过屋顶露台向上延伸,并在屋顶上创造了一个愉快的绿色氛围。
凭借着强大的建筑、新的住房类型、高质量的户外空间和令人窒息的 IJmeer 湖景, Sluishuis 成为了欢迎人们来到阿姆斯特丹 IJburg 区的一个入口。
项目图纸
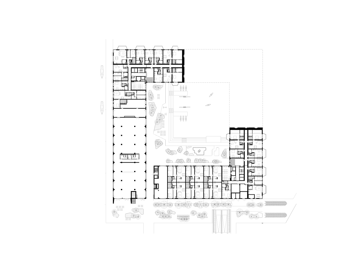
△一层平面图
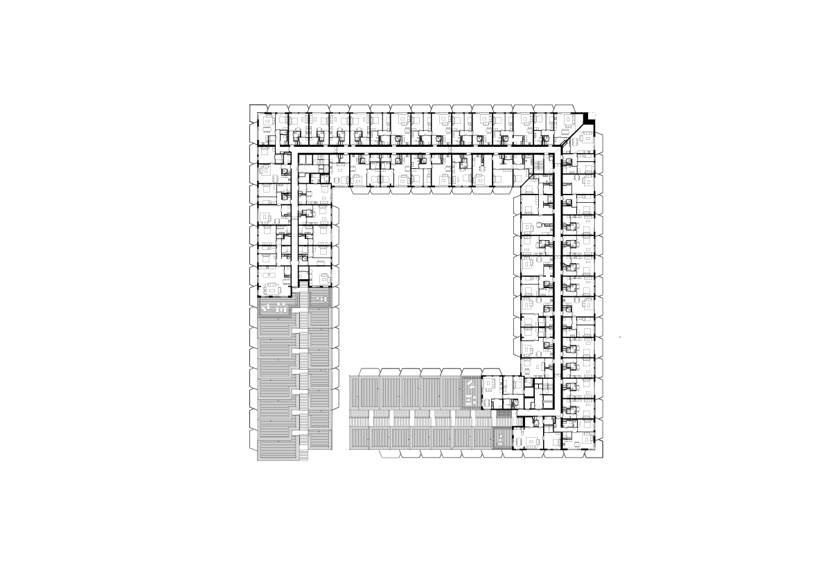
△四层平面图
△八层平面图
△剖面图
△剖面图
项目信息
建筑设计:Barcode Architects,Bjarke Ingels Group
面积 :49000m²
项目年份 :2022
摄影师 :Ossip van Duivenbode
委托方 :BESIX RED, VORM
项目合作方 :BIG Landscape architecture, Van Rossum, Buro Bouwfysica, Klimaatgarant, DWA
地点 :尼德兰,Amsterdam

BIM建筑网



















