本文源自微信公众号:迈骏工程咨询
机电安装工程从施工进场开始到水、暖、电联合试运行结束,贯穿整个施工过程,其重要性不言而喻。随着人们对公共建筑功能、质量、空间、舒适等方面要求的逐渐提高 ,机电安装过程也变得愈加复杂。主要体现在材料、工种及安装工艺方面,施工过程中需要各专业相互协调配合,且需要投入大量的资源。公共建筑的设备管线繁多且复杂,管线碰撞冲突与协调困难等问题时有发生,势必会造成返工与成本的增加,同一个建筑物内部常常会出现大量不同功能、类型材质、直径以及安装要求的管道。
基于大环境下的需求,BIM技术以建筑信息模型为代表,在建筑环境下大放异彩。对于施工方来说,施工技术人员通过运用BIM技术,提供准确的机电安装施工提供构件信息.定位尺寸和预留预埋等相关内容,从而进行管线碰撞分析及综合优化;通过三维信息模型进行施工模拟,避免管道和设备在运输和安装时遇到空间不足等问题,为工程实际施工安装握供参考依据,达到指导施工.降低成本的目的。此应用极大地提高了建筑工程的质量、安全、进度三大目标管理的质量与效率,为建筑业的转型发展指明了方向。
以某综合性酒店项目为例,其包含餐饮、娱乐、会议、办公、住宿等多方面,功能需求多,空间利用要求更高。涵盖专业多,管线类型复杂。
首先对项目详细分析的基础上,运用BIM技术建立了三维模型,根据规范制定相关实施流程和标准,完成该工程的机电深化设计工作,其工作内容:
一、在土建专业深化设计基础上进行机电深化设计BIM实施流程;
二、制定统—的BIM模型制图规则,如模型单元命名,颜色设置.模型的几何信息表达和属性信息表达.交付深度等;
三、各专业协同建模,图纸核查,问题反馈;
四、碰撞检查,模型优化;
五、管线综合优化(机电深化设计和综合优化)。
制定BIM实施标准
BIM实施标准主要分为两大类:—是项目模型标准,如项目命名.项目定位(项目基点、标高,轴网).单位.标注等,需要先制作一个统—的模板,作为各专业模型建模的模板;二是各专业建模标准,如构件分类.命名(族及族类型),机电系统划分及颜色管理(如下图)等。
根据深化设计要求,模型精度应达到LOD350,由于工作量.时间以及任务分工影响的关系,此次设计模型精度在LOD300-LOD350之间。
图 机电过滤器设置
各专业协同建模
正确的建模方式,应该分主次分批建立,对建筑物起重要影响作用的构件先创建,次要的部分逐步完善,以消防系统为例,,在创建喷淋和消防栓管道时,应优先考虑可能影响建筑物空间要求的主管径管道,其支管(管径小于65)管件可先忽略,待机电管线空间排布满足要求后,再将其补充完整。
模型的搭建需满足以下要求:
一、模型严格随着图纸、说明、系统图确定位置和标高﹔
二、要根据图纸系统来命名.缩写等;
三、标高要根据本层标高来上下偏移满足具体需要例如夹层或机房等等;
四、管道附件信息要根据图例来添加;
五、各专业添加过滤器,颜色根据标准来定,用颜色区分各个专业;
六、问题报告严格对照图纸与模型来查找问题报告。
管线碰撞检查
碰撞检查主要有两个目的:
—、检查各专业(建,结,水.暖、电)之间是否有结构性设计错误碰撞,是否满足规范要求,如空间要求,净距要求等;
二、管线综合排布前的总体碰撞检查。
管线碰撞检查应重点检查以下几点:
(1)各专业管线位置是否协调;
(2)各专业管线与机房、设备间等间距是满足规范要求;
(3)各机电管线和设备安装是否与建筑、结构相匹配:
(4)回风口与排风口位置是否满足规范要求;
(5)是否存在管线穿梁柱的情况;
(6)管线走向、净空是否可优化等。
如图1所示,桥架与消防水管发生了碰撞,属于机电专业碰撞,在这里桥架虽然已经进行翻转,但是仍然无法避让开与消防水管的碰撞。属于设计错误,最后通过分析,应该是改变桥架进入电井的位置。
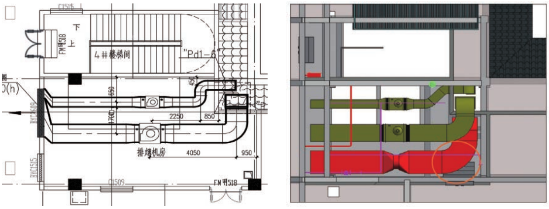
图2 管线排布的总体碰撞检查
图3 综合排布后的平面图
管线综合应用价值及结论
在BIM模型搭建和深化过程中,提前发现了项目中的“错、碰、缺、漏”等问题,及时记录并反馈问题,协调各专业管线碰撞后的问题,有效的控制了变更的产生。根据模型交底,帮助工人理解图纸及工艺,大大减少工期和不必要的返工。
在本次BIM深化中我们得知:BIM技术在建筑设计中比CAD更具优势,特别是在大型公共建筑、市政工程、地下空间等的设计当中发挥着巨大作用,BIM技术将会极大地推动建筑行业的发展。通过BIM机电模型与建筑模型的碰撞检查,优化设计与管道布置的原则,可提高图纸的设计质量,节约施工成本,合理配置资源。

BIM建筑网





