深圳南山实验教育集团麒麟中学位于南山区艺园路西侧,正云路北侧,周边高层住宅与高密度城中村环拥。校园现有用地20083㎡,为了满足校园规模扩大需求,将东侧原有的公益停车场7000㎡用地纳入校园,用地合并后校园总用地面积27083㎡,将现有36班增扩为48班办学规模,同时新建综合教学楼、行政办公、食堂、报告厅、体育运动设施及教师宿舍,扩建后总建筑面积为64125㎡,容积率1.40,同时为了保证校园整体性,需对现状教学楼立面和空间进行系统的提升改造。
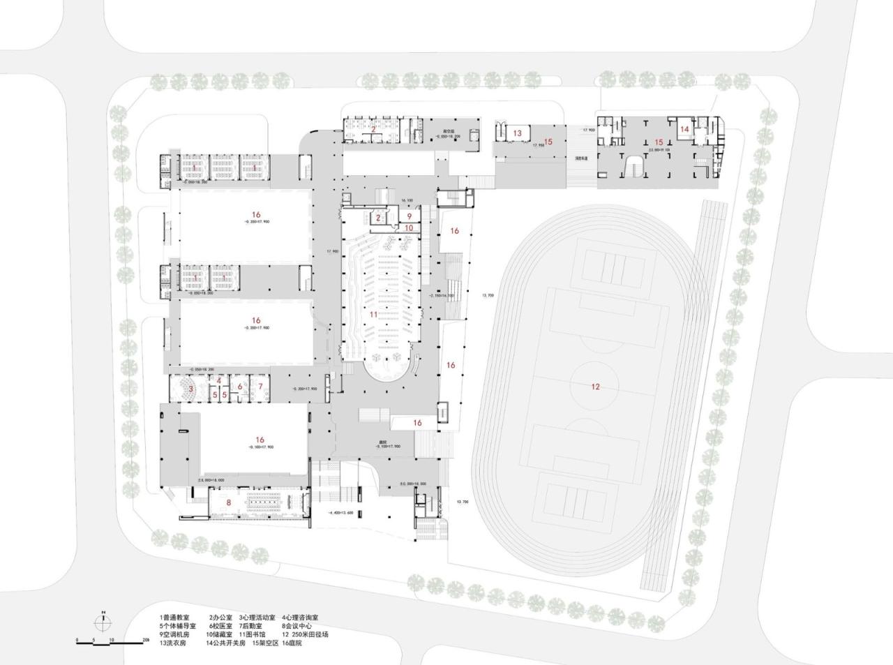
功能整合、合理分区现状教学楼布局呈典型的“日”字型结构,西侧三栋普通教室(ABC三栋),东侧附有图书馆、风雨操场、合班教室,北侧为教师办公与教师宿舍,现状主要入口从校园北侧引入。设计在遵循校园空间结构逻辑下,考虑到毗邻南侧高层住宅日照的遮挡影响,在此新增一栋六层专业教学综合楼(D栋),包括了专业教室、多功能教室、教师办公等功能,校园南北中轴链接四栋教学楼,串联起三个围合的教学庭院。另外,为了满足学校行政办公空间需求,在北侧原有办公楼东侧扩建一栋教师办公楼(G栋)与之相连。扩建后的D栋、G栋与原有建筑教学楼(ABC栋教学楼)共同构成了完整教学区。
设计将现状200米跑道增扩为250米并置于用地校园东侧,其北侧新建一栋15层教师宿舍(H栋),下部设置食堂及服务配套,形成了完整的生活运动区。因此改扩建后总体功能布局以校园中轴线为界,西侧为以年级为单元的教学庭院教学区,东侧为体育运动生活区,动静分区合理。另外,现状的公益停车场纳入校园用地之后,在新建建筑地下二层增扩停车位,设置不同出入口便于社区共享。
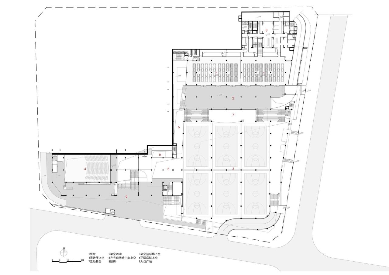
高差利用、空间拓展设计充分利用校园东侧南北2-4米地形高差,设置250米运动场大板,板下为食堂、风雨操场、架空运动、交通接送疏导中心;同时在新增教学第三内院下部设置800人报告厅,报告厅屋顶作为学生活动平台,与现有建筑首层标高持平。大体量的空间功能设置在地下或半地下层,最大释放地面活动空间。同时大板下部空间互相流通渗透,形成了全天候的共享开放公共空间;东南侧道路地形的高差变化,以及新旧建筑之间设置多孔的下沉庭院和天井,为运动场大板下部的大空间通风采光创造有利条件。
系统植入、有机链接校园新旧建筑并置呈现多栋分散布局方式,需要一个强有力的公共开放空间系统将各个教学单元体有机链接,形成校园空间整体性。大板之下的首层地面空间,设计强调西侧三个教学庭院与东侧架空活动空间、半地下空间的联通和渗透。
大板之上,新旧教学单元的交通与中轴形成循环闭合回路,并在二层建立与东侧开放空间、运动看台的联系廊桥和平台;同时二层的风雨操场现状封闭东立面改造为通透的格栅界面,强化教学空间与运动开放空间的交通和视觉联系,也满足学生课间十分钟可便捷到达运动操场。连廊、教学庭院和体育场看台、景观式台阶等元素整合构成了连续、流动、一体化的的公共开放空间系统,链接起教学、办公、宿舍、体育等不同功能新旧建筑,校园更显有机整体。
重塑中轴、活力界面现状校园布局呈典型的“日”字型结构,校园中央轴线串起西教学庭院和东侧图书馆、风雨操场、阶梯教室,均质化庭院空间缺乏识别性,而中轴廊道空间两侧界面封闭、单一,都造成了校园空间场所活力的缺失和乏味。设计重新塑造校园活力脊,将中轴廊道空间两侧界面透明化,扩大首层图书馆功能空间,同时结合教学楼局部架空空间设置展览、读书等功能,形成公共性、开放性活力中央廊道。
同时由于校园办学规模的扩大,为了缓解上下学瞬时交通压力,设计在校园南侧新增校园主入口,将新建建筑底层局部架空,退让出人行入口缓冲广场,形成“校园客厅”,构成了校园中轴的延续。三层通高并满足深圳地域气候特征的架空中央通廊与南侧校园客厅、北侧入口架空空间形成不同的轴线空间节点,凸显校园的主轴空间丰富性、完整性,营造校园中央廊道的场所感。另外,为了打破现状教学庭院均质、较为封闭的内部界面,在设计中通过将实体栏板改为栏杆,同时结合非正式空间节点的变化,形成了更为丰富、通透和立体的界面,提供有趣多变的视线穿越与空间体验。
校园改扩建工程涉及新旧之间的多层复杂系统的交互和重叠,设计在充分尊重现有建筑校园规划结构的基础上,以集约化的策略,克制性干预,在有限造价控制下,完成了新旧整合与有机链接,并通过校园公共空间系统的重塑,激发校园空间活力,使得校园面貌焕然一新。
项目图纸
△区位示意图
△总平面图
△负一层平面图
△一层平面图
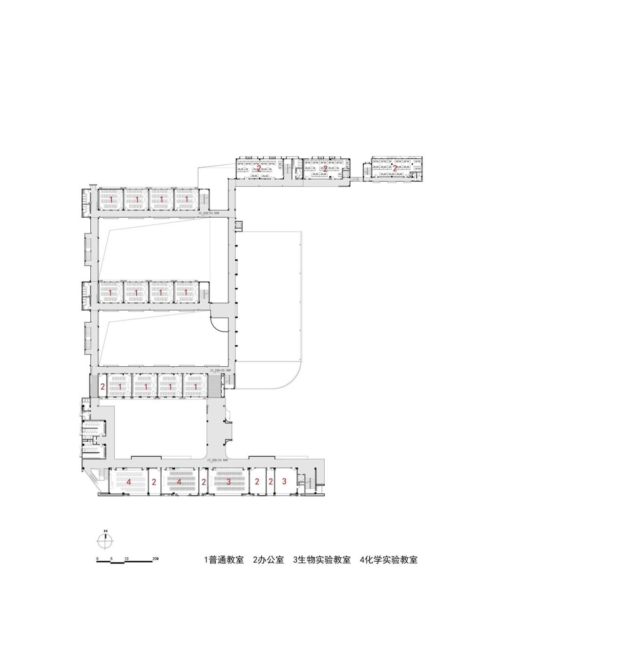
△三层平面图
△五层平面图
△立面图
△立面图
△剖面图
△剖面分析图
△轴测图
△透视图
△分析图
△原建筑图
项目信息
建筑师:元本体工作室
面积 :64125m²
项目年份 :2021
摄影师 :Qingshan Wu
厂家 : 立邦
主创建筑师 :蔡瑞定
设计团队 :蔡瑞定、黄润通、陈恒生、付玮、何伟勇、周雪梅、陈景文、邱红霞、毛文力、郑淑琪(实习)
施工图团队 :马越、姚远、孟美莉、韦鲜琼、陈景连、詹镇平、刘中平、王伟方、谢蓉、赖美蓉、王宏越、郭浩、唐进
地点 :中国,深圳

BIM建筑网







































