全球疫情启发了人们对于“健康生活”的再思考。自“生命在于运动”提出300余年以来,运动的价值于人类而言始终不可替代,它指向健康、活力,指向鲜活的生命体验。
2021年国务院印发《全民健身计划(2021-2025)》,“全民健身”的号召之下,体育建筑呈现大众化、专门化、多元化的趋势。在当下,体育建筑早已不局限于以市级、省级行政区划配建的大型综合型体育场馆,而是充分渗透入人们的生活之中,有着多样的演绎。它可以是集运动与娱乐为一体的特色场馆;可以是自然美景中的特色体验环节;可以是为社区人群服务的小型体育hub。
夏初之际,goa大象设计精选呈现体育建筑作品。尽管体量不一、形式多样,“将运动乐趣渗透进大众生活”是这些建筑共通的使命——以体育活动为触角,融合文化、休闲等多元功能,最终带给使用者“更为健康、更有活力的生活方式”。
天台山雪乐园:融于山景的综合性冰雪场馆
天台山雪乐园坐落在以“佛宗道源、山水神秀”享誉海内外的国家5A级风景名胜区天台山,地处800米海拔的山峦腹地。场馆内设初级雪道、雪圈滑道等设施,是台州市首个综合性冰雪主题乐园,也是一座融“运动与文旅”于一体的特色建筑。
△ 场地关系分析
建筑师意图使场馆与自然山景相融合。一组宽大的室外平台将场馆与山体、道路相衔接。曲线形式的平台如同套在场馆体量上的蜿蜒绸带,既解决了流线问题,又提供了多角度的观山视角,为底层带来丰富的灰空间。
立面灵感来自“莲”的意象。“看取莲花净,应知不染心”——莲花作为佛教文化元素,与天台山淡雅高远的山景意境相谐。建筑师抽象转译“莲”的形态,以白色穿孔铝板和实面铝板拼接形成几何折面。穿孔板图案是犬牙交错的“六边形”,呼应“雪花”之形。
项目信息
项目名称:天台山雪乐园
设计单位:goa大象设计
所在地:浙江省台州市
设计/竣工:2018-2021
建筑面积:19400㎡
图片版权:goa大象设计、顾振强
雅达体育健身中心:在运动中体验风景
雅达体育健身中心位于江苏宜兴阳羡溪山小镇,与小镇内其他设施共同构筑起6000亩山水田园中的天然健身运动场。场地自然景观极为优越:面朝阳羡湖,背靠独具特色的矿坑崖壁,远眺丘陵与平面交织的自然地貌。
建筑被视作收纳景色的“容器”。位于二层的游泳池被设想为一个悬浮的盒子,嵌于建筑体量之中,构成入口的鲜明形象。泳池分为室内与室外两区,连成一片近50米长的深远水面。为强化通透感,室内泳池区的水面标高以上皆为玻璃面,6米宽的玻璃单元以悬吊外框的方式固定,最大程度上保证游泳者获得“无阻碍”的观景视线。
置身泳池之内,平静的水面镜像出近处的岩石、远处的山峦与天空,明暗交错中,人如在崖壁远山间游弋。黄昏时分、微光之下,水中的镜像愈加突出,人与岩石、风景对话的感受更趋极致。
△ 黄昏时分的泳池 ©张锡素材来源:WJ STUDIO万境设计
游泳池之外,体育中心还内设健身房、高尔夫球练习室、乒乓球室,室外设有篮球场、网球场、极限运动区等。多元的运动功能,让体育馆成为片区的活力中心,吸引居民及游客来此享受自然风景中的运动体验。
项目信息
项目名称:雅达体育健身中心
设计单位:goa大象设计
所在地:江苏省宜兴市
设计/竣工:2019-2021
建筑面积:4869㎡
图片版权:goa大象设计、WJ STUDIO 万境设计 、张锡
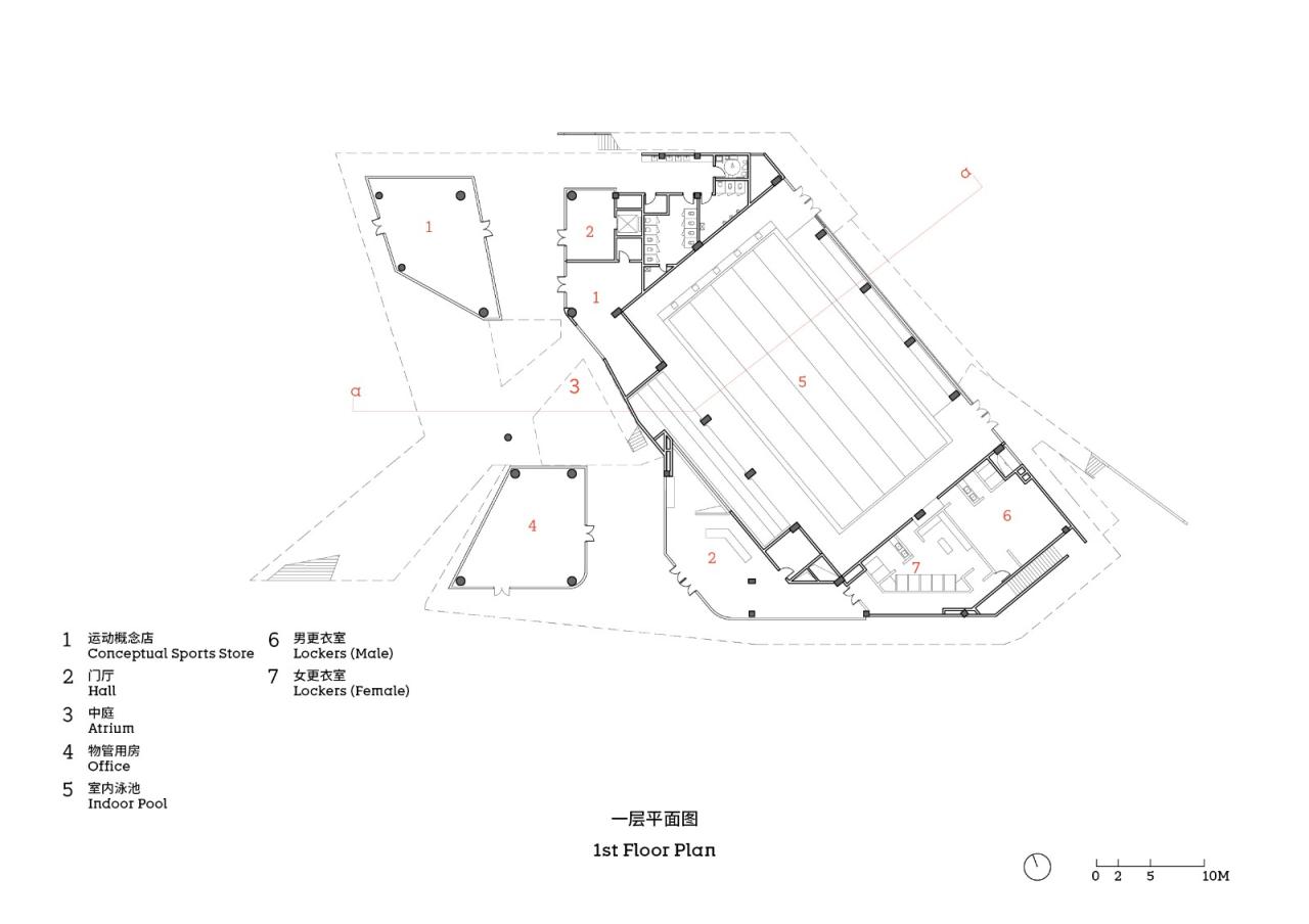
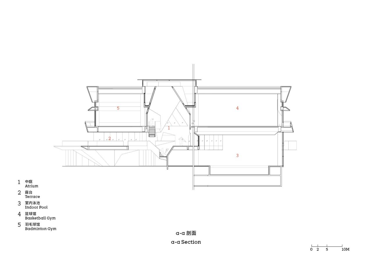
森与海体育馆:运动社交综合体
森与海体育馆位于杭州萧山区森与海小镇核心位置, 是一处典型的小体量社区体育馆。小镇居民以90后新世代人群为主,建筑师思考“新世代人群”的行为特征,向当下运动场馆的“封闭状态”发起质疑,提出塑造一座“社交型运动场馆”的愿景。
设计概念意为“交流之心”。建筑底层架空,外部街道穿越建筑,建筑首层成为地面公共空间的延伸。游泳馆、羽毛球馆等运动场馆围合出一个三角形的中庭,是人们来往穿梭的必经之路,如同整座建筑的“心脏”。
建筑师通过色彩、光线的设计,塑造中庭的活力与戏剧性。活泼的橘黄色系如同生长出的枝桠,从中庭延续至整座建筑的公共空间,包括入口的大台阶、露台、底层架空空间。它们与建筑外表的暖灰色调形成强烈对比,吸引街道上漫步的人群往里窥探一二。
错动的形体与广场空间形成了积极的互动关系,也为商业提供了外摆区域。运动场馆不再只是一个个封闭的功能空间,而是以运动为媒介,为人们提供更多交流、相遇机会的活力纽带。
通过对新世代人群运动场景与社交场景的再思考,建筑师重新定义了运动场馆的空间形态——不只是运动馆,而是运动社交综合体。
项目信息
项目名称:森与海体育馆
设计单位:goa大象设计
所在地:浙江省杭州市
设计/竣工:2020-2022
建筑面积:4899㎡
图片版权:goa大象设计

BIM建筑网







































