2017年,一项支持婚姻平等的全国调查促使澳大利亚议会通过了同性婚姻合法化的法案,这是 LGBTQI+群体争取平等的重要里程碑。同年,非营利机构Victorian Pride Centre获得维多利亚州政府的支持,建造澳大利亚首个专为LGBTQI+人群而设立的活动中心——维多利亚傲娇中心,随后为选址在St Kilda区Fitzroy街的该项目举办了一场公开的建筑设计竞赛。
2018年1月,BAU Brearley Architects+Urbanists (Melbourne-Shanghai) 和Grant Amon Architects凭借优秀的设计方案脱颖而出,成为竞赛的优胜者。
傲娇中心不仅是LGBTQI+群体的活动中心,也为其他群体提供会议和活动场所。建筑内设有共享办公空间、健康和福利中心、书店、剧院、档案室、屋顶露台和一个艺术画廊。咖啡厅、屋顶活动馆和社区花园也将于2022年陆续完工。
为了不断完善设计方案,BAU和GAA邀请目标群体和当地土著居民参与研讨,从而使设计团队对当地的认知更加全面充分。我们最终的设计愿景是将傲娇中心打造成澳大利亚向包容性社会前进的重要标志,并使其成为一个充满人文关怀、令人感到安全的场所。在这里,人们也将更有勇气去追求自由、平等与包容。St Kilda的文化精神和LGBTQI+人群不断寻求改变的想法为傲娇中心的概念设计搭建了基础框架。
St Kilda开放的性别文化吸引了大批LGBTQI+群体聚集。在对St Kilda历史文化进行大量研究后,我们将其特有的异域风格、丰富的艺术文化、超现实主义和一系列当地传统文化,抽象地融入傲娇中心的设计。Fitzroy大街、海滩、浴场、月神公园、卡塔尼拱桥、滨海拱顶、歌舞厅和其他历史遗迹,都是我们的灵感来源。
建筑空间由虚拟的巨型管道拉伸而成,空间抽象且稳固持久,不仅最大化建筑外壳,还创造出兼收并蓄的建筑空间和井然有序的拱门形态。为了处理这些虚拟的巨型管道,我们推演了城市问题,并从傲娇中心任务书中提取及增添细节。内部功能对管道的影响越多,建筑的形式和空间就越多样,最终塑造成一个包容且丰富的惊喜之作,并诞生了一种不断变化、始终处于前进的感觉,展现LGBITQI+群体为争取平等、自由而进行的不懈斗争。
VPC业主说:“VPC建成后,吸引了很多人前来参观。随着自动大门滑动打开,人们会发现这栋建筑将Fitzroy大街的街景与室内的礼宾台、傲娇画廊和会场无缝衔接在一起,引导人们直达中庭,并通过中庭感受到这栋建筑的热情,成为社区的一部分。中庭不仅是演讲者的讲堂、现场DJ的舞台、摄影爱好者的取景地,同时也是可以让人们冷静思考的地方。丰富多样的纹理和材料,提供了触觉体验,为用户和游客创造了舒适和安全感。而且,这栋建筑给人带来一种无限可能的感觉,这在LGBTIQ+空间里是必不可少的。”
维多利亚傲娇中心意图超越传统用途和空间,挑战规范和阶级制度,创造灵活且不断发展的项目。交通流线围绕椭圆体中庭设置并向外发散,巨大的天窗为中庭提供充足的自然光线,大台阶不仅连接着上下空间,也是表演舞台和非正式圆形剧场,多样化的设计使其成为建筑中心的动态焦点,清晰易读。
结构性与非结构性的构造简单明了,哪些结构不能改变,哪些可以随意改动,全部一目了然。
我们将室内的原始结构混凝土和裸露的设备管线与暖色系材料相结合,如木材、彩色陶瓷和天鹅绒窗帘。这些共存进一步加深了包容美学的概念。
建筑中还设有一些类似于巷道门店的小型工作室。这些工作室的‘门面’采用了木质框架,墙壁上悬轨道和轨道照明,让人们在这温馨如家的地方舒适自如,表达真实的自我。
环境可持续设计
建筑环境可持续性记分卡(BESS)工具已被广泛的应用于测试基准性能。下面的汇总表突显了该项目取得BESS打分系统的最高级别“卓越级”。BESS的打分系统是测量一系列设计中采用的ESD具体措施,其结果等同于绿建5星或更高水准。
BESS评估类别项目分数
运行管理100%
节水50%
节能85%
雨水收集100%
居住环境质量33%
可持续交通50%
废物处理66%
城市生态环境62%
创新100%
总分71%
团队在ESD上采用了以下关键原则,并以此作为设计方案的基础:
– 尽量减少自然资源的消耗,包括水和原材料。
– 尽量减少施工对环境的影响,包括建筑材料的能耗和生态成本。
– 尽量减少运营对环境的影响,包括能源消耗、废物产生和污染物排放。
– 保持舒适的内部温度,同时尽量减少能源消耗,全年提供舒适的办公环境。
– 创造健康的环境,减少胶水、密封剂和油漆中有害挥发性化合物的使用,并防止灰尘和其他外部空气污染物。
– 提倡可持续的、综合的、便捷的出行方式。
– 可持续环保的设计,避免过度建造并简化维护需求。
– 促进城市生态。
截止到2022年7月25日,VPC已荣获:
2022年澳大利亚建筑师协会维州公共建筑最高奖-威廉·华尔德奖
2022年澳大利亚City of Port Philip设计与发展奖-公共建筑奖、室内设计奖和可持续发展奖
2021年澳大利亚ARCHITEAM大奖-最高建筑金奖及商业、社区和公共建筑类别奖
2021年DRIVEN x DESIGN 墨尔本设计奖公共建筑类别金奖和最佳设计荣誉称号
项目图纸
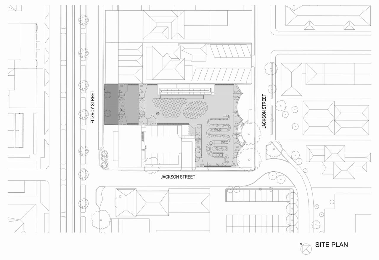
△总平面图
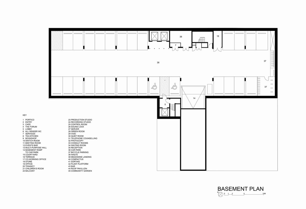
△地下一层平面图
一层平面图
△夹层平面图
△一层平面图
△二层平面图
△三层平面图
△四层平面图
△立面图
△立面图
△立面图
△立面图
△剖面图
△剖面图
△分析图
△分析图
项目信息
建筑设计和室内设计:BAU建筑城市设计事务所(墨尔本-上海)与Grant Amon建筑师事务所
建成日期:2022年1月19日
地点: 澳大利亚,墨尔本,圣基尔达,菲茨罗伊街77-81号
年份: 2017-2022
客户: 维多利亚傲娇中心
建设投资: 3500万澳币
建筑面积:6200㎡
功能项目: 公共共享办公空间、多功能剧院、FM94.9电台、画廊、医疗诊所、6间共享会议室、带有酒吧的屋顶露台、社区花园、书屋、咖啡屋、儿童游乐房、租户公用办公空间、4间茶室、澳洲同性恋档案馆、墨尔本同性恋电影节举办场地、LGBTQI+服务机构的办公空间等。
BAU竞标团队:James Brearley, Steve Whitford, Jens Eberhardt (Partner in Charge), 陈志勇,
BAU施工图团队:James Brearley, Steve Whitford, Jens Eberhardt (合伙人), 陈志勇, Prague Unger, Adrain Coleiro, Manny Houdek, 李旭丰
GAA竞标团队:Grant Amon; Stephen Herbst; Estelle Peters; Karen McMull
GAA施工图团队:Grant Amon; Stephen Herbst; Tony Trajikoski; Yiyang Xu; Bruno Rabl; Junbo Qu; Roberta Caione; Millicent Baddeley.
地方委员会:菲利普港市政府
城市规划师:SJB规划
项目管理:Case Meallin / Bates & Co
工料测量师:Slattery
结构工程师、机械工程师、液压工程师、电气工程师、立面工程师、交通工程师、消防服务、消防工程师:WSP
声学工程师:Resonate
ESD顾问:Hip v. Hype
建筑测量师:Checkpoint建筑测量师
景观设计师:BAU建筑城市设计事务所(墨尔本-上海), Thompson Berril景观设计
建造商:Hansen Yuncken
照明顾问:Schuler Shook
结构概念工程师:Peter Felicetti
材料商:中庭预制-Shape Shell,预制混凝土立面-Auscast Constructions, 吸声灰膏- Fade Australia
建筑拍摄:John Gollings
VPC开幕记录:演讲拍摄Luke David、观众拍摄Anne Papadakis
图解:BAU

BIM建筑网

































































