沙金小学,位于重庆市渝北区沙金村(现两江新区协同创新区)的明月湖畔,建于上世纪80年代末,作为曾经的乡村小学,废弃于21世纪初,现将其改造为抗战大后方高校内迁馆及配套公共服务空间。
△原建筑
△原建筑
回应:与自然的诗意共鸣在场地处理上,因地制宜,利用场地东侧原有操场形成上下两个台地关系,上部平台连接建筑主入口,下部平台拥有良好的休闲氛围和滨水开阔的视野;在建筑西侧引入五个交错叠合的观景平台连接高低两处地势,让建筑顺应地形条件的同时还能营造过渡式的公共漫游体验。在景观设计上我们秉持生态修复的观念,在保留场地原有地貌和大片植物的前提下,尽量采用原生态的、富有野趣的草木。
新旧:时间的凝固与流动原建筑主体为三层砖混结构,建筑师采用“轻介入”的结构策略,新置入钢结构体系协调新旧结构之间的关系,使其既与原有体量相互搭接融合一体,实际又独立承受荷载。在东侧展览馆入口处增加连续折面的坡屋顶形成展廊灰空间,营造进入空间的仪式感的同时柔化了原本建筑生硬的室内外边界。
借景:回归日常的趣味场地东侧的入口处有一条约30米长的坡道连接了上下两块台地,在坡道的末端保留了原场地的一棵遒劲挺拔的古树,与岸边的一排构树群形成互望对景之势。站在室内二层的楼梯平台上亦可直接看到建筑入口处的景观布置,形成看与被看的关系。建筑的内部空间则是采用了远借的手法,在室内向外眺望,感受“无数峰峦远近间”,移步换景,举目皆景。
文脉:场所精神的延续闲置废弃的沙金小学曾经是乡村中孩子们的基础教育设施,改造后则作为宣传抗战时期大后方高校内迁那段波澜壮阔历史的展览馆。从原有的乡村教育功能到当下的历史展陈教育,这不仅是功能的置换、空间的复兴,更是一种文脉的传承,是空间场所精神的延续。
展望:村小的现代性探索教育阻断贫困代际遗传,是改变乡村的起点,而建筑师的介入是重新谱写乡村基因的密码的关键。实体空间的留存是对过去岁月的凝望和纪念,而记忆空间中留存的是山的味道,风的味道,阳光的味道,也是时间的味道,人情的味道。
项目图纸
△总平面图
△一层平面图
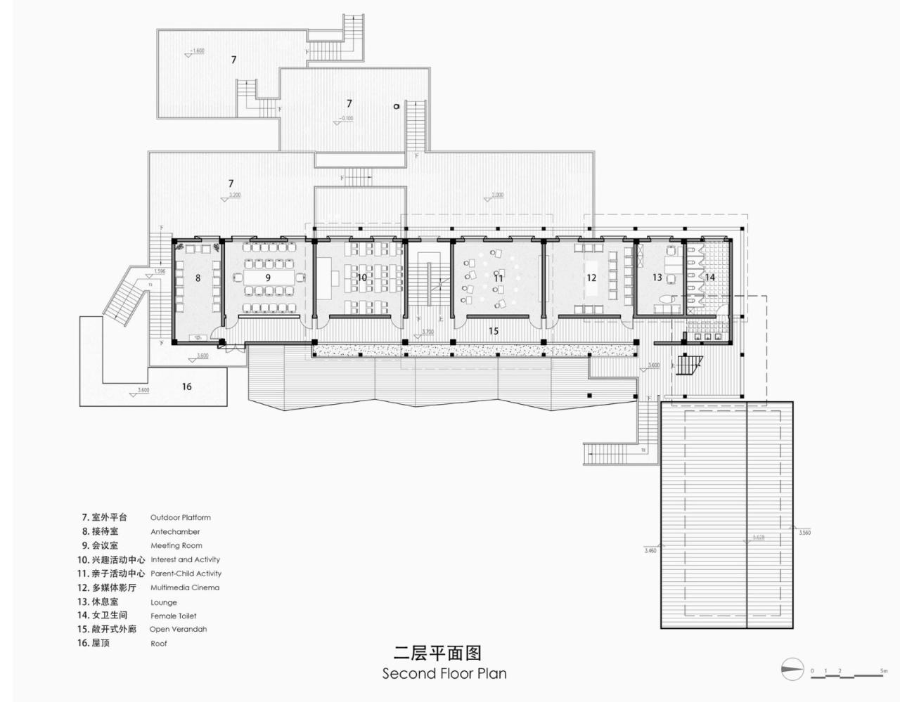
△二层平面图
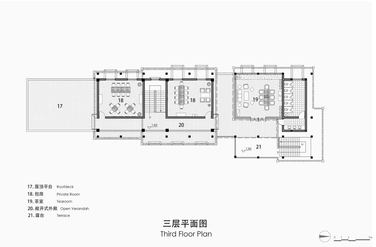
△三层平面图
△立面图
△立面图
△剖面图
△轴测图
项目信息
建筑师: 悦集建筑
面积 : 1450 m²
项目年份 : 2021
摄影师 :Prism Images, Qi Tian
主创建筑师 : 田琦,何飙,李骏
设计团队 : Liangqing Wan, Jian Guo, Xu Liu, Yuzhan Weng, Jing Sun, Zexi Lu
业主 : 两江协同创新区建设投资发展有限公司
施工图绘制单位 : 重庆何方城市规划设计有限公司
地点: 中国,重庆

BIM建筑网











































