这是一座由 Haverstock 设计团队与吉尔福德(Guildford)市政厅通力合作,新建而成的火葬馆。由于旧火葬场已经寿终正寝,几乎没有改造的余地,于是便有了这个除旧更新的建筑项目。
作为一座已开发的建筑,该场地尚有几个现存的限制因素,包括地下埋葬的骨灰、纪念树、1902 年火葬场法案(Crematorium Act 1902)所规定的建筑控制线,以及控制线内的一栋列入文物保护范围的建筑。除此之外,客户还希望在整个施工过程中继续该场地的运营,致使最终的阶段划分战略变得格外复杂,并多了临时教堂/殡仪馆的安排计划。
为了完成任务,阶段划分战略由客户、设计团队以及承包商共同筹划并实行。该战略从建立新的工具车间开始,并兼任一个蝙蝠保护区,然后是停车场、临时教堂和火葬场的建造工程。 在进行这些工程的同时,纪念庭院也建成了,其后进行的是主楼的拆除和建造项目。
建筑和景观的设计理念都以现有场地的访客范围为出发点。哀悼者的体验经历,是火葬馆的设计所探讨的核心。火葬馆还照顾到了那些经历着不同悲伤阶段的人,包括为他们制定的葬礼安排、观看棺材下葬的选择权、仪式后的骨灰收集,以及还能重回故地,纪念死者的未来。
该建筑使用了围墙花园的类型学,建筑的砖砌石墙为纪念花园内的人间隔了内部和外部空间。混凝土横梁在墙壁与柱子的顶部设置了一条坚实而连续的基准线,在基准线上,高高突出两块几何形的建筑体量。这两个体量由木材制成,并由锌板覆面,指向出火葬馆的两个主要功能空间,教堂和火葬场。
在教堂内,院子里的景观依旧吸引了人们的目光。裸露的工程木制屋顶结构成为一个干净而实用的室内装饰,并通过高层的纵向天窗,为空间提供了额外的自然光。它的外观形式与宗教建筑类型相呼应,同时保持着对现代用途的细致思忖。通过对用户的步行之路以及送葬路线的测算与设计,从而形成教堂外具有引使功能的双面几何物体。
教堂内,灵柩和棺材放置于一个低低的罩棚下,被垂直的橡木覆板所包裹,为人们营造出一丝温暖和亲密感。该(垂直的橡木板)特征被延伸到了教堂大厅、办公招待区和外部雨棚。
火葬馆中常见的麻烦是在一天内不间断地进行葬礼。导致了首尾相继的情况。在好的情况下,它可能只是导致葬礼过程混乱,但在坏的情况下,这可能会使人感到困扰和痛苦。为了减少葬礼交叉的可能,吉尔福德火葬馆将主建筑的不同功能元素分离出来,形成一个个纪念庭院,为人们精巧地设计出能够反思、独处和回忆的空间。
吉尔福德市政厅作为这座新设施的运营者,以 1000 万英镑的预算自发启动了这个项目。
项目图纸
△模型图
△基地示意图
△总平面图
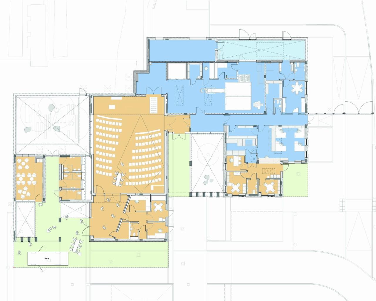
△一层平面图
△立面图
项目信息
建筑师:Haverstock
面积 :748m²
项目年份 :2020
摄影师 :Simon Kennedy Photography
厂家 : RHEINZINK

BIM建筑网






















