现存的屏东市公共图书馆建于1983年,是中国台湾“民主化”之前建成的一座典型公共建筑。在图书馆原先的设计中,最大的问题就是其主入口与城市主干道没有直接联系,导致整座建筑几乎完全从城市中隐没。
因此在图书馆的改造中,我们在现存建筑的西立面构想了一个全新的、透明的门廊。从城市尺度而言,这使得建筑的朝向旋转了90度并面向城市开放,从而重新与市民的日常生活相联系;从建筑尺度而言,门廊如同一个巨大的窗户,将建筑的室内与室外相联系,既对外向城市展示了图书馆内部正在发生的活动,又向内引入了图书馆周围环境的景观,为室内氛围增添了一抹生机。
新的门廊是一个平行四边形的开放平面,整体用连续的V形钢结构支撑。在平面内布置了多个三角形元素的“活动岛”,包括一个下沉式座椅区,一个悬浮的夹层和一对悬挂的巨大灯笼。
这个新的门廊通过形式、材料、颜色和社会文化意义的综合运用,实现了对屏东的土著住宅形式“石板房”的现代转译。
在现存的图书馆内部,我们去除了曾经占据建筑中央位置的纪念性混凝土楼梯和紧凑的书架,从而创造了一个供老年人和孩子们使用的双层层高的空间。此外,我们通过引入自然材料、现代家具和玻璃隔断,为空间带来了流动性、透明性和人们与图书馆之间的亲密感。
青少年阅览区位于建筑的中心位置,在新的建筑功能组织中扮演着重要的角色,它是用充满趣味的楼梯、座位和桥连接了多层楼板的一个复合功能空间。
项目图纸
△原始肌理图
△改造后肌理图
△区位示意图
△原始一层平面图
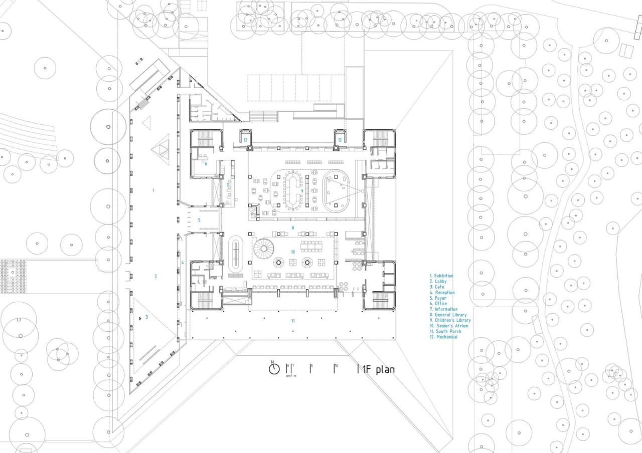
△一层平面图
△原始二层平面图
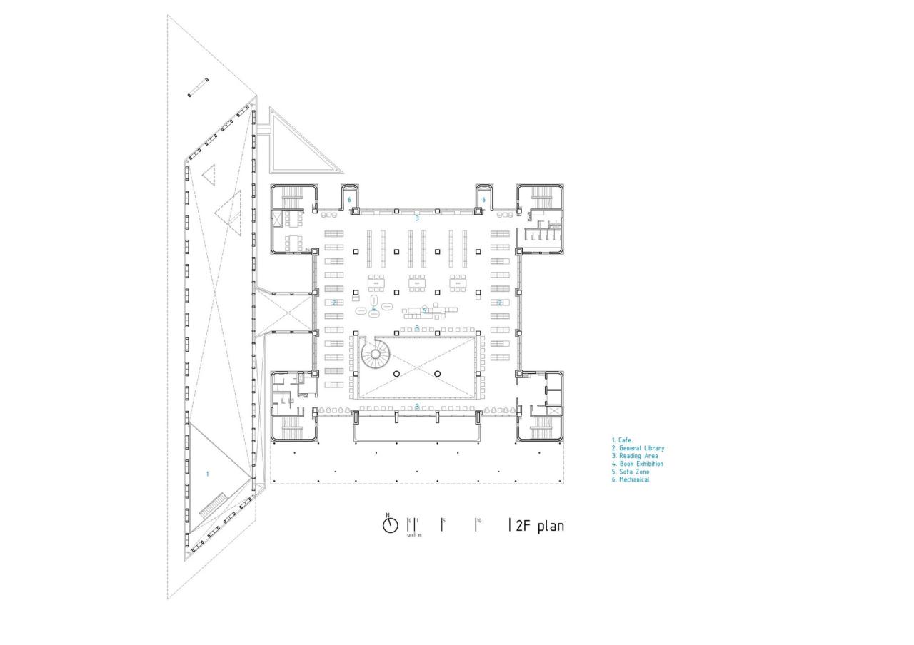
△二层平面图
△原始三层平面图
△三层平面图
△原始四层平面图
△四层平面图
△原始五层平面图
△五层平面图
△原始六层平面图
△六层平面图
△剖面图
△剖面图
△剖面图
△剖面图
△立面图
△立面图
△立面图
△立面图
项目信息
建筑师:MAYU architects
面积 :8597m²
项目年份 :2020
摄影师 :Yu-Chen Chao
主创建筑师 :Ma lone Chang, Yu-lin Chen
概念设计 :Ya-yun Wang, Ya-zhi Kuo, Ya-jue Li, Chia-ru Lin, Fei-min Chang, Chia-hua Lee
设计开发 :Ya-yun Wang, Che-sheng Wang, Ya-jue Li, Chia-ru Lin, Fei-min Chang, Che-kang Liu, Ting-yi Lo, Pin-min Huang, Min-ru He, Li-chi Yeh
施工图 :Ya-yun Wang, Che-sheng Wang, Min-ru He, Chia-ru Lin, Kuan-Hsien Li, Jui-hsiang Hsiao, Yu-wen Huang, Pai-fu Kuo
地点 :中国,台湾

BIM建筑网























































