这座具有纪念意义的带地下室的两层建筑,位于风景如画的考纳斯中部两次世界大战之间的旧别墅区。新房子的构成保持了考纳斯现代主义的精神,混凝土面层上设计的圆形窗户给建筑带来了现代主义的印象。由两个体量组合成的的钢筋混凝土住宅被嵌入一个颇具表现力的下降地形中,因此建筑本身只会进一步突出地块的坡度。
这个矩形的地块被景观丰富了起来,而垂直的镂空混凝土栅栏为人行道引入了较小的尺度。
卓越的建筑以令人印象深刻的混凝土立面示人,展现其自然之美,而其粗糙的工业纹理被玻璃软化,与玻璃的轻盈和脆弱形成鲜明对比。这座建筑以其干净、原始的形式给人留下了深刻的印象。建筑体量分为三层。第一层是通往地下室的通道,那里设计了一个可容纳八辆车的豪华车库。地块上没有多少能容纳停车位的空间。
部分开放的地下室的楼梯通向建筑物的一楼和地块的内部空间。房子的一楼分为两部分:玻璃和一个独立单元。自成一体的三楼中控台悬挂在玻璃部分上方,且由于玻璃立面的缘故,看起来像是悬在空中一样。一楼有一个带衣柜、楼梯和电梯的宽敞大厅以及厨房、餐厅和客厅。
一旦经由建筑物的玻璃部分进入建筑物,内部空间就会打开 – 透过玻璃可见的内院和露台,增强了体量的悬浮印感。露台另外设计有矩形混凝土支撑,和立面上重复的圆形开口。
内露台上方的二楼是悬臂式的,因为一楼仅由大厅空间占据。二楼设计有两间带独立浴室和步入式衣橱的豪华卧室。房子二楼的卧室窗户用独特的垂直混凝土板条遮蔽。这样的元素不仅打破了这个具有雕塑感的建筑,还缩小了它的尺度,并使立面变得活跃而柔和。在建筑物的屋顶上设计由一个太阳能发电装置。
项目图纸
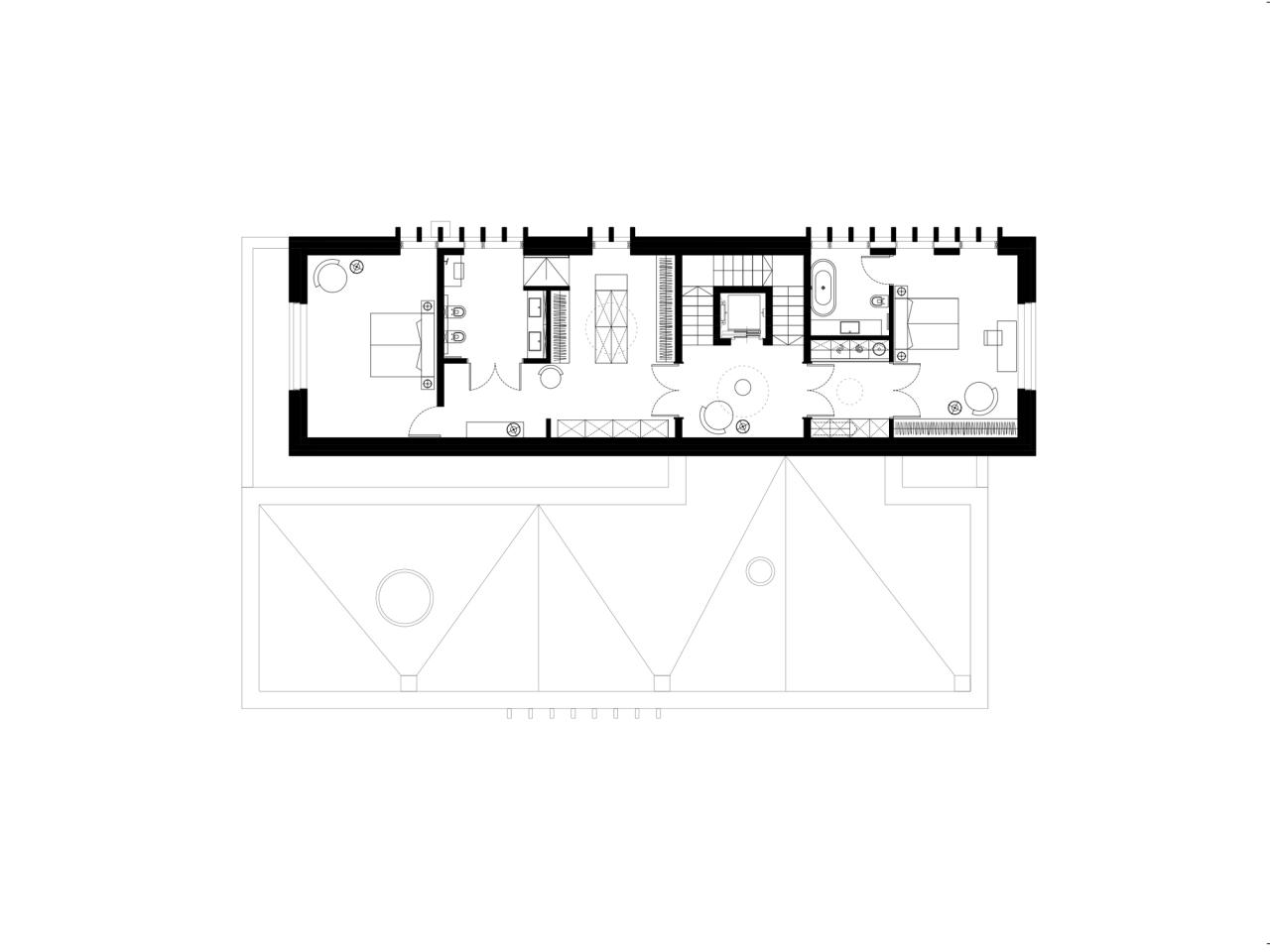
△一层平面图
△二层平面图
△立面图
△立面图
△立面图
△立面图
△剖面图
△剖面图
项目信息
建筑师:Architectural Bureau G.Natkevicius & Partners
面积 :564m²
项目年份 :2021
摄影师 :Lukas Mykolaitis
建筑师 :A. Rimselis, G. Natkevicius
室内设计师 :E.Riaukaite, V.Giedra, I.Kinduryte, E. Mamedovaite
景观设计师 :A.Grabauskiene
结构工程师 :S.Milisauskas
地点 :立陶宛,Kaunas

BIM建筑网







































