基调邓迪位于泰湾北岸,历史悠久,是从北欧航运到苏格兰的主要入口点。落成后的邓迪 V&A 博物馆就如皇冠上的珍宝,也是从 2001 年开始、为期 30 年、耗资 10 亿英镑的邓迪滨水区改造开发项目的核心。该滨水区沿泰河及其河口延伸 8 公里,占地 240 公顷。博物馆建筑位于安置过邓迪繁华海上基础设施的区域的中心,即格雷伯爵码头拆除后的遗址之上。邓迪 V&A 博物馆引人注目的形式将邓迪的心脏区域与泰河重新联通,回应了造船和纺织品贸易作为其经济命脉的过往时代。博物馆旁是 Slessor 花园,一个举办现场音乐和活动的全新公共公园,以及发现号(RRS Discovery),这艘探险船在邓迪建造完成,从1901年至1904年由 Scott 和 Shackleton 掌舵,航行到南极洲。
建筑 -形式博物馆的造型受到苏格兰东北海岸线悬崖的启发,建筑师将弯曲混凝土墙周围水平延伸的预制混凝土所形成的戏剧性线条作为覆层,创造出了随天气和时间变化的阴影图案。邓迪 V&A 博物馆的外观是两个倒金字塔——两者在底层分开,尔后借由上部的画廊层扭转相连。这一做法创造了一个穿过博物馆中心的开放式拱门,将城市与河流重新连接,框定了泰河的视野;建筑师还参考了曾存在于附近的纪念性皇家拱门,该拱门的建造是为了欢迎维多利亚女王和阿尔伯特亲王的 1844 年来访。
当城市的码头填满时皇家拱门就被拆除了,以给泰路桥的建设做足准备,这一工程最终于 1966 年完工。邓迪 V&A 博物馆的提出了设计挑战,希望建筑师将市中心与河流重新串联,隈研吾则通过博物馆周围的水池和将博物馆直接建造在泰河上这两个方式,来达成项目的设计要求。一个“船头”俯身于水面,让人想起这座城市的造船遗产。
结构隈研吾雄心勃勃的设计方案对工程师和施工人员都提出了要求。这是一个独特而复杂的结构,外墙既水平又垂直扭曲,形成波浪或船体的造型。 自竞赛阶段以来,一直参与该项目的工程公司 Arup 就与作为建造方的 BAM Construct UK 和项目管理的 Turner & Townsend 密切合作,以将隈研吾的愿景变为现实。工程师设计的最初方案是建设嵌入了巨大钢片、厚达 60 厘米的墙壁。随后,通过 3D 模型和分析工具对建筑造型的测试,工程师团队最终将墙壁厚度减半,并用更薄的钢筋代替了内部的钢骨架。
建筑结构的功能类似于外壳,其是一个连续且相互连接的结构。屋顶、墙壁和地板共同作用,使建筑变得稳定。虽然墙壁的扭曲和折叠或许被视为问题,但工程师们却将这些复杂性视作加强建筑物的有利要素,就像折纸是依赖折叠变得更加坚硬那般。而要了解这些细节会对建筑的整体结构产生什么影响,三维和分析模型就变得至关重要。整个建筑的集成3D模型被用作一种协调工具,也就意味着参与施工的建筑师、工程师和承包商都可以研究他们将要建造项目的数字版本。
最终完成的结构仍忠实于最初赢得比赛时的非凡设计——最大的悬垂屋顶延伸了 19.8 米之远,令人印象深刻,甚至超出了博物馆的占地范围。博物馆建筑由在上部连接的两个独立部分组成,巨大的钢梁将外墙连接到两个核心块,以提供支撑;单梁的最大张力大约可支撑 40 辆双层巴士。博物馆下部一分为二,将公共区域与物品交付、准备和员工宿舍分开,而靠上的顶部二层则提供了巨大且不间断的画廊空间。较低层的结构分离也使外部人行道能穿建筑中间而过,也就是一个将河流连接到城市的拱门。
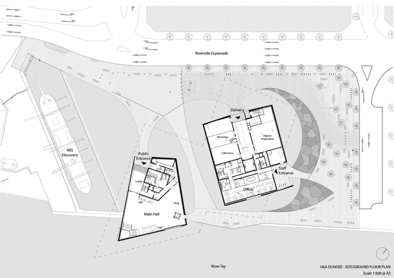
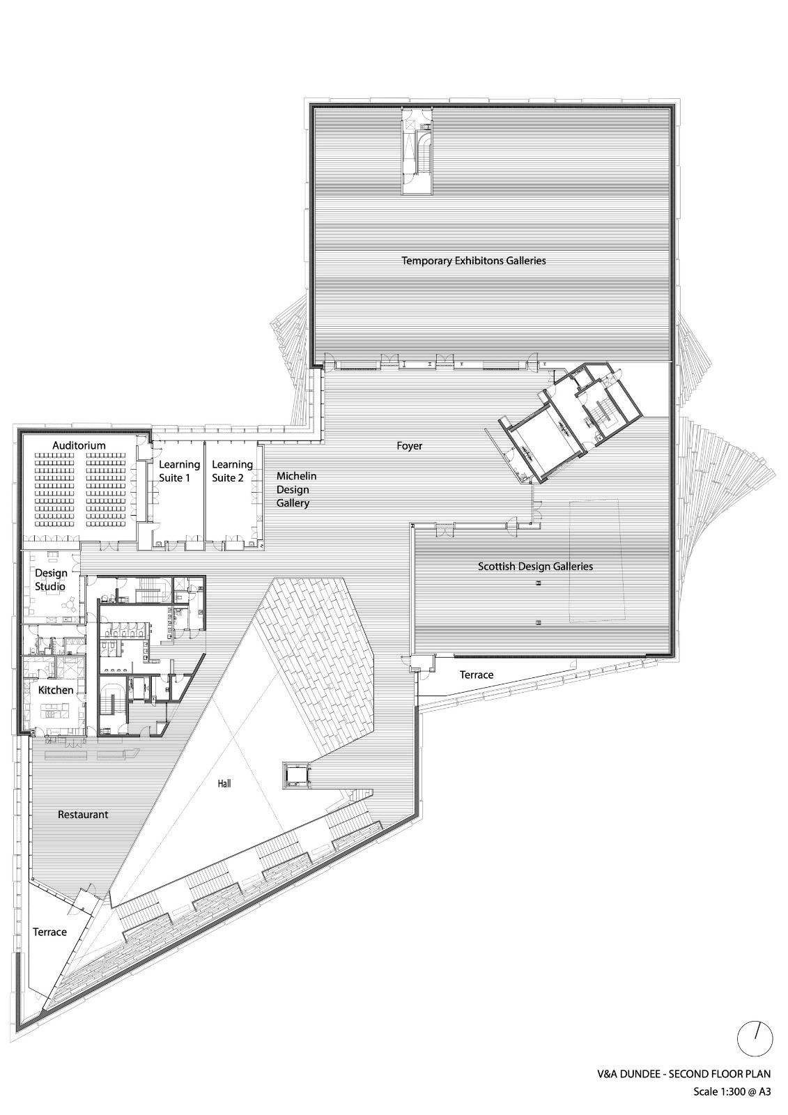
空间 -邓迪 V&A 博物馆的建筑面积为 8445 平方米,包括主厅、学习中心、礼堂、展览馆和永久性的苏格兰设计画廊。在较低层,这些功能空间被安排在两座独立的建筑内,并在上部两层联通在一起。来访者通过一个宽敞而美丽的主厅进入博物馆,这是一个光线充足的空间,建筑师意在借此表达欢迎并提供访问的可能;这也是一个充满活力的地方,咖啡馆、商店和其他游客设施都满足了来访者的社交需求。阶梯式的内墙衬有悬挂的橡木贴面面板,贯穿整个槽窗,营造出动感、温暖且俏皮的光线氛围,来访者也可在此观赏河景。
主厅和楼梯的地板铺设了卡洛爱尔兰蓝石灰石,其中包括了数百万年前的海洋生物和植物化石。建筑师同时选择了带有化石细节的深色石材,以在整个建筑中延续与海洋和自然的联系。当来访者登上顶部的两层,玻璃电梯提供了壮观景色的观赏视野。咖啡厅、餐厅和商店收银台都使用了白色混凝土,以致敬泰河濒临灭绝的淡水珍珠蚌。混凝土杂糅的珍珠蚌壳是来自英国当地食品工业和当地海岸的可持续副产品,通过定制形式浇铸和抛光的方式,使蚌壳呈现出白色、黑色、灰色和蓝色的不同色泽。
夹层一楼包括一个更衣室设施和一个可供学校在一周内预订的野餐室,并在周末免费供家庭使用。而在上部二层,透过主厅,能依次看到餐厅和泰河的绝佳景色。来访者通过一个开放门厅可前往 Michelin 设计画廊、汤姆森学习中心以及通向各个展厅和永久性苏格兰设计画廊的入口。上层和画廊内的地板都铺设了欧洲橡木,餐厅和野餐室的地板以及墙壁则选用了竹子。
邓迪 V&A 博物馆拥有苏格兰最大的博物馆标准的临时展览空间,面积为 1100 平方米,此外还有 550 平方米的苏格兰设计画廊。上层还配有一系列的学习空间,旨在为所有人提供多样化的学习项目,使其参与到设计创意的过程中。Adjacent 则是一个设计驻地工作室——设计师能在此与参观者分享正在进行的项目。此外,博物馆还设有一个用于会议、设计交流和社区活动的多功能礼堂,以及一个透过落地窗能欣赏泰河绝美风景的餐厅;餐厅的户外露台,恰好位于泰河和发现号上方,同样能欣赏到泰河的壮观景色。
项目图纸
△一层平面图
△二层平面图
△立面图
△剖面图
△结构大样图
△结构大样图
△表皮3D模型
△表皮示意图
△结构示意图
△分析图
项目信息
建筑师:隈研吾建筑都市设计事务所
面积 :84458445.0平方米
项目年份 :2022
摄影师 :Hufton+Crow
厂家 : HAVER & BOECKER,Sika
责任合伙人 :隈研吾, Yuki Ikeguchi, Teppei Fujiwara
项目建筑师 :Maurizio Mucciola
项目管理 :John Tavendale, Turner & Townsend
苏格兰式平面设计 :Kirsten Ambrogi
英寸卡尔信托资源中心设计 :PiM.studio Architects
画廊门厅快闪店设计 :PiM.studio Architects
主创建筑师 :隈研吾建筑都市设计事务所
交付建筑师 :PiM.studio Architects
执行建筑师 :James F Stephen Architects
结构工程师 :奥雅纳
景观建筑师 :Optimised Environments (OPEN)
造价工程师 :CBA
导视和标识设计 :Cartlidge Levene
水景设计 :Fountains Direct
零售设计 :Lumsden Design
地点 :英国,邓迪

BIM建筑网










































