来源:施加咨社
这种楼梯只需要在绘制时,分成三段直梯来绘制即可。
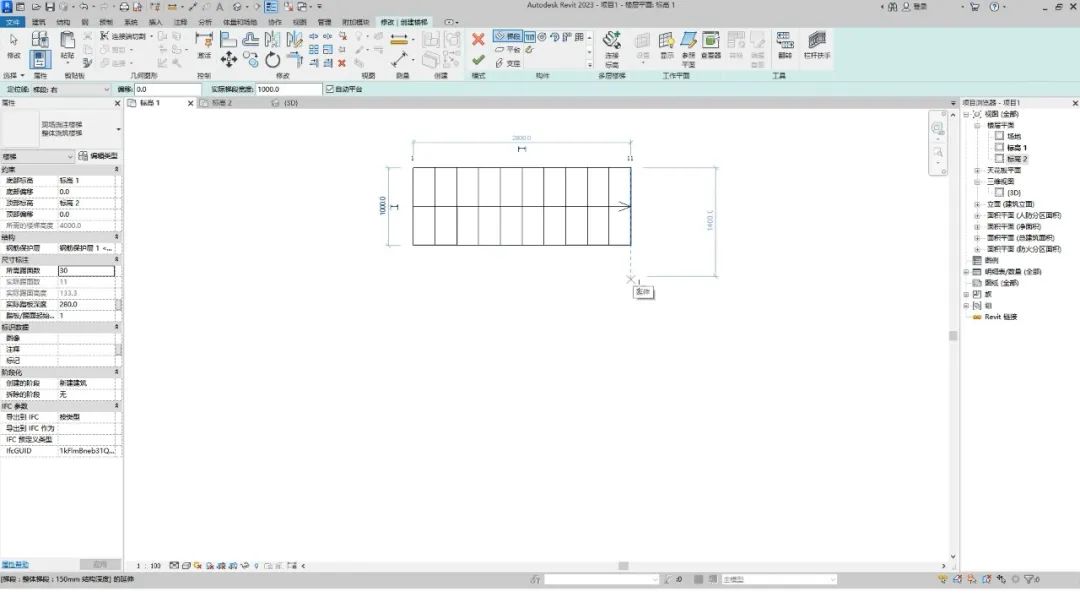
点击建筑选项卡中的楼梯按钮,类型选择为整体浇筑楼梯。
所需踢面数修改为30,定位线修改为梯段:右。
先绘制第一段梯段。
然后是第二段。
这里我们需要注意的是,要对齐第一段梯段的外边缘进行绘制,会有这条蓝色虚线提示。
我们从端点开始绘制。
接着是第三段,也要注意对齐边缘进行绘制。
点击完成按钮,切换到三维视图观察一下。
完成。

微信公众号:xuebim
关注建筑行业BIM发展、研究建筑新技术,汇集建筑前沿信息!
← 微信扫一扫,关注我们+

BIM建筑网











