日出山城,阳光穿过云层在双曲立面上,如极光般跳跃闪动,这正是由Aedas设计的重庆高科太阳座,项目目前已竣工交付。作为“世界第一扭”的强力竞争者,立面轮廓的直线与曲线,在钢筋水泥间咬合错叠,玻璃幕墙随之弯转变化,以坚硬的建筑材质表现了柔韧的弧度之美,为重庆这座热烈的城市添加一道“北极之光”。项目位于重庆北部新区幸福广场北侧,周边规划均已建成,多座建筑遍布在宽阔的地块中,犹如行星环绕“太阳”。在如此命题下,设计出既融合周边建筑肌理,又能脱颖而出成为地标性的核心建筑,并与环境语境形成呼应,成为整个项目设计的难点所在。
“项目面对广场这一宽阔的开放空间,本身具备成为标志性塔楼的有利条件。而大扭拧角度的幕墙可以在第一时间抓住所有人的视线。”Aedas全球设计董事韦业启(Ken Wai)从极光这一绚丽且灵动的发光现象中汲取灵感,将办公塔楼南侧与东侧立面顶底相连,以独特的双曲面模拟极光弧幕状优美的姿态,上演一场“光之舞”,从不同角度可以欣赏到不断变化的曲面形态。
当艳阳高照,曲面反射亮眼的白光,塔楼变作钻石般耀眼夺目。而夜幕降临,塔楼立面映衬着夕阳光辉,曲面如同少女翩翩起舞时柔美的腰肢。同时,裙楼的屋顶平面由竖直方向连续扭转至近似水平方向,以几何形式语言与塔楼形成呼应,保持了建筑风格的统一。这一独特极致的扭转造型形成了扭度极大的双曲面,项目体量中最大单层扭拧角度达8.8度/层,远超同类项目,是全球现有的超高层项目单层(CTBUH Journal, 2016 Issue 3)最大扭拧角度的近1.5倍,是“世界第一扭”宝座的强力竞争者。这一世界级难度挑战,有赖于幕墙顾问RFR以及前沿幕墙技术的助力以及业主的全力支持,得以将设计高精度实现。
对于扭曲较大的双曲面超高层而言,其拟合双曲面一直是一大难题。Aedas设计团队与RFR通过深度合作,以复杂曲面幕墙BIM和双曲幕墙单元的玻璃冷弯技术攻克了这一挑战。独创的幕墙系统能适应单元板块多角度、多尺寸变化的要求,确保建成效果与模拟效果高度一致,并保证幕墙性能。而采用三维组框+平板玻璃冷弯设计的玻璃单元,以打破国内最大单元玻璃翘曲量的86mm让设计得以实现。整个过程真正做到了从整体几何优化分析、幕墙模型建模、LOD400加工图深度构建建模,到加工图数据自动生成和检查的全过程幕墙BIM流程。建筑以完美的姿态呈现了设计概念中的“极光”立意。刚柔并济的幕墙体系,每块双曲面玻璃的尺寸大小以及扭曲程度均不同,构成令人为之惊叹的大弧度轮廓线条,与周边山水交相呼应,实现移步换景。
“幕墙不仅是建筑轮廓的勾勒,也是对内部空间进行雕塑和保护。”韦业启在塔冠巧妙地使用幕墙语言,以透明的玻璃幕墙配合灯光照明表达“光之谷”的概念,既与整体设计呼应统一,又与塔身办公区域进行了功能区分示意,同时也将预留机房、擦窗机等基础设施集中安置在主冠的“谷”中,不影响整体视觉效果,让功能统一纯粹。
在建筑布局上,设计充分考虑到建筑体量与城市环境的平衡,让超高层塔楼退让至商业零售裙楼左侧,既避免了对地块东北侧照母山上揽星塔的视觉遮挡,又消减了对城市中轴线的高度压迫,同时也创造出了更多市民户外活动空间。项目以其标志性的建筑轮廓,和为城市提供的重要公共活动空间,将成为极具辨识度的新地标。
项目信息
△基地示意图
△总平面图
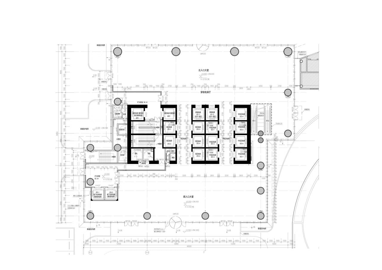
△一层平面图
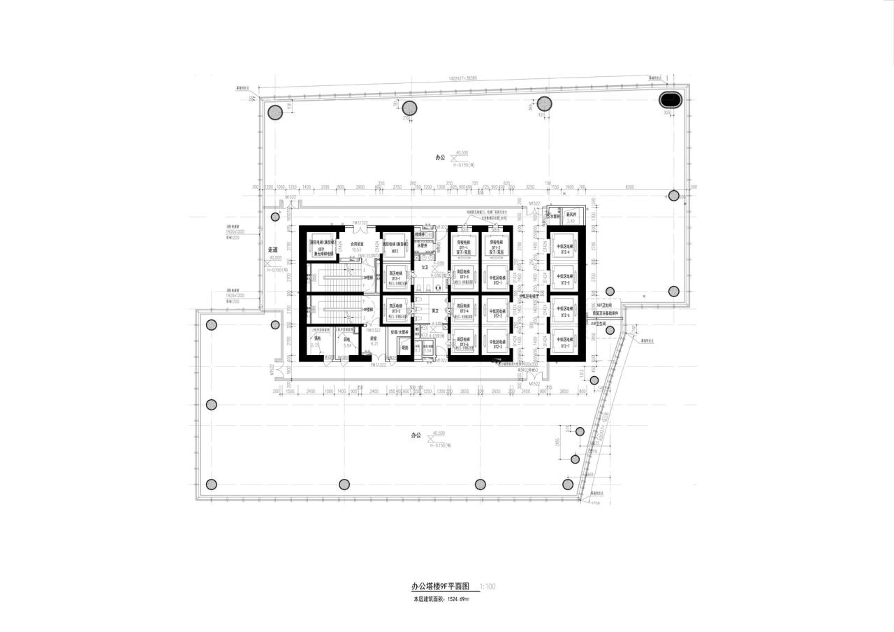
△9层平面图
△立面图
△立面图
△分析图
△分析图
△分析图
项目信息
建筑师:Aedas
面积 :61368m²
项目年份 :2022
摄影师 :存在建筑
主创设计 :韦业启
地点:中国,重庆

BIM建筑网
























