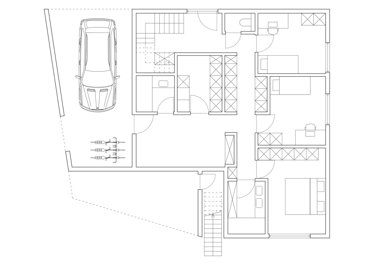
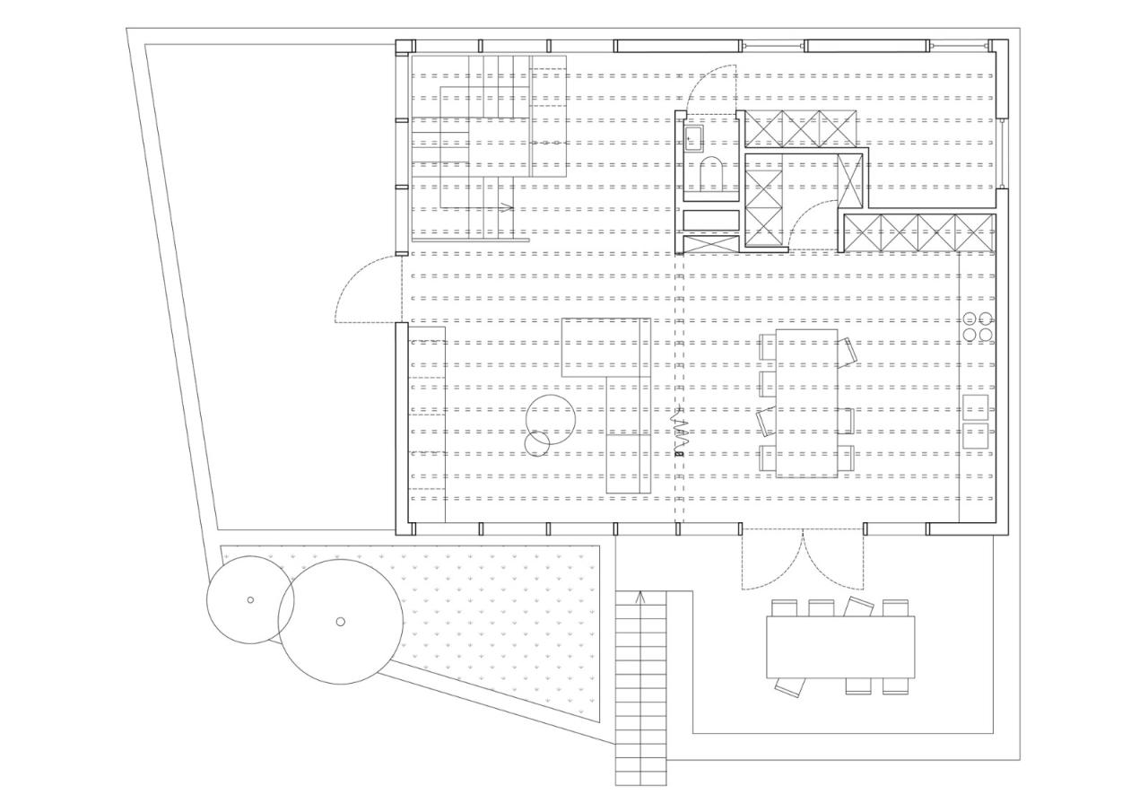
HEIDE 住宅是一栋单户住宅,位于根特市(Ghent)附近的一个名叫 Oosteeklo 的小村庄,是一个年轻的混合家庭的新建住宅。这个项目的位置非常不寻常,花园里有一个受保护的掩体,源自二战时期,离房子很近。为了保留周围的景观,建筑师决定将起居区放在房子的上层,而将卧室、浴室和更多功能区放在首层。较为封闭的一层与开放的且拥有大面积玻璃的二层形成对比。
这种选择影响了建筑外部的呈现:首层被设计为一个巨大的封闭底座,由石灰砖制成。第二层被设计成一个玻璃盒子,被构造成一个轻型木质框架结构,放置于坚固的底座上。鉴于木质框架结构的使用,该建筑二层的外立面也覆盖了木材。
由于第二层的面积比第一层的面积小,设计师便在与生活区相邻的一层屋顶上增加了一个大露台。一个室外楼梯使之与地面相连接。在室内设计中沿用了建筑外部所使用材料。一楼的空间由砖块和混凝土地板组成,并经过抹灰处理。
在二层,轻型木质框架结构的室内部分以木饰面作为完成面。屋顶由木梁构成,仍然可见。它们还被涂上了油,以保证耐用性。
在可持续性方面,这栋住宅得分很高。其体积尽量保持紧凑,以控制沿外墙所产生的热损失。具有热回收、太阳能电池板和热泵的机械通风系统提供了可持续的能源生产。
项目图纸
△一层平面图
△二层平面图
△立面图
△立面图
△剖面图
项目信息
建筑师:Architectuuratelier Vos,Luchtschip Architectuur
面积:210m²
项目年份:2021
摄影师:Johnny Umans
厂家:Deltalight,Vaillant,Ventiline
主持建筑师:Emily Pescod, Julie Vanden Bussche
结构工程师:De Munck Pascal bvba
承包商:De Brabander bvba, Pleisterwerken Verstraeten
木材承包商:Nico Vandeveire
地点:比利时,Assenede

BIM建筑网






















