安康高新第五幼儿园位于一处高差复杂的坡地之上,四周由高层住宅环绕。结合场地条件和建筑功能,幼儿园以梯田为主要概念,层层设置退台,用户外台阶和儿童滑梯将地面操场以及各层屋顶联通成为一个完整的户外活动场地。在这样的立体空间中‘散落’着各种游乐设施和绿植景观,让孩子在自然的环境中快乐成长。
幼儿园主体建筑集中布置在场地的西南侧,从而在东北侧形成了一个开阔的室外活动区域,同时有利于室外场地的遮阳和建筑内部的自然采光,促成建筑和场地的有机融合。建筑界面采用凹凸进退的处理手法,创造了许多妙趣横生的微空间。幼儿园室外的层叠退台,由多部滑梯连接,这种充满童趣的交通方式,持续不断地激发孩子们的探索欲。与此同时,室内大厅也设有一套组合游乐设施,同样以滑梯为主题,成为了孩子在课间,以及等待父母接送间隙最快乐的场所。
幼儿园外立面简约现代,墙体采用环保的砂黄色和米白色晶彩石涂料,窗框与遮阳格栅采用原木色泽,塑造出幼儿园细腻温和的质感。室外阳台和楼梯的天花引入鲜艳的橙色,用色彩的语言表达建筑的活力。外墙采用模数化的装饰线条,是建筑整体几何逻辑的外在映射。温合、活泼与严谨,看似差异化的特质,以一种有机的方式被融合在一起。
幼儿园室内色彩甄选自三原色衍生色调,为孩童的色彩认知提供丰富的启蒙引导。不同的颜色充当着指示标识,形象直观地引导孩子们到达各个功能空间。在各个教室里,精心的选色为孩子们开辟出了积极健康的生活学习乐园,在培养他们色彩搭配和审美能力的同时,也赋予了他们一个色彩绚丽的童年。
幼儿园在功能布局上分为南、北两个部分,由户外连廊连接。南侧部分是一个12班级的幼儿园,包含完整的日间教学和生活设施。北侧部分相对独立并对外运营,主要针对晚间及周末的儿童课外教学。这种复合型运营模式,使得本项目成为日间加晚间、一周七天的全天候儿童教育机构。
项目图纸
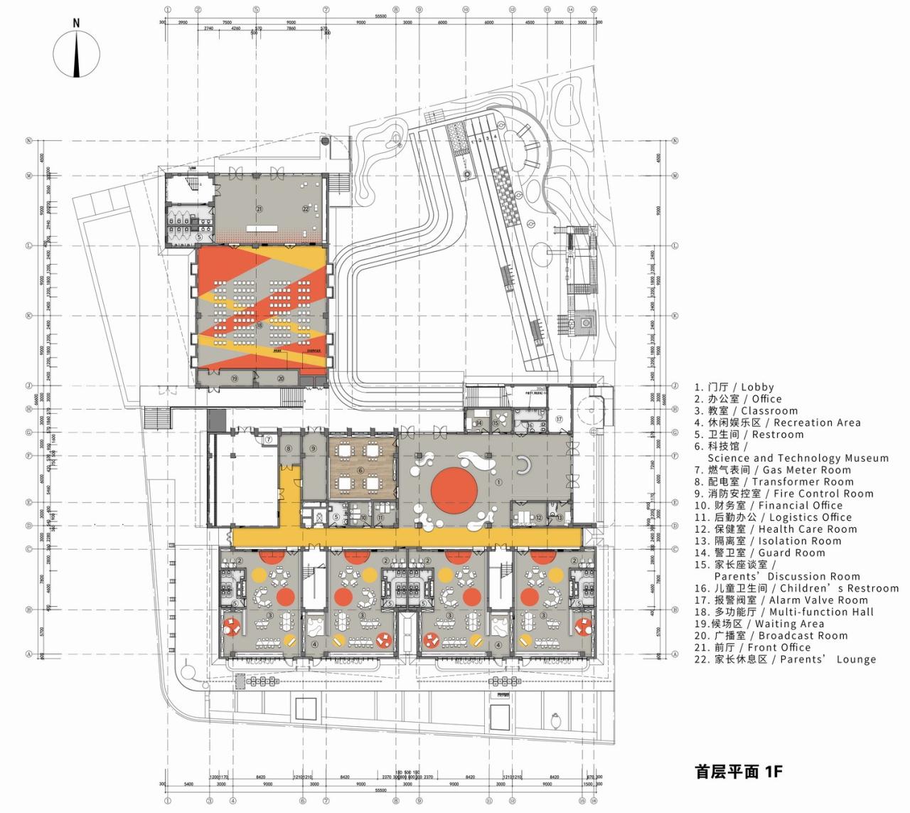
△一层平面图
△二层平面图
△三层平面图
△屋顶示意图
△轴测图
△细部示意图
△尺度示意图
△分析图
△分析图
△色彩分析图
△功能分区图
△路径分析图
项目信息
项目地点:安康.陕西.中国
项目规模:8,000 m2
项目业主:安康高新博元
项目年份:2017-2021
建筑设计:UUA建筑师事务所
室内设计:UUA建筑师事务所
景观设计:UUA建筑师事务所 + Yearn Space Landscape
主持合伙人:李泳征,李其郅
设计团队:邓亮,姜腾,吕延峰,赵胜利,陈立业,马兴华,方泓博,虞楠,迟冰钰
施工团队:安康希承建筑工程有限公司
建筑摄影:直译建筑摄影

BIM建筑网










































