项目位于离山西兴县120师学校大约一公里的友兰中学内,场地南北高差约6米,立于教学区与生活区之间的校园中轴线上,包含图书馆及专业课室。场地周边依山而建的村落给我们留下难忘的体验,我们希望建筑形成一个村落意象,意在营造多层次的游走空间体验及一个可穿越的多孔性场所,与原有刻板的教学楼形成对比。
我们将折叠的墙体依地势顺延,图书馆、美术、音乐地理等专业课室及展厅分别置于墙体之间,形成一个建筑与庭院相间的布局形式。
建筑室内外相互交融,为师生提供多样的交流空间,东侧结合体育场地成为看台或者午后阴影下的体育活动场所;西侧面对宿舍区分别形成图书馆及艺术楼的入口广场。
连续曲折的墙体把室内视线导向不同景色,人们在场地内很难一览建筑全貌,犹如村落的空间体验,步移景换,画卷被层层打开。
天窗顺应混凝土折墙开设,为室内提供静谧的阅览空间及光线稳定的作品展示空间,同时可减少墙体开窗面积,较好地适应当地严寒的气候特点。高低错落、粗粝木纹质感的混凝土折墙,与周边雄伟的山脉取得协调。
项目图纸
△手绘分析图
△总平面图
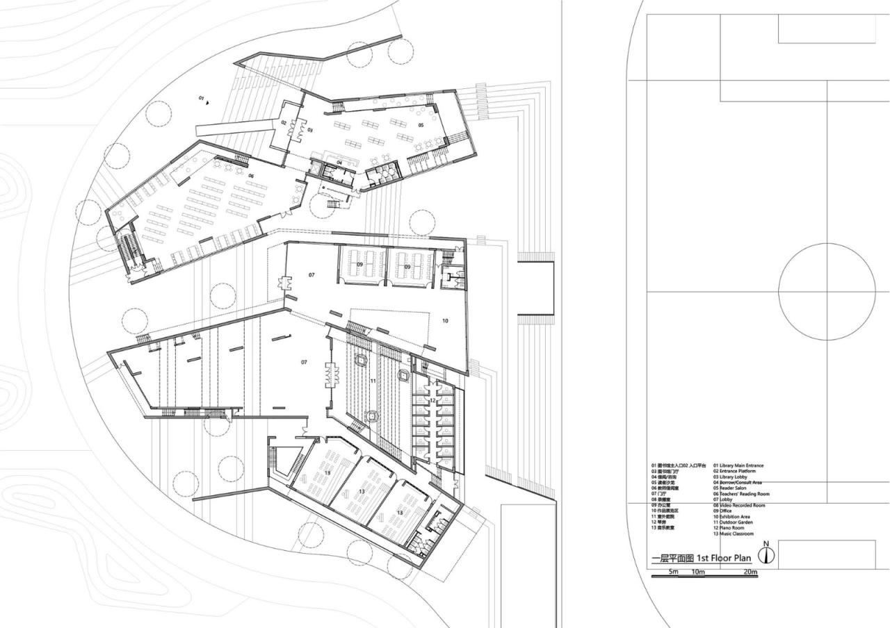
△一层平面图
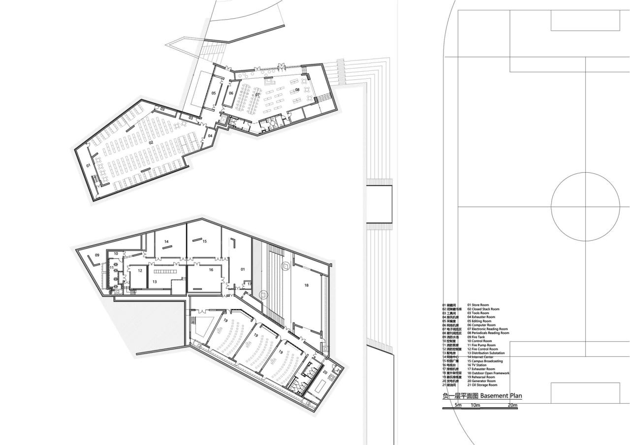
△负一层平面图
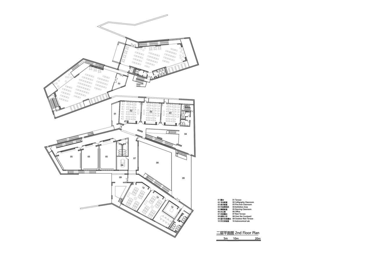
△二层平面图
△三层平面图
△剖面图
项目信息
建筑师:WAU Design
面积:8690m²
项目年份:2021
摄影师:吴嗣铭
厂家:Ex: Hunter Douglas
主创建筑师:吴林寿,赵向莹
设计团队:李景洲,林光福,张仕浩,詹洁欣,曾镇浩,师丝雨,Valentina Lupo,Alexandre Midou
景观设计:周英丽,郑亚龙
委托方:友兰中学
施工图深化团队:深圳市清华苑建筑与规划设计研究有限公司
地点:兴县
微信公众号:xuebim
关注建筑行业BIM发展、研究建筑新技术,汇集建筑前沿信息!
← 微信扫一扫,关注我们+

BIM建筑网






































