具有多种功能的爱达荷大学中央信用合作社 ICCU 体育馆拥有 4000 个座位,意在成为通往爱达荷大学校园引人注目的门户,它的设计灵感来源于在冰河时代末期米苏拉湖溃堤而造成的米苏拉大洪水(Missoula Floods)冲击而成的帕卢斯地区(Palouse)的起伏景观。这一建筑既是大学篮球项目的举办地,也是如体育赛事、音乐会、集会、校园项目等各种活动的集合场所。
全新的 ICCU 体育馆打造了紧密的观众体验,展示了其所在地区独到的特征,并呈现了与可持续自然资源的深刻联系。体育馆中使用了大量的木材,并让内部空间充满足量的自然光照,以此让这一建筑与由钢及混凝土打造的传统运动场形成了鲜明对比。ICCU 体育馆意在通过与该地区林业、木制品业的合作伙伴协同,共同在可持续木制设计中进行创新。
该项目的形态与材料表达构筑了一种扎根于爱达荷州历史之中的场所感,同时也展现了着眼于未来的先进性。这是一个旨在用于庆贺运动成就的场所,同时也是为这所大学的森林学、工程系的学生们度身打造的学习实验室。ICCU 体育馆通过对在当地采伐木材的创新使用,打造了大跨度的胶合层压桁架、及销钉层压木材 (DLT) 结构元件,继而成为这所大学教育工作的催化剂。
体育馆屋顶“悬浮”在西入口门廊上方、向后延伸、并分成两部分以在北侧大厅上方构建多层次的等距分隔起伏壳体,由此援引帕卢斯地区蜿蜒起伏的山丘轮廓。屋顶连绵延伸至东侧,轻柔地在垂直方向环抱着练习场,并与地面直接相连。并且体育馆外侧墙内壁则由富有表现力的胶合层压架构支撑。
炭染雪松木墙起伏的纹理与建筑“丝滑”的预制梁并置,由此回呼应这一地区早期的农庄架构形式。屋顶面板间开敞的缝隙则由半透明的玻璃填充,由此为整个表演场地引入了漫射的自然光,同时,木制架构间的全高玻璃幕墙也提供了可以观看内部活动、欣赏外部景观的绝佳视野。此外,外露、起伏的花旗松屋顶结构也为运动员及观众们创造了一种温暖、包容的体验感。
为了实现木制结构的诗意之美,建筑必须将机械、电气系统集成于结构之间。其中主要的结构为分叉型的门式桁架、及重复排列的王柱桁架系统。门式桁架与王柱桁架系统与双层胶合层压顶索设计结合,由此在结构之间打造了“间隙空间”,从而建筑可以在其中建立“设施高速”以隐藏机电部件。在运动馆西侧,功用设施被隐藏在拱腹后,并与运动场办公室、更衣室及校友中心等空间结合,由此打造了位于上层、可以俯瞰主球场的特别活动空间。而在体育馆西侧,观众们可以体验由坚固的悬挑屋顶遮挡雨雪的范德尔露台,并享受着眺望帕卢斯连绵起伏的山丘的风景,由此感受有着完整循环的场所氛围及社区体验。
项目图纸
△总平面图
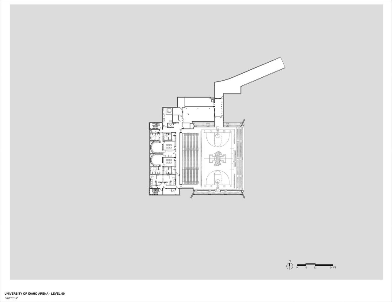
△一层平面图
△负一层平面图
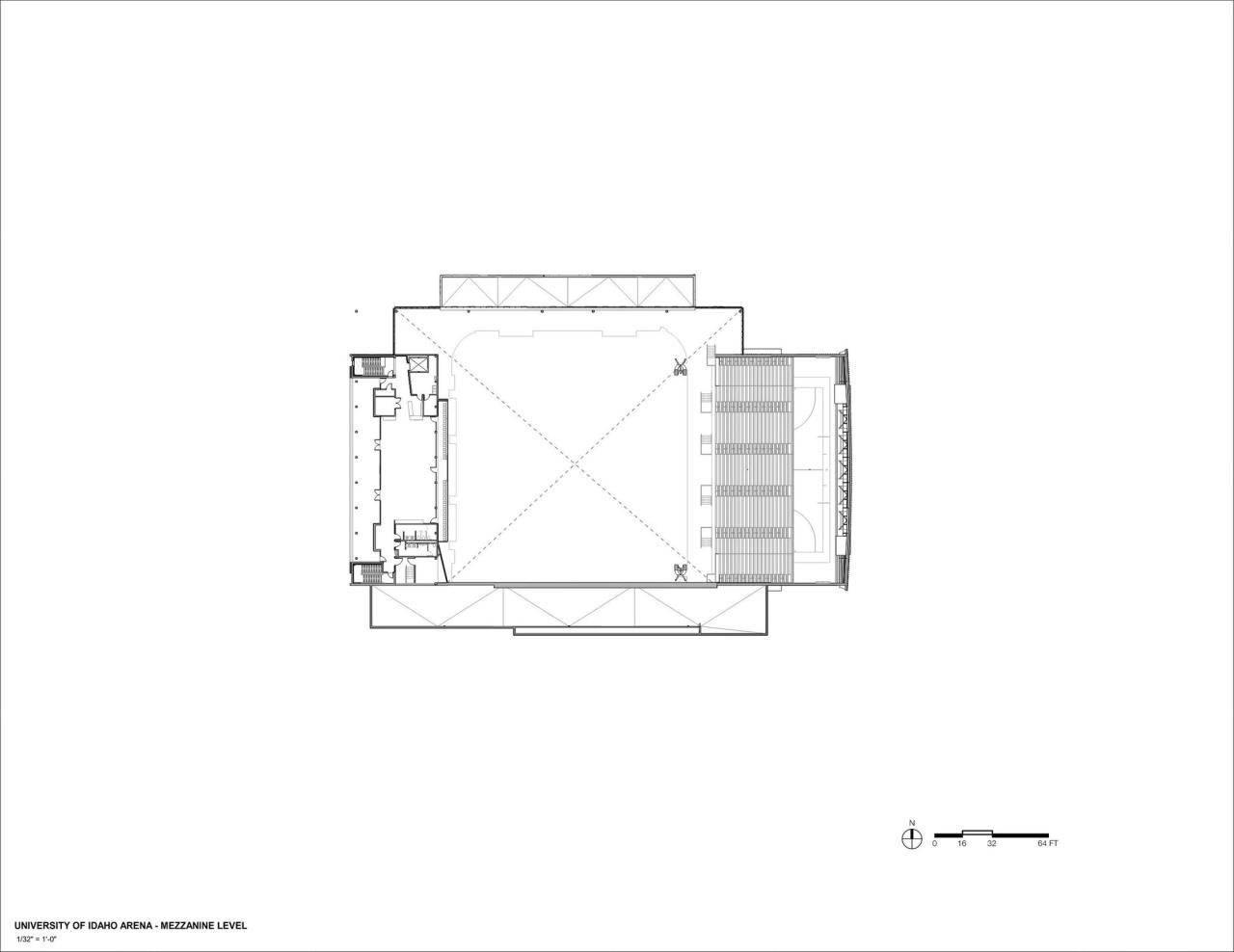
△观众席标高平面图
△剖透视
△结构示意图
△分析图
项目信息
建筑师: Opsis Architecture
面积 : 6148 6148.88m2
项目年份 : 2021
摄影师 :Lara Swimmer
厂家 : 9Wood, ASI Global Partitions, Armstrong, Bemo, Blum, Boise Cascade, C.R. Laurence, Carlisle SynTec, Claridgge, Connor Sports Wood Athletic, Cornell, Cosentino, Dow Subgrade, Draper, Fórmica, Gearboss by Wenger, Hafele, Henry Company, Hilti, Hussey, +25
责任合伙人 : Alec Holser
项目管理、项目建筑师及设计师 : Chris Roberts
建筑师 : John Morrison
设计师 : Matthew Rusnac
功能、使用及建筑用途 : 体育馆、多功能活动空间
Roof Structure Engineering : StructureCraft
建造 : Hoffman Construction
结构工程师 : KPFF Consulting Engineers
地点 : 美国,莫斯科

BIM建筑网
























