△一位现场工人正在查看屋顶 © 普罗理想国
项目详情
普罗理想国与a9a建筑设计事务所合作打造了理想国集市的建筑与局部室内设计。理想国集市是一个集生鲜菜场、生活美学零售、时尚餐饮为一体的高品质社区商业体,项目传递了普罗理想国全方位塑造理想住区样本的决心,设计打造开放、便利、共享的公共空间,使其在未来成为一个促进社区邻里互动交往的场所。
△项目视频
△© 普罗理想国
△© 普罗理想国
△© 普罗理想国
△© 普罗理想国
△© 普罗理想国
△© 普罗理想国
△© 普罗理想国
△© 普罗理想国
△© 普罗理想国
△项目视频
01
化整为零,开放的内外皆宜。
一个会呼吸的街区布局
集市从打碎的整片地块中生长,相对独立的的三个建筑区块形成了宜人的内街尺度。
分割体块的轴线,成为连接住区和公园两侧人流的主要行动流线,也成为串联各功能区块的重要交通路径。外部临街部分,结合建筑的灰空间进行外摆布置,打造充满活力的商业氛围和消费场景。
02
多元化塑造步行半径内理想生活合集
鲜活、生活
为社区创造立体、生动的生活街区。
热闹鲜活,触手可及
集市社区提供最丰富的蔬菜瓜果、水产生鲜的采买便利,也力图最大程度地在空间中重现记忆中的热闹与人情味。
不止鲜活,更有生活
空间还可容纳多样性的经营需求——咖啡、小吃、酒吧、餐饮、日用零售等,满足居民日常亲朋聚会、外出就餐、商务洽谈等等多样化的需求。
03
BOX
小盒子,变一变,塞进去。
将人性化的尺度思考引入集市建筑的整体设计中
我们通过对盒子的空间原型思考,为未来业态规划提供了一整套模块化可变方案,在满足整体建筑风格的前提下,根据不同业态的经营需求进行延展。
当我们将这些空间置入集市内部,原本空旷的“广场”转变为错落有致的“街区”。
04
尺度感多维度思考以及背后的技术活。
以现代的木结构呈现集市舒适的温暖
05
近人尺度下自然质朴的氛围营造
云杉实木+钢结构连接现代木结构,具有轻便的结构特性,为构建多元的空间提供了无限可能性。室内屋面由檩条和椽条构成,檩条和椽条位于同一平面内,裸露在外的木质框架体现了结构美。
06
公共性生态,共融
在公园中,沉浸式购物
开放
自然元素的屋面可以与公园充分对话,连廊与露台有绝佳的视野,让中央公园的景色尽收眼底。
引入
立面上采用大面积的通透材料,引入自然光线和外部中央公园的景观,营造一个绿意盎然的购物场所。
驻留
设计通过制造可停留的空间,鼓励人们走过去,停下来,坐着、站着、躺着……
欢聚
对空间的使用自由,让人们真正的聚集在一起与邻里分享美食,发生互动,在这些细微且具体的事实中,理想生活场景就有了具体的画面。
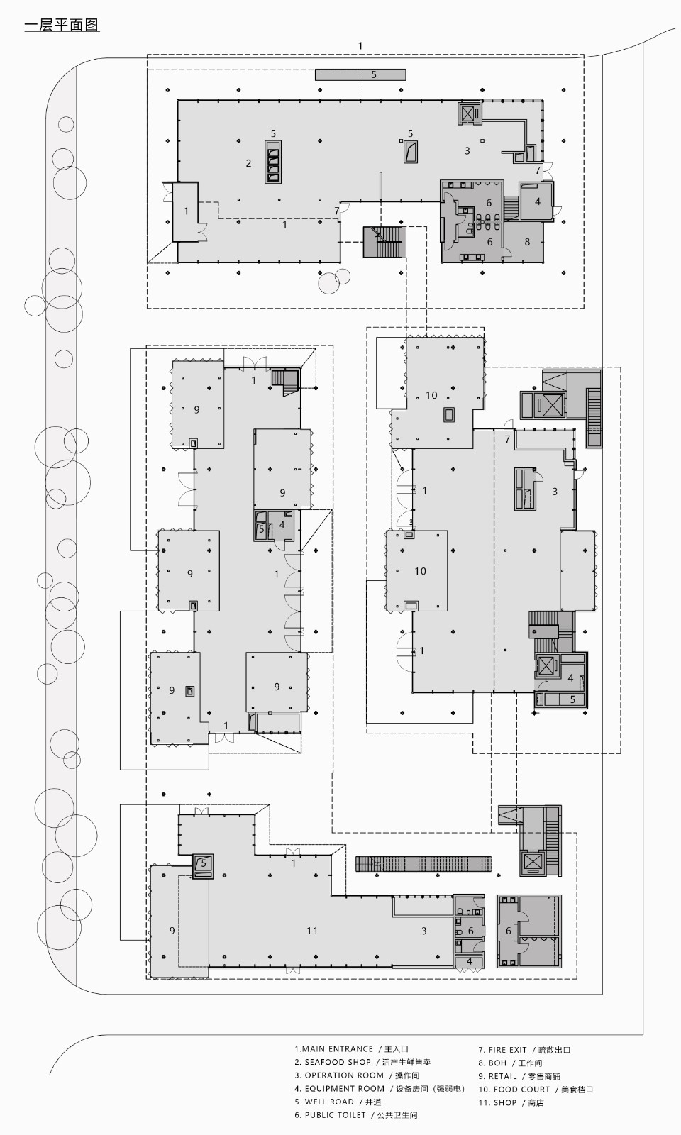
△1F平面图
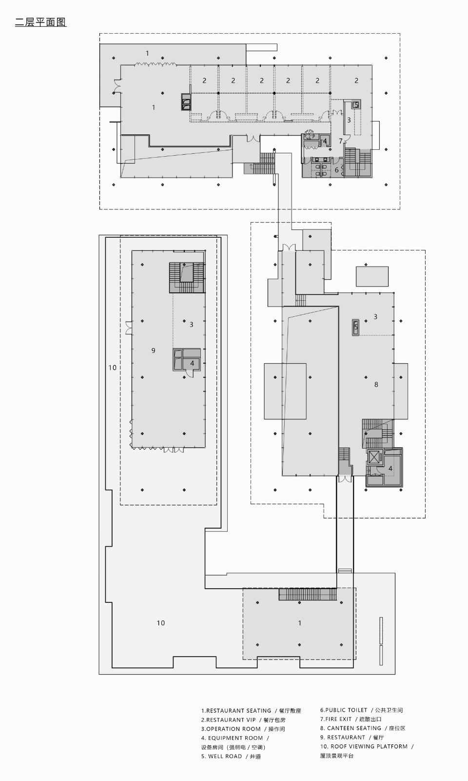
△2F平面图
项目信息
项目名称:普罗理想国集市
项目地点:河南郑州
项目用地面积:4200m²
总建筑面积:8500m²,其中地上面积4257㎡,地下面积4243㎡
建筑&局部室内设计:a9a建筑设计事务所
公司网站:http://www.a-9-architects.cn
委托方:普罗理想国
设计类别:商业、餐饮
建筑负责人:李岳九
设计团队:沈欣怡、王灵毓、李坤、卞永杰
结构工程:栾栌构造设计事务所
结构负责:陆洋
局部室内设计:合恣空间设计
材料:云杉实木、钢筋混凝土、玻璃
设计周期:2021.07~2021.12
施工周期:2021.11~2022.10
项目状态:建设中
工地摄影:普罗理想国

BIM建筑网






































