广东省江门市的台山市素有“第一侨乡”之誉,“侨乡特色”也自然成为此次校园设计过程中被提及频率最高的语汇。以笔者一个外来者的眼光看来,侨乡独具特色的聚落空间模式,存乎于内、外两个面向。一方面,绵延不绝的岭南丘壑和亚热带气候环境,孕育了独特且复杂的社会环境,进而催生了先民们以小尺度、防御性的聚居单元同宏观山水和社会环境进行互动的聚落营建模式。另一方面,在同异域文化发生碰撞的过程中,属于特定历史时期的、丰富的“摩登”元素,造就了侨乡建筑不拘一格的多元风貌,传达出先民们开眼看世界的雄心。谓之“特色”,在于对地理、气候、和社会环境的适应性,以及对于“新”和“现代性”的追求。
△侨乡聚落及碉楼建筑特色
△场地原貌
校园选址于台山市南新区边缘,西侧是平整后大尺度的现代化城市新区网格,东侧是城市开拓边界以外的自然丘陵环境。场地内部,南、北两座小山占据了校园用地的86%,竖向极差约63M。场地南侧的山体与平坦的城市道路之间接近20M高的断崖护坡,彰显着城市开拓的雄心和强大的环境改造能力,却也多少倾诉着一丝遗憾:沧海桑田之后,倘或初生的孩子们不再能够体验到,或者至少看到先民们为之奋斗过的环境基质,谓之“文化传承”,则难免显得苍白无力。
△中学部鸟瞰
△建设中的校园
△校园空间生成
△校园鸟瞰
△校园夜景
△中学部主入口
校园北部的山体被相对完整的保留了下来,构成校园空间体系的核心,作为1~6年级和7~12年级两个学部之间的天然过渡,隔而不隔,界而未界。我们在山上设计了一条蜿蜒的小径,穿过满山的植物将生活区与教学区连接在一起。山顶同时也是整个场地的制高点,我们在这里设置了一方小小的书院,穿过离离疏影,听闻潇潇秋声,孩子们可以在这安静的一隅寻觅世间万物,眺望远山丘壑。
△中学部教学区
小尺度的单元式建筑体量在多层次的非正式学习空间和交通关联之下,构成教学聚落和生活组团,适应于复杂的场地标高环境,与传统侨乡聚落同山体的共生策略同构,也同学院制的教学管理模式之间形成极高的默契。
△单元式教学空间
△标准教学单元空间构成
△资源中心
△资源中心剖透视
400M运动场被置于场地内稀有的平坦区域——南北两座小山之间的谷地。为了尽可能提升谷地区域的场地利用效率,运动场标高被整体抬升,下部架空空间植入了文体活动、餐厅、车库和接送站等内容。相应地,校园的整体日常活动面也被抬升至一个相对合理的标高,以避免过大的校园场地极差对孩子们的日常活动造成不便。东北角相对平坦的区域也采用类似的策略,设置了小学部使用的200M运动场以及活动和机动车通学空间。
△土方工程分析计算
△土方工程分析计算
△运动场下空间利用
△依地形变化形成层次丰富的室外活动空间
自然造化的山体骨架被相对完整地保留下来,让每一栋建筑的展开有据可依。建筑形体依山形扭转、生长、叠落,每一个院落都有一方天地,每一扇窗外都有一帘山色。行走其间,或于教室中安静诵读,或三五结伴在廊间庭中嬉戏,或携手于屋顶平台憧憬属于自己的诗和远方。
△剖面视线分析
△教学区庭院
△标准教学单元中庭
△立面细节
原本用于开山和场地平整的大量预算,被转而落实在孩子们触手可及的丰富体验上,对于建设而各方而言,都是更为理想且乐于接受的处理方式。笔者想起初读类型学的时候,先生每每用“有法无式”作为告诫,让笔者去阅读背后的“元”。诚如顾炎武先生所论:“渔父不必有其人,杏坛不必有其地”。谓之地域特色、文化传统,自有其形外之“元”,大可不必非得套上一个甚至根本不是本土原生的符号来标榜自身的“正统性”,以及脱离了环境基质支撑的形而上的“传承”。
项目图纸
△总平面图
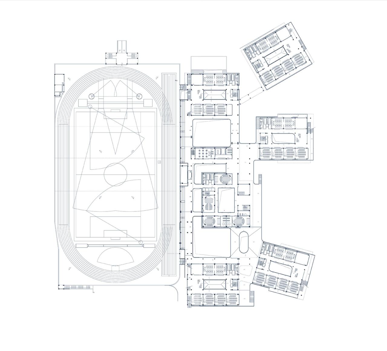
△中学部一层平面图
△中学部二层平面图
△中学部三层平面图
△中学部立面图
△资源中心剖面图
项目信息
项目名称:台山市广旭实验学校(GSS, Taishan)
建设单位:台山市广旭教育发展有限公司
项目地址:广东省江门市台山市南新区
设计时间:2020.9~2021.12
竣工时间:2022.8(一期)
办学规模:96班十二年一贯制学校,其中小学36班、初中30班、高中30班
用地面积:10.27h㎡
建筑面积:13.33万㎡/8.41万㎡(一期)
设计单位:山东建筑大学建筑城规学院象外营造工作室
主持建筑师:刘伟波
项目建筑师:张增武、于文原
方案团队:焦尔桐、司道强、张洪川、王洪强、马筠茹、王帅、王书琪、李成成、王家熹、张恩蔚、刘元建、王雅姝、王子晗、雒凤伟、李海旭、张瀚铭
施工图团队:广东金辉华集团有限公司
景观设计团队:良树溪林景观工作室
建筑摄影:崔旭峰 时差影像

BIM建筑网























































