Morphosis设计的橙县艺术博物馆新馆(Orange County Museum of Art, OCMA)于2022年10月8日正式开馆,开馆当日举办的24小时开幕庆典吸引了一万人左右来此欣赏艺术并参与博物馆举办的各类活动。
橙县艺术博物馆创立于1962年,是美国加利福尼亚州知名的现当代艺术博物馆,旨在通过现当代艺术丰富多元发展社区的生活。其新馆坐落于科斯塔梅萨(Costa Mesa, CA)新兴的艺术园区——西格斯托姆艺术中心(Segerstrom Center for the Arts),作为该艺术中心文化版图的最后一块拼图。
该馆以5个特别展览为这座新建筑揭幕,庆祝其60年的发展历史,并展示其进一步推动公共使命的雄心。开幕展包括:2022年加利福尼亚双年展《Pacific Gold》,橙县艺术博物馆13位女性创始人群展《13 WOMEN》,艺术家Fred Eversley 50周年回顾展 《Reflecting Back (the World)》,艺术家Sanford Biggers为新馆定制的雕塑作品《Of many waters…》,以及景观设计师Peter Walker设计展《Peter Walker: Minimalist Landscape》。
建筑设计
“橙县艺术博物馆的设计代表了一种新的博物馆模式,这种模式基于公众、城市与公共空间,并构建了室内、室外的紧密连接。作为Morphosis完成的第一个艺术博物馆,它的启幕也将是我们的一项重大里程碑。”——汤姆·梅恩Thom Mayne (Morphosis创始人)
后疫情时代的博物馆,必须要成为一个公共的文化空间。
Morphosis为该新馆设计了灵活的展示空间、专用的教育空间以及室内外的公共空间,旨在扩大博物馆在科斯塔梅萨地区丰富的社区文化底蕴及城市影响力。建筑在优先考虑公共空间及教育空间的基础上,满足了馆方对空间灵活性和功能性的需求,打造了一处引人入胜且令人难忘的艺术地标。
新馆的建筑面积约4,900m2。其中展示空间约2,300m2,较博物馆在新港海滩(Newport Beach)的旧馆增加了约50%,为博物馆展出馆藏大型装置、举办大型特展创造了机会。公共功能空间约900m2,主要用于公共教育、艺术表演和公众聚集, 包括行政办公室、博物馆商店、屋顶露台、咖啡馆等。
“我们对橙县艺术博物馆的设计,充分利用了南加州的气候和自然环境,并强调了室内外空间之间的联系。作为西格斯托姆艺术中心的最后一座建筑,我们意识到我们要创造的这座建筑,不仅要谨慎周全地融入周围的环境,也仍需树立其作为艺术博物馆的强大存在感。”——布兰登·威灵 Brandon Welling (Morphosis 合伙人 OCMA设计负责人)
01 屋顶露台
建筑最大的特点是巨大的屋顶露台,其面积达到了建筑占地面积的70%。
它既是展厅的延伸,可以作为雕塑花园,或陈列各种装置的户外展览空间;也是公共空间的延伸,可以作为露天影院,为更加多样化的文化活动提供场地。它和博物馆的主动线融为一体,将成为一处日常的社交之地。
02 室外阶梯
室外巨大的公共阶梯,以一定的弧度朝向博物馆,并延伸至其入口。
该设计致敬了大都会艺术博物馆的阶梯,成为了重要的公众聚集地之一。通过它,橙县艺术博物馆与艺术中心的露天艺术广场(Julianne and George Argyros Plaza)以及邻近的表演艺术中心相互连接,共同创造出一处充满感染力的户外空间,进一步吸引人们在此相聚。
03 表演及教育大厅
表演及教育大厅是整座博物馆公共空间的焦点。它悬停于高耸、明亮的入口大厅中庭之上,营造出了一种鼓舞人心、充满活力的空间氛围。
巨大的落地窗不仅为室内引入了自然光,也让人们可以望向室外,俯瞰屋顶露台和室外阶梯。
04 展示空间
主要的展示空间并非孤立和离散的,而是灵活设置且相互连通的。
便捷易达的常设展示空间、开放式的临时展示空间、艺术商店及夹层展厅等多种形制的展示空间,为各种规模、各种媒介的展品及展览提供了支持。同时,沿着街道和入口立面设置的店面展厅,让人们可以从人行道或广场向内观看,邀请路人体验艺术。
05 立面设计
建筑起伏的浅色立面,由釉面陶板和玻璃构成,呼应着相邻其他建筑的形式与色调。
带有凹槽的矩形白色陶板形成了连续的带状结构,流动的立面线条在室内外之间自由游走,形成了内外延续的形式。而玻璃幕墙成为连通室内外的媒介——人们可以从室外一窥室内的艺术展品及文化活动,也可从室内远望室外艺术中心的景观。
此外,陶板立面还是一个定制的雨幕系统。它将工匠工艺与计算设计相结合,塑造出了建筑独特而复杂的曲线。
06 参观体验
整座博物馆精心编排了一系列丰富多样的参观体验。从靠近建筑、抵达入口,到参观展览、穿过展厅,再到在博物馆商店中闲逛,在阶梯或咖啡馆内休憩片刻——建筑邀请人们不断流转、不断探索。
而在这一过程中,建筑形式感的强弱也在不断变化,从引人入胜的精巧入口大堂,到线性规整的简洁展厅,建筑的形式随功能变化而逐渐转变,营造出一种既正式也非正式的艺术环境。
其室内外空间的紧密联系,让人们尽情享受此地的光线、空气与空间,沉浸在南加州这一艺术圣地的场所氛围之中。
项目图纸
△模型图
△模型图
△模型图
△模型图
△基地示意图
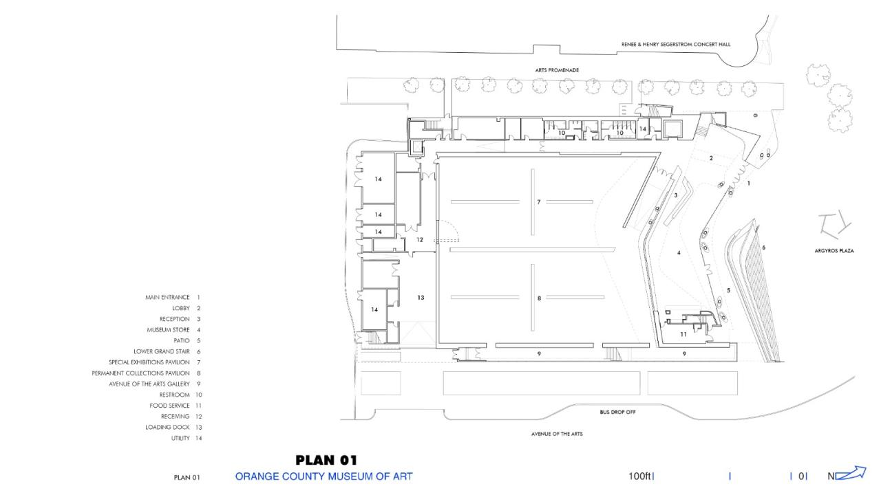
△一层平面图
△一层平面图
△二层平面图
△立面图
△立面图
△立面图
△立面图
△剖面图
△剖面图
△分析图
△分析图
△分析图
△分析图
项目信息
地点:美国,加利福尼亚州,科斯塔梅萨
业主:橙县艺术博物馆
场地面积:0.68公顷
建筑面积:4,924 m²(展示空间面积:约2,322 m²;屋顶露台面积:987 m²)
项目类型:文化建筑
建筑用途:博物馆,包括展厅、多功能教育厅、屋顶露台、活动空间、文创商店、咖啡馆、行政及辅助空间
设计时间:2015-2019
建造时间:2019-2022

BIM建筑网




































