苏州国方电子有限公司总部坐落于苏州市相城经济开发区,作为生产企业的办公研发大楼,其肩负着彰显企业特点与文化的个性标识的使命。建筑整体由立方体和圆柱体共同组成,共计9层(地上8层,地下1层),总建筑面积约19200m²,整体高度约为40m,是苏州国方电子产业园的标志性建筑。
△厂区鸟瞰 ©徐英达
△厂区俯拍 ©徐英达
△产业园区位置 ©徐英达
国方汽车电子项目致力于汽车零部件的开发、生产和销售,对加快汽车零部件产业在该区域聚集和打造先进装备制造产业集群具有重要意义。如何体现该区域的合作、融合性质与该企业的入驻激起的浪花是设计整体思想的关键。基于总体背景,设计师选择着重从外立面、空间构成、几何元素、深层意义、城市关系等角度表达想法。
△总部大楼全景 ©徐英达
△南立面 ©徐英达
△建筑外观 ©徐英达
△建筑近景 ©徐英达
建筑所处区域多为低矮厂房及单一色彩外立面楼宇,缺乏现代化产业气息。为突显国方电子的高科技企业形象,借助玻璃幕墙、几何元素将办公研发大楼打造为具有立体感、画面感的区域独特风尚。研发办公大楼的空间分布巧妙而不拥挤,与周围建筑产生美感的摩擦碰撞的同时,又与厂房形成一种统一的韵味。设计师致力于打造和谐而富有独特美感的城市区域空间。
△概念推演 ©平介设计
为彰显企业文化与突出个性标识,外在的视觉表现与内在的韵味表达都显得尤为重要。简单的几何特性和深厚的文化属性被视作简洁传神的设计方案的首选。因此,“方”与“圆”成为此次“破题”最为关键的设计元素。方形的棱角分明展现的是积极进取的态度和充满活力的攻坚决心。圆形的自然和谐囊括的是沟通交流、通达协调的理念。简单的情绪表达并不是设计的最终目的,将企业文化、管理智慧、总部职能汇聚于设计当中才能将建筑的情绪得以升华,将简单的几何元素赋予内涵。
△方和圆 ©徐英达
为将不同特点的“方”与“圆”结合,达到“浅深各有值,方圆随所蓄”的意境,“圆”与“方”的大小、布局、衔接都是精心布置的。通过几何元素的巧妙搭配,用简洁通俗的手法传达中华传统哲学思想在企业管理中巧妙运用的智慧。通过几何元素的精准构建,运用巧妙的空间布局突显设计方案对空间融合、功能区分、建筑可持续性的关注。这种思想和设计都旨在表达总部所承载的研发、协调、领导、权衡、文化、生态的特质。设计方案不拘泥于建筑本体的内涵发掘与形象表达,还聚焦于区域内“阴阳”调和的一体化目标。
△"方圆调和" ©徐英达
设计方案试图在厂区与城市界面的内外关系上进行突破,同时刻画建筑不同于厂房的体量感与外立面。
△厂区内外视角 ©徐英达
从几何类型上,利用方形塑造出严谨、刚性、易读的属性;而圆是柔和、过渡、自然的。作为一个厂区配套办公建筑,方形位于地块拐角边界使建筑更易于增强城市地块界面感,圆形则作为休闲区域更偏向地块内向的自然和流动。从功能上,方形体量旨在容纳办公研发人员并进行企业文化展示,打造区别于车间的办公环境,圆形体量则是厂区内的人文、休闲的配套功能。
整体方案渴望打造出具有“效率”、“幸福感”、“满意度”的办公建筑。
△立面与玻璃幕墙 ©徐英达
设计在建筑外表面采用了大量的玻璃幕墙,主楼部分公共区域与研发区域在外立面通过不同的材质加以区分,而副楼则全部采用玻璃幕墙使得公共景观区域更加开阔,提升了建筑的自然属性,其既诠释了“方圆调和”,又使得整个建筑显得轻盈而现代。这是一种新型的办公建筑——既简单、高效,又具有标志性。
大量的玻璃幕墙与周遭用房之间形成的统一和对立,彰显建筑在群体中的主体地位。
△爆炸图 ©平介设计
而建筑内部空间的营造,建筑师在立方体中间由小至大挖去一个圆台,不仅提高了建筑内部的自然光采光,产生了一个有趣的中庭,提供了一个高品质办公环境;而且在灵活的框架内,创建了一系列的社交空间,以鼓励非正式会议、合作和终极创新。
△中庭 ©徐英达
不同于传统方方正正的中庭样式,建筑的中庭空间由数个不规则圆形盘旋错落而成。中庭将自然光引入每一楼层的圆环中,带给人一种自然舒适的感觉。这种舒适感引导人们在中庭聚集,让人们在开敞空间中交流互动。中庭打破了楼层间的间隔,使整个建筑是交互的、流动的。设计师大胆的将独特的几何元素运用于中庭,使其显得时尚而自然,更是“方”“圆”组合的内化。设计师希望中庭的“圆”与该建筑整体的方形形成鲜明对比,以延续“方”“圆”调和的理念。在建筑物中以仰视视角观察中庭,天圆地方的阴阳调和观念更是让人深有其感。
△光从顶部照亮中庭©徐英达
“方圆调和”的理念不仅表现在外观的美感表达上,更深化于纵向可持续维度中。方、圆、顺滑的曲线等几何元素带来的是夏季隔热通风,冬季保温节能,自然光层层下渗的功效。
△大堂 ©徐英达
△中庭仰视©徐英达
设计方案总体立足于企业文化的建筑化表达,建筑与周边城市环境的统一协调,建筑的高科技现代风定位展现,建筑内外部空间的交流互动与建筑的可持续性设计。项目承担着建筑成为苏州国方电子产业园标志性建筑的使命,建筑将带着领航者的风范,带动产业园的高质量可持续发展。
△夜景 ©徐英达
这个项目是工作室在4年前初创时期有幸接触的最大体量的项目,虽然我们只是承担了方案设计,但不同于工作室其他小尺度的城市更新、乡村文旅、零售商业的设计,这个项目也拓宽了我们的实践边界。回顾整个项目历程,虽然项目由于工期、造价以及协作等因素在许多方面(立面幕墙控制、平面布局、机电整合等)存在各种不完美,但也一定程度上实现了初始概念方案的想法,并让我们在更宏观的城市层级、更大体量的建筑设计(与EPC和设计院合作)、更大尺度的景观界面上积累了不可或缺的经验。作为一个成长中的工作室,感谢这样一个项目帮助我们学习如何更加全面协调进度计划,组织控制扩初设计、施工图设计及施工配合等工作,在此也非常感谢业主与总包方的信任与配合。
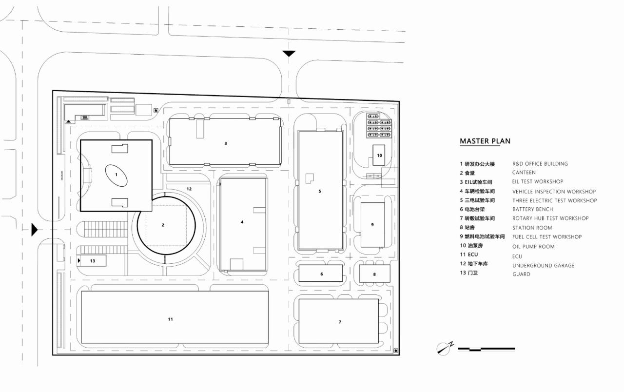
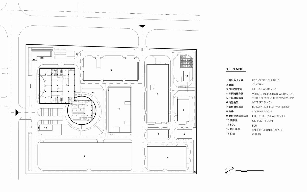
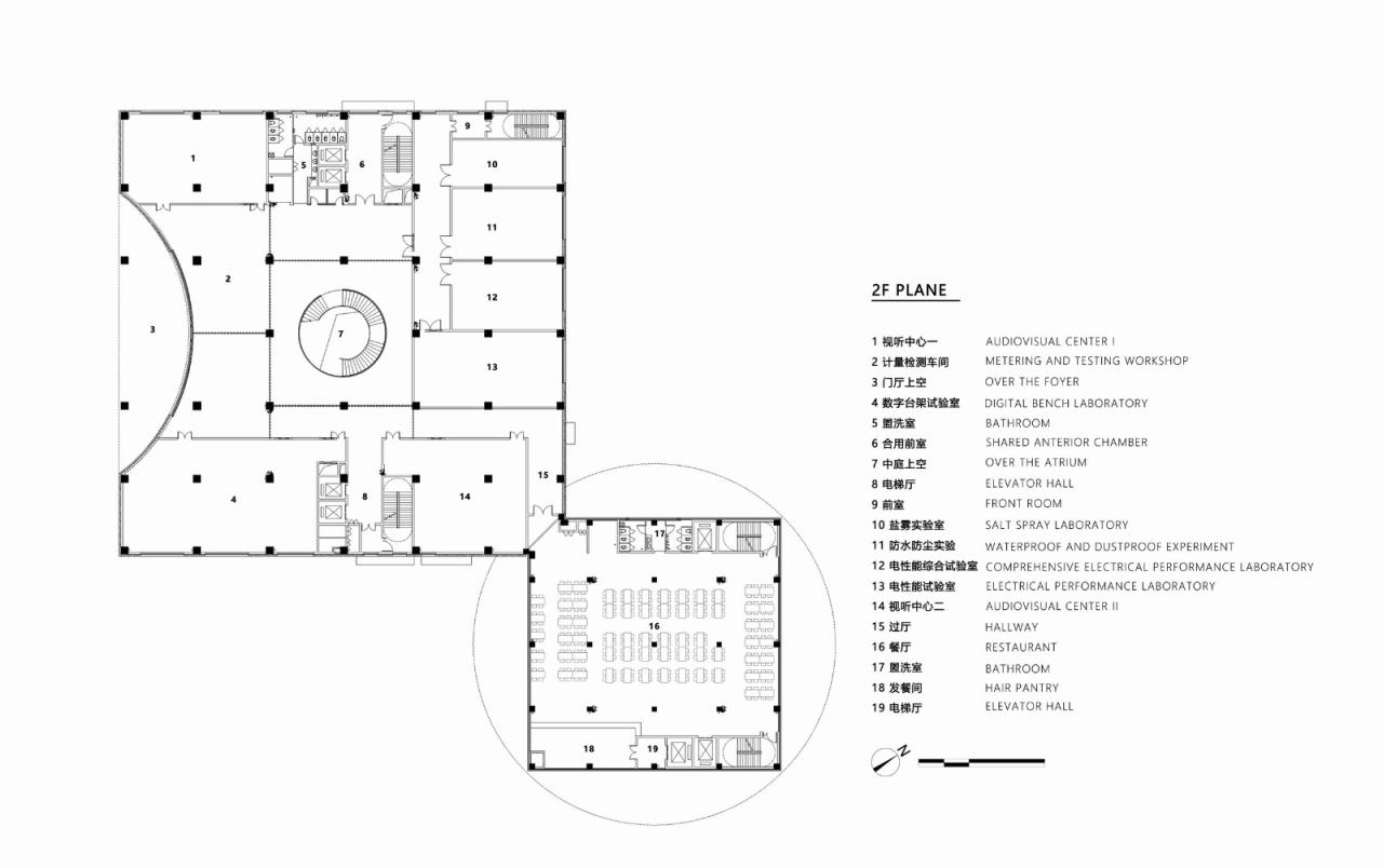
项目图纸
△总平面图
△一层平面图
△二层平面图
△六层平面图
△立面图
△立面图
△主楼剖面图
△附楼剖面图
项目信息
项目名称:国方电子研发中心
项目类型:办公
设计方:平介设计,苏州大学建筑学院
项目设计:2018
完成年份:2022
设计团队:肖湘东,景万谦,曹开源,张婉慧,王海东,陈磊,杨楠,李文靖,孔祥鹏,瞿树昊,丁敏,姜樱,邓伍昕子,靳镕烨
项目地址:苏州市相城区漕湖街道春兴路
建筑面积:19200㎡
摄影版权:徐英达
合作方:无锡市都市建筑设计有限公司、江苏南通二建集团有限公司
客户:苏州国方汽车电子有限公司

BIM建筑网

































