之字形住宅是新与旧之间的一次大胆对话,坐落于位于悉尼东郊的Kensington。客户即将返回他们的老家,并希望住在一个独特的环境中,在联邦平房环绕中有特别的建筑体验。
正如它的名字所展示的那样,复杂的屋顶被打褶处理了,如一首协奏曲一般创造了一个大胆的形式,它的结构借鉴了提供荫凉的棕榈叶。屋顶也如漂浮在水路之上一样漂浮在场地中,最后“流向”百年纪念公园和 Botany 海湾。大胆的是,它呈现了延伸自现有的联邦别墅的新部分,连接了住宅的客厅、餐厅和厨房空间。悬挑已经与原来屋顶的线性天花板平面无缝连接。 为了应对理论上的 200 年一遇的洪水,在后部露台的设计中加入了一个有趣的 "码头"。
作为住宅脊柱的楼梯是大胆的,它恰到好处地利用了场地的规模和倾斜的性质,作为这个不朽的建筑中的焦点之一吸引了人们的注意。它为住宅内的新旧空间提供了一个十分壮观连接和过渡,色彩斑斓的叶片柱为朴素的构图增添了一些特色。
室内布局是围绕着客户的艺术品和纪念品的收藏来安排的,并精心布置了灯光来照亮这些作品。
通过使用标准的材料,新增部分的材质是克制的,但被一种独特的方式处理,使它们以一种新的形式被看到。石膏板被贴上组成之字形图案的胶带、俄勒冈木材混凝土、以前的 BC 胶合板,以及应用在刀柱上的威尼斯石膏…这种特殊的工艺以独特的方式展示了这些材料,使房屋变得独特。
项目图纸
△基地示意图
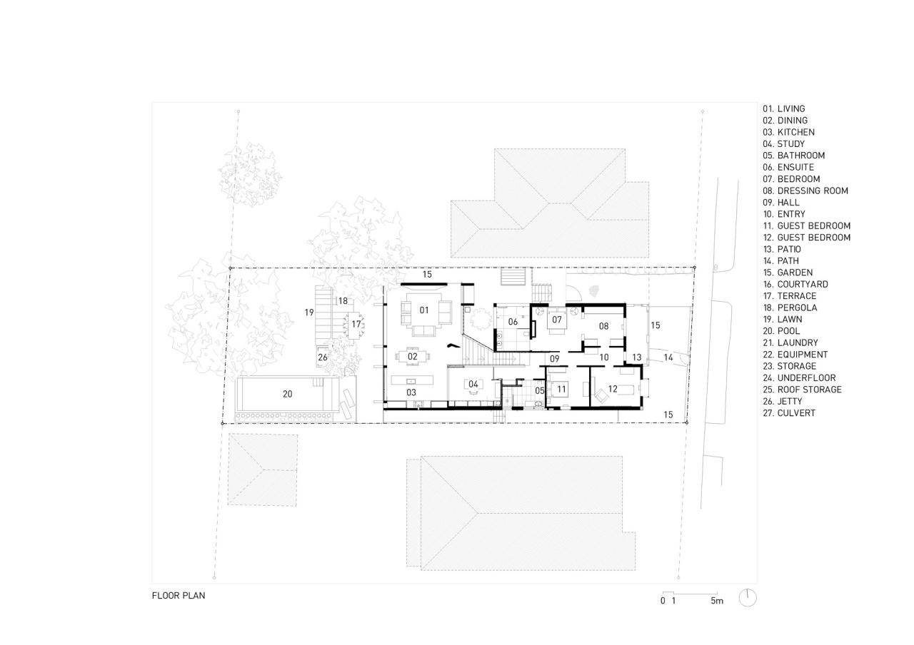
平面图
△立面图
△剖面图
△剖面图
项目信息
建筑师:Stukel Architecture
面积 :131m²
项目年份 :2022
摄影师 :Simon Whitbread
厂家 : Christopher Boots Lighting
建筑师 :Simon Whitbread
施工方 :AJP Constructions, Andrew Payton
结构工程师 :Cantilever, Adam Cameron
软景观设计 :Adam Robinson
泳池承包商 :Mirco Lepagier
花园承包商 :Ryan Donald
木工 :Blake Riley
金工 :Otis
专业灯光供应商 :Illus, Andrew Begley
建筑设计 :Stukel Architecture
地点 :澳大利亚,Kensington

BIM建筑网























