项目概况西安临潼,苍黛色的骊山东西绵延百里。从山脚缓缓向北坡降的广袤原野上,一座巨大的金字塔型的封土堆赫然耸立,孤独而倨傲。这是中国两千多年中央集权帝制的开创者——秦始皇帝赢政的陵墓。在当代中国城市高速发展的大潮中,陵寝周围仍然幸运地保持着公元前的山原空间架构,溢散着千年不曾衰减的第一位皇帝横扫六合的气势。秦始皇帝陵是中国首批进入《世界遗产名录》(1987年)的遗产地之一。在新世纪,西安市政府计划兴建一座博物馆,用以专门保护、展示和诠释陵区出土的两件国宝级文物"彩绘铜车马",同时尽可能地疏解分流兵马俑景区的巨量游客。这两乘彩绘铜车马出土于帝陵封土堆的西侧边缘,地下深约8米处。与举世皆知的兵马俑的恢宏阵列相比,铜车马只有真实尺寸的二分之一大小,但今人惊叹的是,这一对超写实风格的青铜器物,竟是由上千个细小的金属零部件拼组而成,其精致细腻巧夺天工,代表了两千多年前人类制造工艺的最高水准。在陵园的内外城垣之间,一座历史(约明代)上形成的深达数米的巨大冲沟(岳沟)为建设博物馆提供了唯一可用的场地——冲沟排除了一切地下埋藏文物的可能,这也成为中国国家文物局再三斟酌之后下决心在此处建馆的重要原因。“彩绘铜车马”出土四十年后能够再次回到封土陵山脚下,重新陪伴着世界上最神秘的帝王,机缘非同一般。
设计任务设计有三项明确但困难的任务:只有八千平米规模的博物馆(展区4千平米)如何容纳日均三万以上的参观者?如何能让文物的精微深奥完美呈现?以及,如何应对陵寝区独特的历史环境格局?我们在2016年国际设计招标中夺得设计权的方案,对这些难题给出了恰当的解答。
规划理念在维护遗产环境及其空间格局的大原则下,通过空间与路径的设计充分展示主题文物的内涵与价值,并努力探究和解读考古信息与历史环境之间的关联,重新辨识与积极延展历史文脉。
设计策略博物馆参观路径的组织是全部设计中的核心关键,也是解读和诠释帝陵历史环境独一无二的机会。换句话说,如何处理建筑与这个独特场地的关系,甚至比建筑本身的空间表现更为重要:通过与骊山的对话,与帝陵封土堆的交流,使建筑能够真正锚固在场地上,融为陵区不可割裂的一部分。博物馆的参观体验绝不限于在展厅内部,而是由馆外开始并在馆外结束。进馆、馆内、出馆三个环节都有各自的空间组织方式和视觉规划用意,将场地独有的环境资源与文物本身提高到同等的重视程度。进馆须由景区地面到达建筑入口门廊,下行坡道须经过两次转折。由于路面高度逐步降到冲沟坎顶之下,周遭的干扰因素被屏蔽在外,参观者的心理会渐趋沉静和专注,但在折行面向南时,远处横亘天际的骊山会扑面而来,横向展开的巍峨山形与收束的坡道形成强烈反差,给观者第一轮的心理冲击,也将骊山与帝陵的关联印在脑海。
馆内参观路径的组织方式,力图“一步到底,直面真身”。观众从入口一路下行不做停留,经过约200米长的坡道直达中央展厅,在神秘幽暗的环境中能够看到的第一件展品,就是这件特别光照下的“彩绘铜车马”本尊,给参观者以强有力的视觉震撼。之后参观者会继续通过休息厅、多媒体放映厅、常规展厅和纪念品店,随着渐渐平复的心情上行出馆。但最后一段坡道穿出室外时,赫然进入视域的是帝陵封土简洁有力的轮廓,顺着导向墙(屏蔽电瓶车等候区)继续前行时,封土越来越高大清晰——一座标准几何形的人工封土堆,将参观者的注意力再一次拉向远古的传奇帝王!由地面沉入地底,然后重见天日——这条由外而内,再由内而外的路径构筑了一条跌宕起伏的连贯的叙事线,带给观者一段远离当代生活图像的特殊历程。
材料策略设计选用清水混凝土做为主导内外空间的界面材料,不做装饰,使结构的力量得以真实呈现。混凝土的沉稳细腻、含蓄内敛,为突显文物主题提供了纯粹而神秘的背景质地。半埋入地下的建筑体量只有两个立面暴露在外,面对着沟底的坎璧。大面积屋顶覆土植草,与周边的陵区环境完全融为一体。这样在大尺度的景区视距内看不到新建筑,只有参观者近距离置身空间中,可以触碰到混凝土界面。设计没有采用秦代建筑中典型常见的砖、瓦或木材,其用意明确:这不是模拟地下墓穴的仿传统空间,建筑界面不要用易引起误读的考古信息干扰对主题的关注;这是一座二十一世纪的新建筑,鼓励用当代视角和恰当的媒材重新审视和衡量历史上的关键瞬间。
历史解读历史的真实,是一种被当代解读后的真实。本设计所做的努力,也是将自然景观人文化的尝试,在观者心中重演往事的尝试,让历史持续讲述真实的尝试。一个新建筑不动声色地隐藏在世界文化遗产的怀抱之中,首先表现出对历史环境的最大尊重,然后调动各种建筑元素和技法,对路径进行周密组织,在遗产地环境最重要的历史资源之间建构起一种视觉关联,进而引起观者的兴趣与思考,建筑的核心价值恰在这时得以实现。历史似乎在重现!骊山北望,一马平川,始皇帝赢政为自己的来世准备的如生世界依然在高大的金字塔下沉寂;而近旁,博物馆神秘重围的核心,陪葬的鸾驾在幽暗中闪烁着千年前的辉光,一如当年…
项目图纸
△项目模型
△模型图
△构思草图
△总平面图
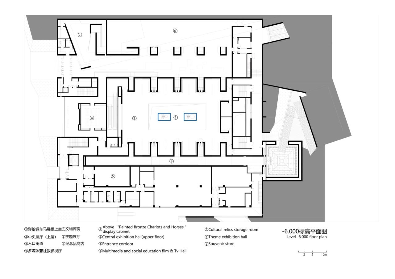
△-6000标高平面图
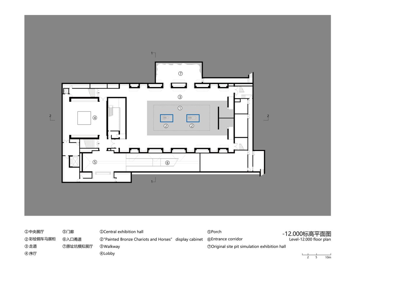
-12000标高平面图
△西立面图
△场地剖面图
△1-1剖面图
△2-2剖面图
△空间断面图
△结构分析图
项目信息
建筑师: 中森止境工作室
面积 : 8564 m²
项目年份 : 2021
摄影师 :叁山影像, 陈旸
厂家 : SKK, 克锐思 Velosit, 西安市临潼区秦陵街办骊景建材厂
主创建筑师 : 张男、张晓远
设计顾问 : 陈同滨、崔恺、秦莹
设计团队 : 干露、许谦、陈隆、于雅琪、孙晓、苏雨、张吉凌、陈若男、邹璐、齐翎懿(建筑);常润泽、欧仁伟、张慧杰、李清秀、魏亚亚(景观);钟才敏、桑立娟(结构);张汝波(给排水);王建伟(暖通);高春(电气);王黎、严奔驰(总图)
业主方 : 秦始皇帝陵博物院
幕墙设计 : 上海易旋建筑设计咨询有限公司
照明设计 : 北京宁之境照明设计有限责任公司
声学设计 : 华东建筑设计研究院有限公司 声学与剧院专项设计研究所
智能化设计 : 华东建筑设计研究院有限公司 华东都市建筑设计研究总院
代建方 : 西安曲江大明宫建设开发有限公司
标识设计 : 2×4
地点 : 西安市

BIM建筑网






































