这是一片被上天眷顾的土地,锦绣江南,吴越腹地,婀娜娟秀,温润如玉,在长江母亲的怀抱下熠熠生辉。
汾湖,拥有2500年江南历史文化,位于江苏、浙江、上海两省一市交汇的金三角腹地,历史与现代交汇融合,古朴底色中焕发出发展的新活力。在“十四五”规划指导下,汾湖,作为长三角一体化先行启动示范区,迎着千亿时代风口,磁吸众多国内外资本、跨国龙头、央企国企落户,已成为环沪城市发展重要的增长极。
△长三角科大亨芯研究院规划展览馆
本次三益携手亨通集团,择址汾湖水乡客厅,构建了一座以“新江南客厅”为目标的创新型产城融合的水乡式产业园。
△长三角科大亨芯研究院规划展览馆
#01
长三角“水乡客厅”的硬核科技产业园
随着长三角生态绿色一体化发展示范区的揭牌,在青吴嘉交界之地,依托长三角原点,“水乡客厅”成为长三角一体化示范区先行启动区中“核心的核心”。
△"水乡客厅"规划图 图源:网络
围绕长三角原点,在周边约35平方公里左右的范围内,“水乡客厅”将打造示范区生态绿色发展的功能样板。本次长三角科大亨芯研究院项目地处吴江、嘉善、青浦三界交汇处,紧邻长三角原点,位于水乡客厅建设核心范围内,是践行长三角一体化发展示范区先行启动区首批建设的重点项目。
△长三角一体化示范区首批建设的重点项目
长三角科大亨芯研究院主要包含苏州科大亨芯长三角研究院及苏州自主品牌大企业先进技术研究院两大产业内容。其中科大亨芯研究院致力聚焦物联网和通信芯片设计及产品开发、未来通信技术、人工智能应用技术研究及智慧城市应用;苏州自主品牌研究院则主导新一代通信技术、智慧海洋技术、量子保密通信技术、智能制造与工业信息安全技术及新能源技术的研究。
△园区鸟瞰效果图
△产业定位
#02
江南水乡式特色产业园
长三角科大亨芯研究院项目地处江南水乡汾湖,周边江河湖水系发达,河道纵横交错,湖泊星罗棋布,水面占比近40%,项目基地南临荷花荡,田水相接,开阔而宁静,具有得天独厚的生态环境优势。
△得天独厚的生态环境优势
△园区滨水而建
作为长三角一体化战略“水乡客厅”内规划建设的首批亮点项目,长三角科大亨芯研究院以引水、造廊、筑院等现代设计手法及未来之翼的创新设计理念,既集合高新产业,打造出现代科技感,又结合江南记忆、水乡生态,营造出水乡体验感,两者共同形成具有“双面绣”风格的水乡式产业园区。外向展示科技型产业园的生产生活方式,内向体现江南水乡的文化特色。
△独具江南特色的建筑风格
项目整体以科大亨芯长三角技术研究院为龙头,以科研办公区域的下沉式广场和江南水乡人文艺术长廊为两轴,串联产业办公及展示配套等功能,激发园区活力,营造共享创新的氛围。两轴相交,呼应了长三角生态绿色一体化发展示范区打造的“十字走廊”功能布局。沿汾秋路布置科大亨芯长三角技术研究院及苏州自主品牌大企业先进技术研究院,临湖布置专家楼,园区内部则见缝插针设置人才公寓,依次自然形成三个特色聚落空间,并植入江南特色景观,形成建筑环境相互融合的共生状态,创造多元化的空间体验。外显科技之动感,内隐江南之韵味,塑造出“外依湖荡圩田,内沿河道生长,枕河而居,沿河而市”的聚落型水乡生态结构。
△一核两轴三街区的规划结构
△园区鸟瞰效果图
新型体验式科创走廊
设计沿汾秋路一侧,由西往东依次布置研究院,产业总部及研发楼等业态,形成连续的产业布局及富有节奏感的临街城市形象。并在南侧设置下沉广场,为产业提供服务配套及科创展示空间,打造多元化的体验共享空间和互动性交流环境,形成集办公、休闲、社交、生活于一体的新型体验式科创走廊。
△科创走廊产业布局
△科创走廊
△下沉广场
互动型江南水乡人文艺术长廊
根据江南水乡肌理,设计将荷花荡水系引入园区,畅流活水,营造江南水乡韵味。在引入的水系外围,以文化为内核,以廊桥为载体,解构水乡肌理“园中有园”的形式,将白墙、黑瓦、照壁、洞门、水景、翠竹等元素通过现代设计手法,打造出丰富的具有水乡特色的临水、跨水、滨水的“院落”空间,形成互动体验型江南水乡人文艺术长廊。
△人文艺术长廊
开放式的江南水乡聚落景观
设计通过建筑布局自然地围合成三个街区,并赋予每个组团以不同的主题,街区内部结合苏州历史文化特色与江南水乡人文意境,利用景观连接各个功能区块和工作空间,外围通过广场绿地与城市进行互动,形成园区建筑与周边场地串联又不失趣味的空间体验,形成开放式的江南水乡聚落景观。
△引水入园
△江南水乡聚落景观
振翅欲飞的科技立面
由于基地一侧环湖,特殊的地形如同一只亮翅白鹤,双翼向着湖面张开,展现出振翅欲飞的姿态。由此出发,建筑师以“未来之翼”为概念,将展翅飞翔的动作抽象作为建筑的设计语言,将“飞翔动势”幻化为对称的流线型立面构建,以飞流直下的流线设计体现高新产业科技之感。并沿用到整个建筑群,将建筑依次环湖排开,整体形成整齐向着湖面张开翅膀翱翔的“雁阵”,表达出“展未来之翼,聚科技之光,共筑水乡客厅”的美好愿景。
△振翅欲飞的科技立面
#03
芯起未来,展示中心臻美绽放
今年7月长三角科大亨芯研究院规划展览馆聚焦一城目光,如约开放,预示着长三角一体化发展战略正逐步由蓝图迈向现实。
规划展览馆既是园区的展示窗口,更是汾湖水乡客厅的重要展示窗口。规划展览馆,临水而建,看起来体量不大,但却隐藏着不少的设计细节,具有融汇古今,彰显建筑风格的重要作用,是园区规划的灵魂。
△规划展览馆实景
这样一个体量虽小但形体复杂的建筑,如何才能使它成为兼顾规范、业态、防火疏散要求的完美形态,是一个非常大的挑战。
△露台空间
疏散楼梯的华丽蜕变
例如规范要求建筑内需设两部间距大于5米的疏散楼梯,为了避免挤占室内空间,同时不影响原有建筑设计的悬浮感,建筑师决定设计一部具有柔美曲线的室外旋转疏散楼梯。
△具有柔美曲线的室外旋转疏散楼梯
在满足疏散楼梯对踏步夹角、高度、半径以及梯段的严格要求之下,设计将楼梯半嵌入建筑主体,让悬浮的平台和柱子可以隐藏在建筑主体内,从而不打断曲线优美的螺旋形态;同样为了隐藏楼梯上部受限于规范设置的休息平台,保证楼梯连续上升的螺旋形效果,建筑师将平台扶手高度平均到每一个踏步上,使结构和外包造型沿两条曲率不同的螺旋线上升,通过建筑师的不懈努力,最终得到了一个满足疏散要求的完美旋转楼梯。
△旋转疏散楼梯设计图解
△楼梯与建筑完美融合
△楼梯细部
苏式韵味的双曲面屋顶
规划展览馆倚水而立,建筑师还设计了独具匠心的具有苏式韵味的双曲面屋顶,通过材质的选择,精细的构件设计,以现代的材质贴合瓦屋面的质感,唤起人们对于粉墙黛瓦,飞檐翘角,青瓦叠交,鳞次栉比的江南记忆。
△苏式韵味的双曲面屋顶
传统的中国建筑是木结构坡屋顶,而规划展览馆的双曲面屋顶结构为混凝土结构,如何确保现浇的曲梁能够最大程度还原方案设计,建筑师通过参数化手段在每一根梁上找出若干个定位点标出高度,并进行了软件模拟拟合;并且由于双曲面屋顶混凝土结构较为粗重,还有保温防水等一系列要求,如何使屋顶的造型尽可能轻薄,建筑师也是煞费苦心,最后通过将土建梁上翻,再在材质上进行切分,视觉上形成轻薄感,并严格控制铝板包边造型高度,巧妙利用屋顶最低点,在屋面层结合镂空铝板进行隐藏排水。
△双曲面屋顶设计图解
△屋顶鸟瞰
△屋顶细部
在建筑前的庭院,建筑师设计了起伏的屏风与镜面水池,增加空间的层次感和趣味性,并结合景观植被,实现了步移景异的视觉效果及小中见大的幽远意境。正是建筑师对建筑的热忱,不放弃每一分琢磨,最终才让建筑成为了凝固的艺术。
△起伏的屏风与镜面水池
△景观与植被实现步移景异的效果
△庭院夜景
作为长三角绿色生态一体化发展示范区核心地块的先行项目,长三角科大亨芯研究院的设计在城市层面展现出高科技产业园的科技感和创新性,在人居层面体现传统江南水乡的历史感和体验性,体现了“融合创新,融合生态,融合产业,融合人文”的发展理念。未来长三角科大亨芯研究院将依托规划优势和资源优势,联动上下游产业,汇聚国内外科创智慧技术流、资本流、人才流,为长三角更高质量一体化发展注入新动能!
△长三角科大亨芯研究院规划展览馆
△建设中的园区鸟瞰
项目图纸
△首层平面图
△二层平面图
△三层平面图
△西立面图
△北立面图
△东立面图
△南立面图
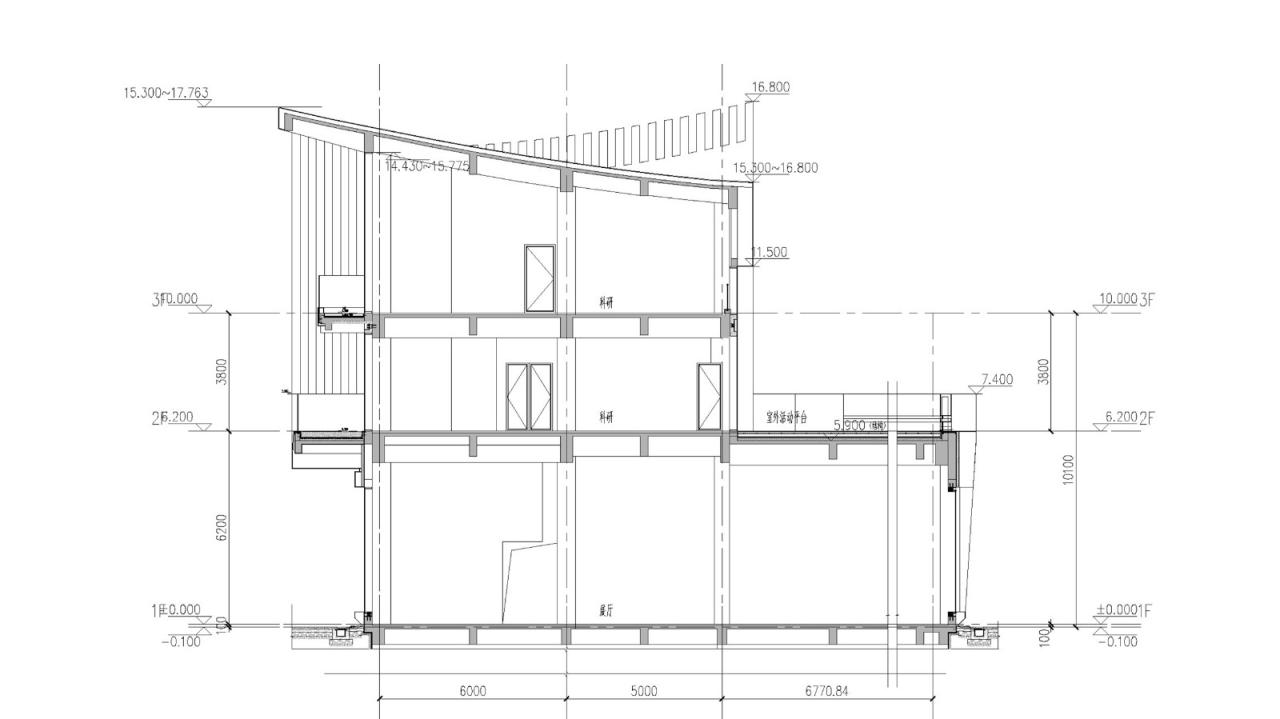
△剖面图
项目信息
项目名称:长三角科大亨芯研究院
项目类型:科教研发及商业
项目地址:苏州市吴江区汾湖汾秋路99号
基地面积:58625.51㎡
建筑面积:125650.45㎡
容积率:1.5
设计时间:2020.03-至今
建造时间:2021.09-至今
建设单位:苏州亨芯置业有限公司
方案及施工图设计单位:上海三益建筑设计有限公司
主创建筑师:卢晓刚、俞潇潇、张伟伟
创作负责人:俞潇潇
方案设计:王硕、李维思、项文威、胡楠、孙竹影
施工图设计负责人:陈颖忻
建筑设计:陈颖忻
结构设计:宋英玲、胡愚
机电设计:徐伟栋、薛靖轶、张思思
总图设计:张燕燕
技术支持:赵斌、王晓红、祝宇梅、李宗凯、韦寅骏、胡文晓、陈英、蒋虹、鞠永健
景观设计:华设设计集团有限公司
室内设计:弘高视野(上海)有限公司
室内设计:上海本极建筑设计有限公司
幕墙设计:苏州美瑞德建筑装饰有限公司
照明设计:江苏宏洁智慧科技有限公司
施工单位:中国建筑第五工程局有限公司
建筑摄影:刘松恺

BIM建筑网













































































