由程泰宁院士领衔,中铁四院与筑境设计联合体设计的杭州西站枢纽综合体于2022年9月22日正式通车。作为基于中国国情的站城融合理念的最新设计实践,西站枢纽综合体通过多维一体的交通组织,理性充分的综合开发,打造既有江南气质又具未来感的创新站城空间。杭州西站站房建筑面积约10万平方米,总规模为11台20线,采用“上进下出”模式,进站旅客以高架候车室候车为主,辅以线下快速进站厅。设计团队以“云”为设计理念,提出“云谷”、“云厅”、“云门”等概念作为“云”意向的新呈现,既呼应了杭州“三面云山,一江抱城”的独特山水格局,又象征了城西科创大走廊的科技精神。此外,中国首个新建高铁正线上方雨棚上盖开发项目也在西站枢纽诞生,为中国高铁建设提供了土地集约利用的“杭州”模式。
云谷—高效的中央换乘系统杭州西站利用站场拉开的新空间形成28米宽的进站通廊,将传统火车站“两端进站”的进站方式化零为整成为“中央进站”。通过各种接驳方式而来的旅客集中在云谷中部,再乘坐专用扶梯直达候车层。采光天窗使阳光透过拱形玻璃穹顶,引入了充足的光线,可直达地铁层。大量自然光线的引入使得站内空间通透明亮的同时,也对旅客进站的路径产生引导作用。与传统进站模式相比,旅客进站时间可以缩短一半以上,进站效率显著提升。
云厅—候车体验的迭代升级不同于传统候车厅单调的室内空间,“云厅”结合高铁及科技云城等概念元素,为旅客打造温馨惬意的候车体验。上方十字天窗玻璃下的遮光膜使阳光经过漫反射照进候车厅,为站内候车的旅客带来充足的光线条件,使整个候车厅看起来如同漂浮在云上一般轻盈通透。此外,设计团队通过计算机模拟将照明资源分区,配合自然光线柔和地作用于整个云厅,在节能的同时满足候车空间的照明需求。
云门—全新的城市精神场所“云门”创新性地将分散的城市功能组合为整体,形成立体的站前广场,其作为西站枢纽综合体的重要组成部分,内部包含了办公、商业、餐饮、会议等业态,配置丰富的慢行步道、景观跳台等公共空间。“云门”同时连接站房以及周围的高层办公、裙房商业、休闲等综合开发项目,成为衔接站与城的联系纽带,为站城融合创造必要条件。
雨棚上盖—三维立体的开发模式候车厅的旅服夹层预留了直达雨棚上盖的专用通道,上盖开发与车站的零距离,成为雨棚上盖得天独厚的优势。传统铁路客站区域内的综合开发多与站房水平布置,杭州西站创新性地在雨棚上盖引入了办公商业和酒店功能,通过开创先河的分层确权机制,使综合开发和站房立体叠置,取得浙江省首本“地上空间建设用地三维不动产权证书”。
随着杭州西站枢纽综合体的落成,一座未来之城也应运而生。作为贯彻站城融合发展理念的典型案例,引领了中国“站城融合发展”的新探索,其将成为杭州市面向长三角地区、全国,乃至全球的门户形象,同时作为杭州亚运会的配套项目,将担负着推动杭州进一步迈向国际化的重任。
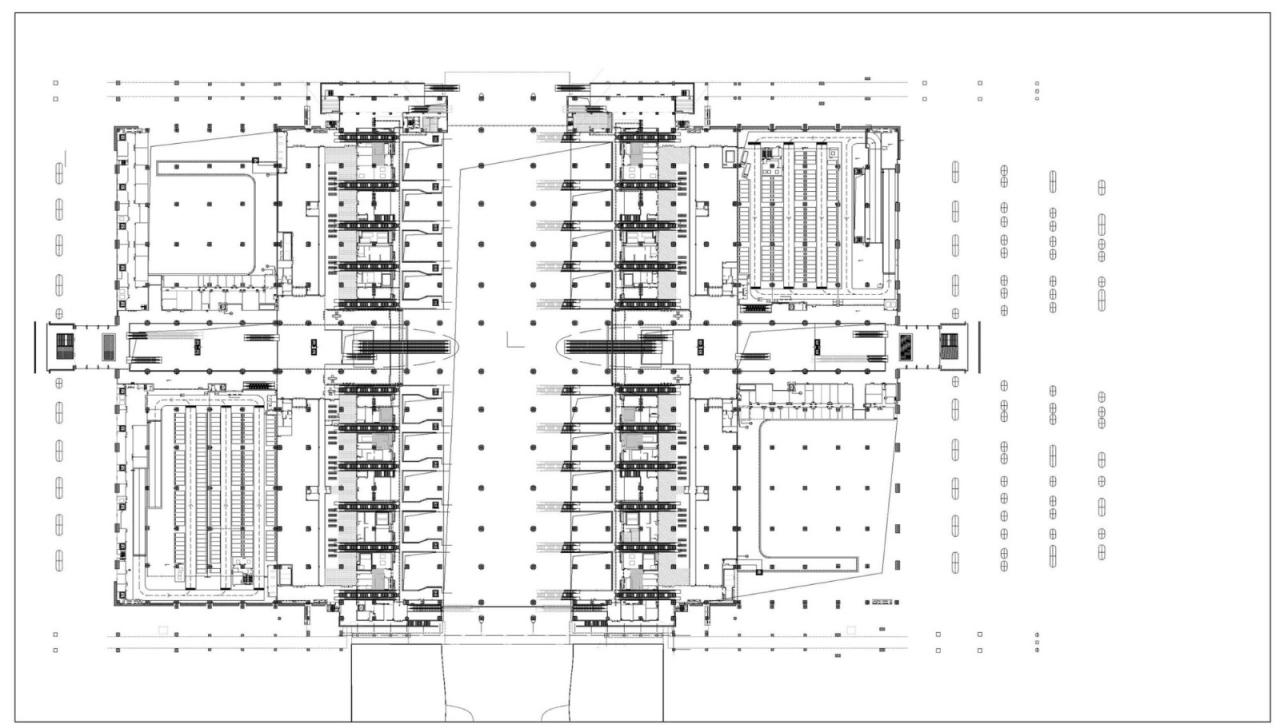
项目图纸
△一层平面图
△负二层平面图
△二层平面图
△三层平面图
△四层平面图
△五层平面图
△顶层平面图
△剖面图
项目信息
建筑师: 筑境设计
面积 : 513420 m²
项目年份 : 2022
摄影师 :奥观建筑视觉, 杭州市西站枢纽开发有限公司
厂家 : 信义玻璃控股有限公司, 天津北玻, 广东坚宜佳, 广东坚朗, 江苏长青艾德利装饰材料有限公司, 河北正邦源铝业有限公司, 法拉利技术织物工业集团, 阿克苏诺贝尔
建筑设计 : 于晨、殷建栋、郭磊、金智洋、严彦舟、戚东炳、陈立国、祝狄烽、杨士清、李昭、顾晨曦、江畅、方炀、刘欣仪、刘辛、王梦琳、丁齐、胡泊、阮珂、孙超、宋子雨、周盛遥、魏瑞环、钱湘君、陈豪特、张昊楠、江丽华、谢家豪、林心怡、官恩平(筑境设计);盛晖、罗汉斌、刘俊山、李立、王敏、杨志红、周洋、殷炜、梁栋、汤陵蓉、李柏、刘晓青、张宏征(中铁第四勘察设计院集团有限公司)
结构设计 : 杨旭晨、周嵘、孙会郎、吴建乐、刘传梅、冯自强、唐伟、朱伟、朱蓓 、王芳、贾颖颖、汪鑫、吕岩、张明、赵友清(筑境设计);李敬学、沈磊、吴奎、刘桥、吕磊、胡健、董莹琦(中铁第四勘察设计院集团有限公司)
暖通设计 : 潘军、于坤、何佩峰、尹畅昱、姚竹弦(筑境设计);郭旭晖、王金桥、周翔、李亮、黄丽娟(中铁第四勘察设计院集团有限公司)
给排水设计 : 纪殿格、崔松、章海波、杨迎春、葛耀耀 (筑境设计);蒋金辉、刘超(中铁第四勘察设计院集团有限公司)
电气设计 : 李鹏展、唐霖、徐冰源、王潇、张艳、邵晓薇、张庚(筑境设计);陈凯、李士峰(中铁第四勘察设计院集团有限公司)
信息设计 : 袁莉、王婧
机械设计 : 张琨、汪宇亮
站场设计 : 寇军朝
委托方 : 湖杭铁路有限公司、杭州市西站枢纽开发有限公司、杭州市地铁集团有限责任公司、沪昆铁路客运专线浙江有限责任公司(代建单位)、杭州上铁西站枢纽房地产开发有限公司
施工方 : 中国中铁建工集团有限公司
地点 : 杭州

BIM建筑网





























