△机械美学的幼儿园
记忆中有类似的视频,一个孩子从高处跃下去,随后在空中漂浮着,好像在飞翔一般,身边的其他人也是一样。看到这个视频的一瞬间,内心里马上闪现:“这不就是我小时候梦里的感受吗?”
确实,我们几乎每个人小的时候都做过类似的梦,梦见自己可以在空中丝滑地飞行。
△电影《独行月球》剧照(图片来自网络)
△电影《独行月球》剧照(图片来自网络)
飞行之梦
像鸟类一样飞行是人类很早就有的梦想,也是每个人儿时都会有过的梦想。
△孩子心中关于飞行器的想象
△孩子心中关于飞行器的想象
从中国古代的风筝到古希腊人制造的机械鸽都是这种梦想的物化。最早详细研究鸟类飞行的人是文艺复兴的巨匠达·芬奇,他写的《论鸟的飞行》被看成是航空科学的开山之作。
△达·芬奇手稿(图片来自网络)
如果有一个机会来设计一所和“飞行的梦想”有关的建筑,我们会怎么做?而这所与“飞行的梦想”相关的建筑如果又恰好是儿童主题,我们又会怎么做?这是一个极有趣的命题。
于是我们正好就设计了一所幼儿园,一所和“飞行的梦想”有关的幼儿园。
孩子们的想象力
这所建筑有两个功能,先期是被用作一个与飞行和宇宙相关的艺术展厅,而它真正的价值是一所位于空港居住区的幼儿园。居住区位于广州市花都空港,是一个在白云机场附近的新居住区,最主要的客群就是年轻的飞行员、空乘以及他们的家人们。而这所幼儿园将是这些业主的孩子们未来主要的活动场所。
这组建筑坐落于城市道路交叉口的一角,取合理化后的飞行器形态,感觉是一架要起飞的飞行器。
△街角的「飞行器」
△金属质感的机械装置
△光滑的铝板流体曲面
孩子们都热衷于宇宙飞行器、火星降落器、空间站等。因为这是一个人类对未知的宇宙世界充满幻想和好奇的时代,我们的设计绘制了孩子们对无边际的宇宙空间的向往,和对宇宙飞行科技的遐想。
我们构想整个宇宙飞行器(学校)被分成几个不同的「火星降落器」,这几个不同的「火星降落器」就构成了一组班级的活动空间,包括了教室、寝室和盥洗室等。紧接着横向通过开敞的走廊和旋转楼梯将所有的火星降落器(班级)的宇航员(孩子们)领入漂浮于星空中的两个宇宙作业区(活动场地)。
△独特的空间体验梦境
我们捕捉到宇宙科技的设计特质,转而将其引入我们的建筑空间,探索将空间体块进行伸缩,旋转,折叠而创造的设计可能性。
通过部分剖面、平面、立面,我们希望有一个建筑的视角为大家阐述宇宙空间被实施的可能性。
梦想照进现实
△幼儿园与宇宙飞行器
在此背景下,仓体空间是人类的延展,是一种自我独立的环境探测器。我们要模拟人类对未知宇宙的探知,当然要让我们的建筑是鼓励儿童互相合作,互相学习,互相交流的。建筑采用完全开放的平面布局,将换衣间、走廊、楼梯等服务空间与学习及游戏空间合并。
此外,开放型活动场地通过旋转楼梯,与教室相连,也增加了近700平方米的无限制游戏面积。
这样的设计有利于促进不同年级的孩子们相互交往,让年幼的孩子与年长的孩子相互了解,同样也促进不同年级老师间的交流。
立面设计也要拟真仓体和飞行器的表面,令孩子们沉浸其中,这些外立面都由一块块光滑的铝板拼凑而成,形成非常圆润和光滑的表面。
△板材旋转、弯曲和折叠而创造的设计可能性
我们引入圆润弧度的切面将建筑的边缘打造成一个观察器或者是地球仓, 为儿童体验空间创造一种前所未有的视觉体验。
完美地致敬了为飞行奠定的科学基础叫做空气动力学,或者你可以认为是更广义上的流体力学应用到空气上的实践。
△实景照片-三组「火星降落器」
△实景照片-「空间站」入口
我们对飞行装置、宇宙空间、飞行器的建筑假想,是为了讨论更多这些机械美学在城市背景下为我们的生活方式带来什么样概念性的改变。
我们将建筑形式与飞行员的日常活动联系起来,将飞行的意向融入儿童的建筑风格。
班级这个单元体的建筑形式与飞行器的形态相结合,体现了孩子家长的的职业特征,同时赋予儿童类建筑的另外一重解读。
这个项目,可以说是我们首次尝试将儿童对宇宙科技的向往,转化成了非常实际的建筑建造过程。
△实景航拍照片
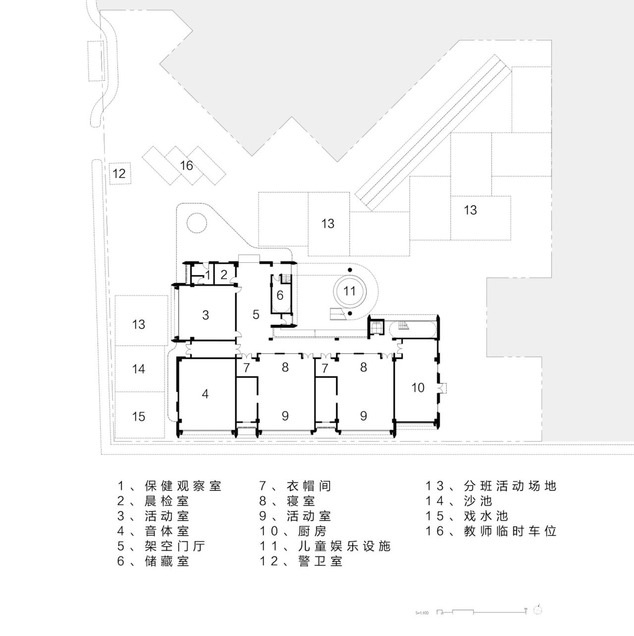
项目图纸
△一层平面图
△二层平面图
项目信息
项目名称:广州城投·空港1号幼儿园
项目类型:建筑
项目具体地址:广东省广州市花都区雅新大道与镜湖大道北交叉口东320米
占地面积:3510平方米
建筑面积:2160平方米
设计时间:2021年4月
完成时间:2022年5月
设计方:PTA上海柏涛·广州事业部
主创建筑师:陈希,陈绍涛
设计团队:李润,詹素林
业主:广州市城投发展控股有限公司
施工图:广东省建筑设计院有限公司
景观设计:广州颐景园林生态建设有限公司
室内设计:深圳中壹建设(集团)有限公司
摄影师:深圳域图文化有限公司
主要材料:铝板

BIM建筑网



















